【苏州吴江汾湖保利湖畔云上】高品质湖景住宅,地铁沿线,教育资源丰富,引领长三角美好生活
一、楼盘简介
苏州吴江汾湖保利湖畔云,位于汾湖核心位置,距离水乡客厅仅2.5公里。该项目由世界500强央企保利开发,品质值得信赖。项目占地面积约10万方,规划建筑面积约24.7万方,是低容积率湖景住区。产品包括建面约87-108㎡毛坯/精装高层、小高层,建面约110-160㎡叠墅。
保利湖畔云上售楼热线:4008378831
置业顾问:13057464852(同微信)
二、项目信息
1. 项目位置:苏州吴江汾湖核心位置,距离水乡客厅仅2.5公里。
2. 产品类型:高层、小高层、叠墅。
3. 建筑面积:约10万方占地面积,约24.7万方建筑面积。
4. 容积率:1.65。
5. 绿化率:31%。
6. 产权年限:70年产权。
7. 交付时间:首批2022年2月。
三、项目亮点
1. 地理位置优势:项目位于长三角示范区先行启动区,地处江苏、浙江、上海两省一市交汇的黄金腹地,直接接受上海辐射。
2. 交通优势:苏州作为苏州第二座高铁新城,通苏嘉甬和沪苏湖高铁将于此十字交汇,快速通达松江南站、虹桥枢纽。此外,苏州10号线与南站无缝对接,未来上海17号线、10号线、嘉兴3号线将在水乡客厅交汇,一站通勤上海。
3. 产业优势:华为研发基地选址汾湖,预计2024年将打造成全球科创中心的新核心。科技研发人员需求旺盛,保利湖畔云上毗邻华为研发基地(直线距离约8km),已有超100组华为客户选择置业保利湖畔云上。
4. 优势:汾湖对比上海更有发展潜力。青均价已超4万,汾湖作为离上海较近的板块,目前均价在1.9万左右,性价比较高。并且汾湖户籍率先改革,同城互认,社保医保互认,上海公积金汾湖购房还贷。
四、周边配套
1. 交通:苏州南站、上海地铁17号线、苏州地铁10号线、嘉兴地铁3号线。
2. 商业:青浦特莱斯、山姆会员超市、汾湖商业。
3. 教育:上海世外教育附属汾湖实验小学(直线距离约500m)、汾湖实验中学、汾湖高中。




五、项目优势
1. 品牌优势:保利地产,世界500强央企,品质有保障。
2. 地理优势地处长三角示范区先行启动区,接受上海经济发展辐射。
3. 交通优势:一站通勤上海,交通便利。
4. 产业优势:华为研发基地邻近,科技研发人员居住需求旺盛。
5. 性价比优势:价格实惠,性价比较高。
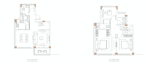
六、户型图样板间赏析
建筑面积约98㎡|三室两厅两卫
舒适三居,户型方正通透尊享轩朗空间。三开间朝南设计,拥有巨幅景观视野。跨廊阳台规划,悦览四季阳光与风景。
A4云峯上叠
建筑面积约110㎡|三室两厅三卫
约6.8m奢阔开间,突破性尺双厅设计,尽享承膝之欢。
三房三卫的国际居住理念,考量每位家人起居动线,提升生活舒适度。
南向双卧室,全明采光,满足生活尊崇想象。

其它部分户型如下图展示:


七、总结
苏州吴江汾湖保利湖畔云上,地处长三角示范区先行启动区,地理位置优越,交通便利,产业支撑,性价比高。项目由世界500强央企开发,品质有保障。户型设计丰富多样,满足不同客户需求。是目前市场上值得关注的一线湖景住区。
保利湖畔云上:4008378831
置业热线:1305764852(同微信)