吴江汾湖嘉乐城
自带商业综合体嘉乐城
长三角一体化先行启动区
嘉乐城营销中心:400 870 9151 ✔✔✔☎
嘉乐城置业顾问:131 8266 1993(同微信)✔✔✔☎
嘉乐城售楼处位置:400 870 9151 ✔✔✔☎
嘉乐城预约看房,置业顾问一对一对接,享受额外优惠!
价格:10000起
交房时间:现房得房率:79%-79%
总栋数/总户数:2栋/198户
绿化/容积率:18.5%/4.9
车位比:1:1.14产权年限:70年
总楼层数:高层24-33层
物业公司/费用:好得家物业/1.7元/月/平米
几梯几户:高层1梯2户/高层2梯4户/高层3梯6户
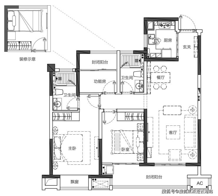
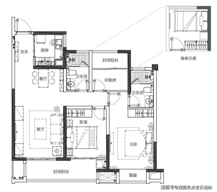
面积:86-107-111-113-114-121-127㎡
开发商:苏州鹏云集团
楼盘位置:江苏省苏州市吴江区浙江路

核心信息:嘉乐城营销中心:400 870 9151 ✔✔✔☎
地理位置:城司路819号,毗邻洋砂路与北京路,周边有大渠荡生态公园等自然景观
开发商:苏州嘉得宝置业有限公司(鹏云集团旗下)
物业类型:涵盖住宅、商住楼、商铺、酒店及写字楼,住宅产权70年,商住部分40年

配套:嘉乐城营销中心:400 870 9151 ✔✔✔☎
商业:自建20万㎡商业综合体,含华润万家、星巴克、上影国际影城等
教育:周边有汾湖实验小学、上海世外附属中学等
交通:近沪苏浙高速,规划中的沪苏湖城际铁路设汾湖站点
当前动态:嘉乐城营销中心:400 870 9151 ✔✔✔☎
住宅:2025年二手房挂牌价6731-12690元/㎡,主力户型为61㎡二居室(总价约47.5万)
商业:开放式街区与购物中心结合,含亲子游乐、影院等业态
户型鉴赏:嘉乐城营销中心:400 870 9151 ✔✔✔☎




➨🚩🚩售楼处电话:400-870-9151√√售楼处营销中心:400-870-9151(开发商热线)售楼中心电话/地址☎:4008709151【售楼处已认证√√√】★来电可了解楼盘最新动态,项目全面介绍(包含最新发布:在线预约看房丨在售房价优惠丨户型面积房源丨交房时间丨交通地铁丨商业配套丨教育资源丨小高层洋房丨独栋别墅丨联排合院丨商业别墅丨得房率丨容积率丨小区环境丨优缺点分析丨楼盘测评丨在售户型图丨项目介绍丨最新房源丨周边配套丨详细解答丨一对一热情讲解〢区域板块等信息!★郑重承诺:由开发商旗下销售团队全程营销策划,房源信息真实有效!如果您想了解更多楼盘详情,欢迎提前预约拨打售楼处电话400 870 9151√√√(已认证)