成都【幸福桥TOD幸福拾】销售中心电话:028-87788752(中介勿扰)
售楼处价格,户型图,地址,电话,样板房,周边配套,项目介绍
温馨提示:绝不收取任何费用,请提前1小时预约看房,以免带来不好的看房体验
------------------------
金牛区 幸福桥TOD 清水准现房

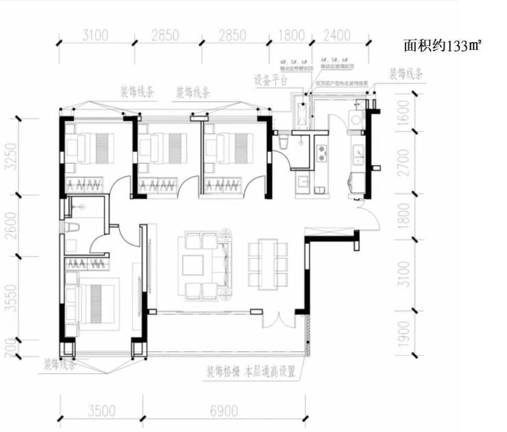
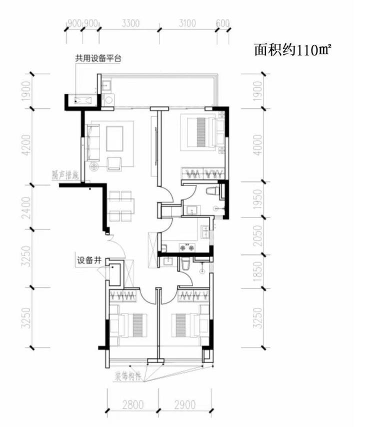
在售面积:125-135-143-180㎡(二期)
108-110-112-134-143㎡(三期)
单价15999起 中间楼层均价17500元
【项目基本信息】
•开发商:成都轨道交通集团
•物业公司:成都轨道万科物业有限公司
•总占地700亩 /二期占地64亩/三期占地74亩
•项目区位:金牛区北部新城-地铁5#幸福桥站
•总层高:二期12-17F(一楼4.5米架空层无住宅)三期9-17F
•容积率:2.0
•绿化率:二期52% 三期35%
•梯户比:二期2T2 三期 1T2户2T3户
•物业费:3.8元
•停车位:二期1:1.6三期1:1.2
•交房时间:二期2024.8月三期2025.10月
•总户数:二期624户三期503户
•交付标准:清水洋房
•公摊:二期17-20% 三期16-19%
交通:5号线幸福桥站50米,在建地铁27号线石门坎站300米
商业:汇融广场、龙湖锦宸天街、
大都会、福地广场
教育:机关三幼、第十六幼儿园(蜀道园区)
人民北路小学天北校区、成都实验小学
公园:凤凰山露天音乐公园、凤凰山体育公园
医疗:三甲医院西部战区总医院,
金牛区中医医院(在建)
目前,幸福桥TOD·幸福拾光项目一期已实景交付,低密优越的中庭景观、优美挺拔的建筑立面等,兑现着所有关于家的美好。
据了解,项目近期已加推三期地块,该地块由14栋9F—17F小高层组成。项目整体采用围合式布局,以阔绰的楼栋间距,充分保证每一户的视野采光,增强居住的体验性。在这里,能享受一种城市、人、自然、社区无界融合的生活方式。
幸福桥TOD·幸福拾光项目3期总平示意图
出门即地铁站
交通、教育、医疗、商业、公园配套等,就在您家门口满足吃喝玩乐购&一应俱全,还是主城区最高配置

主城区•副中心·改善居住区·绝版清水洋房
超高绿化率52%·户户对中庭·高端品质业主圈层更纯粹

对于主城购房者而言,幸福桥TOD·幸福拾光无疑是可以“闭眼入”的代表。
为什么这么说?首先来看价格,当前5+2城区新房成交均价已达到26815元/㎡(数据来源:锐理数据),而幸福拾光三期最低单价仅约15999元/㎡起,放眼成都楼市,这样的价格极具竞争力。
其次,在价格因素之外,幸福桥TOD·幸福拾光以低密为法则,展示出高性价比的产品逻辑。购房者既能避免“刚需”尴尬的将就,也不需要承载高端改善高成本的压力,堪称区域的“性价比王者”。
在售户型:
成都【幸福桥TOD幸福拾】销售中心电话:028-87788752(中介勿扰)
售楼处价格,户型图,地址,电话,样板房,周边配套,项目介绍
温馨提示:绝不收取任何费用,请提前1小时预约看房,以免带来不好的看房体验