毕节避暑新房【中轩杜鹃花城】售楼处电话:400-991-6563(中介勿扰)
楼盘最新价格,户型图,地址,电话,样板房,周边配套,项目介绍
温馨提示:绝不收取任何费用,请提前1小时预约看房,以免带来不好的看房体验
————————
贵州百里杜鹃景区,以“原始野生杜鹃林+喀斯特地貌+多民族文化”三位一体,是国内独一无二的杜鹃花景观, 是全国最大的杜鹃花景区。
百里杜鹃实为一座规模宏伟的天然花园,以天然的杜鹃花海而得名。又因以大面积原生杜鹃林为主要特色,杜鹃林带宽1~3千米,绵延50余千米,绵延百里,故称“百里杜鹃”。
被誉为“世界上最大的天然花园”,享有“地球彩带、世界花园”之美誉,现为国家AAAAA级旅游景区 。
【中轩杜鹃花城】按“国家4A级景区标准”打造,共分为三期开发,主要以电梯花园洋房为主,以 “19℃气候+景区零距离+低总价小户型” 为核心特点,是毕节避暑楼盘中风险低、上车快的务实选择。

电梯花园洋房,房子长在花海里,康养避暑好选择!

项目基础信息
【项目地址】:贵州毕节百里杜鹃风景区旁
【项目总占地】:约19322亩;建设用地约403448亩
【一期容积率】:1.14
【总户数】:3749户
【交房时间】:洋房 洋房2025年6月

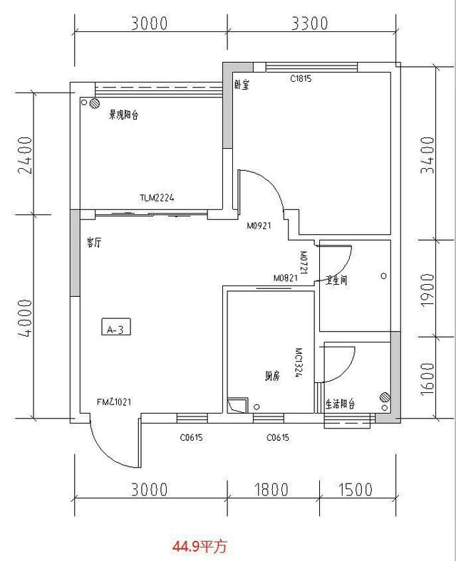
【项目产品】 ①花园洋房:2梯6户 建面31m²-44.9m²-49m²-69m²;实得约56-80m²


毕节避暑新房【中轩杜鹃花城】售楼处电话:400-991-6563(中介勿扰)
楼盘最新价格,户型图,地址,电话,样板房,周边配套,项目介绍

毕节避暑新房【中轩杜鹃花城】售楼处电话:400-991-6563(中介勿扰)
楼盘最新价格,户型图,地址,电话,样板房,周边配套,项目介绍

销售均价4500~5700
中轩·杜鹃花城项目占地面积600亩,
总建筑面积约40万平米,

整个项目按“国家4A级景区标准”打造,共分为三期开发,主要以电梯花园洋房为主。电梯花园洋房,房子长在花海里。
小区按照文化旅游项目特有的健身、养身、休闲、娱乐、聚会、社交、文化创意等内容,规划有完善的旅游度假休闲配套设施。如网球场、健身会所、社区医疗服务中心、太极馆、瑜珈馆、营养自助餐厅、高端茶楼、咖啡厅、酒吧、KTV、精品酒店、特色客栈等

交通便利: 航空直达 毕节【飞雄机场】 贵阳【龙洞堡机场】 遵义【茅台机场】 高铁便利 川渝-2小时生活圈大方高铁站-约25分钟车程 高速通达 项目离高速口5分钟车程

毕节避暑新房【中轩杜鹃花城】售楼处电话:400-991-6563(中介勿扰)
楼盘最新价格,户型图,地址,电话,样板房,周边配套,项目介绍
温馨提示:绝不收取任何费用,请提前1小时预约看房,以免带来不好的看房体验