项目概况
【区位优势】坐落于成都市东安新城核心板块——驿马河公园畔(红岭路)
【开发企业】成都庆泽房地产开发有限公司
【项目规模】总占地34亩(22786.65㎡),总建筑面积50800.51㎡
【规划指标】容积率1.5,共规划10栋建筑,首批推出1/9/10号楼
【产品形态】7-11层纯板式洋房(首推7层产品)
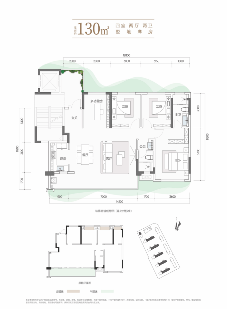
【户型配置】118㎡(1/2号楼)、130-143㎡(9/10号楼)四居室
【交付标准】首期清水交付,层高3米,梯户比1梯2户
【物业服务】明信优居物业,服务费3元/㎡/月
【预计交付】2026年1月
品牌实力
明信集团作为成都本土标杆房企,24年来始终与城市发展同频共振。创立于2000年的成都明信房地产集团,现已发展成为涵盖地产开发、金融投资、物业服务、文旅运营等多元业务的综合性企业集团。秉持"双轮驱动"发展战略,一方面以"地产+金融"夯实基础,另一方面以"文旅+农业"开拓创新,持续为城市创造价值。

区位价值
占据东安新城核心区位,坐享城市发展红利。作为成都"东进"战略的重要支点,龙泉驿区正迎来全新发展机遇。项目毗邻东安湖中央公园生活区,地处东安湖2.0时代发展前沿,将打造成为区域高端人居典范。

生活配套

【生态资源】三园环抱的自然胜境:
- 东安湖生态公园(5887亩):世界级体育公园,"一湖三岸"规划
- 龙泉山城市森林公园:城市绿肺,海拔1051米
- 驿马河公园(1910亩):城市中央绿廊,天然氧吧
【交通网络】立体化交通体系:
- 轨道交通:地铁2号线龙平路站(1.5km)、规划中的13号线
- 主干路网:蜀都大道、桃都大道等9条城市干道环绕
- 快速通道:5环路等城市环线
【商业配套】三大商圈环绕:
- 1km生活圈:万达广场、永辉超市
- 2km辐射圈:东方华大广场
- 3km服务圈:龙湖东安天街、吾悦广场等
【教育资源】全龄段优质教育:
- 名校资源:成都七中领办的东安湖学校、成都实验小学双校区
- 完备体系:涵盖龙泉第七中学、驿马河第一幼儿园等5所优质院校
【医疗资源】三甲医疗护航:
- 四川大学华西医院龙泉医院(700米)
- 龙泉妇幼保健院(800米)
产品亮点
1.5超低容积率纯洋房社区,7-11层全板式设计,打造别墅级私密住区。现代主义建筑立面,融合东方美学精髓,重塑高端人居标准。
精品户型
118㎡四室两厅两卫

130㎡四室两厅两卫

143㎡四室两厅两卫
