成都广都鑫中心(6月房价)网站首页(广都鑫中心)房价_电话_户型_楼盘详情

搜狐焦点兰州站

2025-06-01 12:32:00

购房群

买房如何避坑,加入购房群,看看他们怎么说

立即进群

成都【广都鑫中心】销售中心电话:028-87788752(中介勿扰)

售楼处价格,户型图,地址,电话,样板房,周边配套,项目介绍

温馨提示:绝不收取任何费用,请提前1小时预约看房,以免带来不好的看房体验

---------------------------------------

【区域位置】

位于成都市天府新区天府大道1888号,是智能化绿色长廊的菁英空间,含有高端酒店、文化会所及中高端商业配套的综合体物业。

【交通配套】:双地铁上盖:1号线华阳站(300米)18号线海昌路站(400米)

503 504 T205等二十条公交线路

五纵四横立体网络

五纵:剑南大道、益州大道、天府大道、梓州大道(科华路南延线)、成自泸高速;

四横:三环路、绕城高速、华阳大道、麓山大道。

【商业配套】:项目1-4楼自带30000方的上海协星星光商业体,-1楼大型超市盒马生鲜,-2至-4楼自带1661个停车位 。

项目斜对面是家乐福购物中心

项目南面300米是正在修建的三利广场,是集商务办公、综合购物、高端酒店、商业体验为一体的综合性购物广场,

项目对面还有金地三期约70万方的大型商业综合体,周边还有沃尔玛山姆会员店、红星美凯龙、富森美等综合性商业,实现人居蓝本的同时,项目在后期还会迎来配套的再一次升级。

【医疗配套】:拥有天府新区人民医院、四川石油总医院、玛利亚天府妇产儿童医院、天府新区安琪儿国际妇女儿童医院、四川省中西医结合医院、四川宝石花医院等。

【生态娱乐】:项目旁边是海昌极地海洋公园、南湖梦幻岛,南湖湿地公园等。

【优质教育】:金苹果幼儿园 天府四小 天府五小 天府实验小学 天府实验中学 天府实验外国语学校等。

【核心卖点】

1.地段城市中轴天府大道高新区与天府新区交界处,天府新区门户位置,不可复制。

2.稀缺性:天 府大道中轴线上稀缺小面积,低总价,水电气三通物业,低门槛,低风险,高回报。

3.交通:双 地铁物业(地铁1号线、18号线)。

4.市政配套:天府新区政务中心旁,红利 享受,极地海洋世界旅游打卡点。

5.建筑风格:新现代建筑风格更能体现项目在天府大道上的标志性。

6.人流保障 金融城,新川科技园,天府新区中央商务区金三角区域,大大吸附区域人流,为出租带来有利保障。

7.居住:超2万平米绿化,水景观,城市 广场,商业产权住宅配套,星级物业提高居住舒适度,负1层自带生活超市。

8.入驻商家:高端酒店希尔顿惠顿商旅酒店已正式签约。

9.租金高、需 求大(项目周边同户型公寓2500,写字楼租金70-120元/平米)。

10.入手即赚(项目斜 对面最新土拍:20700元/平米)。

【项目参数】

占地面积:28.35亩

建筑面积:241470.5m

目前主售:双发天禧中心2号楼1、2单元

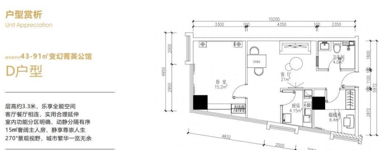
主力户型:57㎡

面积段:43㎡-91㎡(主力面积55-60㎡)

层高:3.25-3.3米

总高:25层(-1-4F商业、-2到-4车位、5-25F公寓)

首开楼层:13F、22F

三通:水电气三通(商业)

公摊:30%左右

梯户比:一单元6T33户 、二单位6T37户

物管费:4.9元

交付时间:合同2025年12月31日前

提前到2025年9月交房

交付标准:清水

【户型鉴赏】

成都【广都鑫中心】销售中心电话:028-87788752(中介勿扰)

售楼处价格,户型图,地址,电话,样板房,周边配套,项目介绍

温馨提示:绝不收取任何费用,请提前1小时预约看房,以免带来不好的看房体验

全部

相关资讯

报名成功
稍后会有专业的置业顾问联系您
返回楼盘

频道导航

返回首页

看房小程序

APP下载

电话拨通后,请您手动拨打分机号

确定拨打电话

电话号码:

分机号:(可能需要拨分机号)