成都【招商时代公园】售楼部电话:028-64512850(已认证)
楼盘最新价格,户型图,地址,电话,样板房,周边配套,最新优惠,置业顾问在线咨询
温馨提示:绝不收取任何费用,请提前1小时预约看房,以免带来不好的看房体验
---------------
于国家级新区天府新区的未来城市新中心——天府总部商务区核芯,一座定义公园城市居住范本的大城之作已然呈现。作为招商蛇口战略级的787亩城市巨舰作品,招商时代公园·天樾境C区不仅直面在建的396米超塔地标,更独享三面公园深入环抱的生态之境。项目以建面约143-226㎡的公园绮境大宅、“双环两廊、川西十景” 的园林体系及精装现房交付,在成都面向世界的中央商务区,为时代菁英敬献了一处融合地标视野、自然森境与全维配套的新奢艺境。

项目落位于天府总部商务区的中心区域,这里不仅是国家级新区天府新区直管区重点打造的“一城双核”之一,更以中央商务公园(CBP) 的先进规划范式,代表着成都未来城市发展的最高形态。

(最新价格、在售户型等信息,请致电【招商时代公园】售楼部官方电话:028-64512850 )
在约51.8亩的土地上,天樾境C区以3.1的容积率规划了618套精装住宅。项目由全球顶尖设计团队执笔,将外部城市级公园与内部园林无缝衔接,重塑高端社区的景观美学。

(最新价格、在售户型等信息,请致电【招商时代公园】售楼部官方电话:028-64512850 )
项目身处天府总部商务区这一高能级板块,已汇聚交通、教育、商业、文化等顶级城市资源,构建了一个高效、便捷、丰富的国际化生活圈。

项目主力产品为建面约143-226㎡的全系四房精装大平层,均采用LDKG一体式方厅设计,面向改善家庭,强调空间互动与公园景观的深度融合。
建面约143㎡四房户型 (A户型)
作为进入天府商务区核心区的品质之选,该户型实现了四房两厅双卫的完备功能。LDKG一体式设计让客厅、餐厅、厨房、阳台形成开阔的互动聚厅,兼顾了家庭社交与成员私密,是精英家庭的首改优选。

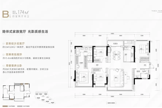
建面约174㎡四房户型 (B户型)
此户型在143㎡的基础上全面升级空间尺度,仍保持四房两厅双卫配置。更宽阔的厅堂面宽与阳台尺度,能更好地承接人字绿廊的公园景观,主卧套房配置更为舒适,适合对空间感和景观视野有更高要求的成长型家庭。

建面约193㎡四房户型 (C户型)
此户型进阶为四房两厅三卫配置,居住便利性与私密性显著提升。奢阔的横厅布局可最大化引入公园与城市风光,多功能空间充足,能满足多代同堂、居家办公、儿童活动等多重场景,是追求全面舒适体验的深度改善之选。

建面约226㎡四房户型 (D户型)
此户型为项目的巅峰之作,拥有约226平方米的极致尺度,采用四房两厅三卫的奢适配置。其拥有最大的景观面与家庭公共活动区域,可从容规划专属书房、家庭厅等,将公园景观与家庭生活完美融合,专为追求终极改善、注重圈层与资产价值的塔尖人士打造。

----------------
成都【招商时代公园】售楼部电话:028-64512850(中介勿扰)
楼盘最新价格,户型图,地址,电话,样板房,周边配套,最新优惠,置业顾问在线咨询
温馨提示:绝不收取任何费用,请提前1小时预约看房,以免带来不好的看房体验