成都【华兴滨江锦宸】售楼部电话:028-64512850(已认证)
楼盘最新价格,户型图,地址,电话,样板房,周边配套,最新优惠,置业顾问在线咨询
温馨提示:绝不收取任何费用,请提前1小时预约看房,以免带来不好的看房体验
---------
于成都城南价值高地延伸的前沿——大源南板块的生态核心,一座占据千米江岸线的现房藏品正迎来瞩目。作为深耕蓉城26载的华兴地产全新力作,滨江锦宸不仅西邻江安河,独享不可复制的滨江生态资源,更以约1.5的超低容积率、建面约129-325㎡的天际平层与江岸墅境及 “所见即所得”的现房销售模式,在城市向南的发展轴上,为追求自然静谧与醇熟便利兼得的城市塔尖阶层,敬献了一处融合江景、低密与圈层文化的终极栖居地。

项目落位于承接大源核心区繁华外溢的大源南板块,这里不仅共享城南顶级的城市配套,更凭借其滨江生态带的优越自然本底与前瞻规划,成为城南稀有的低密品质居住区,价值兼具成熟与未来双重属性。

(最新价格、在售户型等信息,请致电【华兴滨江锦宸】售楼部官方电话:028-64512850 )
由本土实力房企华兴地产匠心筑造,滨江锦宸以 “滨江生态奢宅” 为定位,在约86亩的稀缺土地上,凭借约1.5的极低容积率,打造了一座融合高层平层与江岸墅境的纯粹低密社区,展现了深耕者对人居的深刻理解。

(最新价格、在售户型等信息,请致电【华兴滨江锦宸】售楼部官方电话:028-64512850 )
项目最大的魅力在于其实现了 “一脚繁华,一脚静谧” 的完美平衡。既能便捷享受大源板块顶级的城市资源,又可随时退守私享滨江公园的宁静与诗意。
项目提供两大产品序列:面向城市精英的天际阔景平层与定义终极生活的江岸雅奢墅境,均以最大化江景视野与奢阔空间体验为核心设计理念。
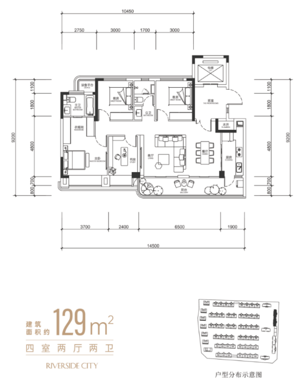
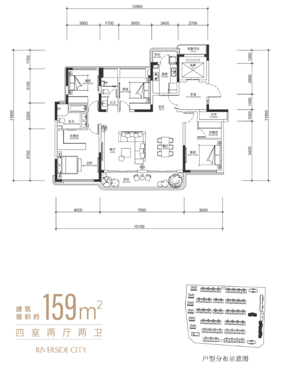
建面约129-159㎡天际阔景平层
此系列平层产品定位为城市精英的品质进阶之选。户型设计强调空间的通透感与现代感,通过大面宽落地窗最大化引入江景与城市风光。129-159平方米的尺度兼顾了功能性与舒适度,适合追求核心地段、优越景观与高效生活的精英客群。



建面约174-325㎡江岸雅奢墅境
此产品系为项目的巅峰藏品,是城市核心区极为稀缺的墅境产品。面积从174平方米跨越至325平方米,提供有天有地的墅级生活体验与更强的空间纵深感。最大优势在于其与江安河的近距离对话,部分房源可享有私家庭院或超大露台,将自然江景化为私人领地,专为追求极致隐私、家族传承与天地归属感的塔尖人物打造。



-----------
成都【华兴滨江锦宸】售楼部电话:028-64512850(中介勿扰)
楼盘最新价格,户型图,地址,电话,样板房,周边配套,最新优惠,置业顾问在线咨询
温馨提示:绝不收取任何费用,请提前1小时预约看房,以免带来不好的看房体验