【中粮保利天府时区】售楼处热线:028-87788752 【营销中心】
预约咨询〢提前联系咨询售楼中心置业顾问〢进行预约登记来访!
预约优惠〢售楼中心置业顾问为您买房保驾护航〢—匠心钜制恭迎品鉴 !
----------------------------
保利、中粮、轨交三大国企磨砺,两年共筑一城———天府新区首个TOD漫生态大盘
快联世界 慢活随心
项目基本信息
项目名称:【中粮保利·天府时区】
项目占地:208.12亩
总建面:54.39万㎡
容积率:2.5
绿地率:30%
总户数:1692户
物业费:3-3.5元/平
物业公司:保利物业
公摊:住宅约16-18%,别墅约13%
交房时间:2024年9月30日分批次交付

【中粮保利天府时区】售楼处热线:028-87788752 【营销中心】
预约咨询〢提前联系咨询售楼中心置业顾问〢进行预约登记来访!
————————————————————————
2T5户预售信息
在售楼栋:5.9.10#栋 总层高:18层
在售户型:158㎡
可售房源:部分可选
价格:2.8万/㎡,总价440-460万/套
(顺销)2T2户大平层信息:
◎在售楼栋:1/3/4/14/15/16#楼
◎在售楼层:楼层多 总层高:18楼
◎4房3卫-竖厅:178/186㎡
4房3卫-横厅:205/208㎡
单价:2.8-3万
总价:530-620万
别墅信息:
◎在售楼栋:
5号地块1.2.3. 6,7,9,10,11,12栋 叠拼别墅
别墅总价:
面积:298-213-315平(上中下叠)
总价:中叠213平约620万 无花园(已售罄 下批次可排号)
上叠298平约850-950万 花园20平左右
下叠315平约950-1200万 花园50-200平
卖点:
地铁6号线(昌公堰站)
昌公堰TOD
完善配套
品牌开发商(保利,中粮,轨交三大国企联手)
精装改善住宅
住宅建面:雅奢华宅、美学洋楼、绿岛叠院

三大巨匠,两年磨砺,联袂打造一个集商业、居住、生态于一体的天府新区城市地标,用TOD创新公园城市美好生活。

黄金交界 造极天新本案位于天府新区核心板块——天府总部商务区。总部商务区划分为三个分区:麓湖公园区、中央法务区、中央商务区。
【麓湖公园区】 “高端住区+文娱休闲”的纯居住板块,生态资源优越,是难得的高端宜居沃土,麓湖生态城、蔚蓝卡地亚花园等成都知名项目均落位于此,豪宅属性显著,但商业配套较为缺失,板块内土地储备稀少,后续基本无开发可能。
天府新区缺少一个宜居宜业的“中心”,中粮保利·天府时区位于是三个板块交汇的核心枢纽区域——昌公堰 TOD,集三大板块优势于一体,既能享受法务区与商务区的繁华,又能拥有豪宅区的生态资源,是名副其实的天府新区中心。

TOD资源集约 纯享都市鼎配
TOD轨交枢纽 擎动城市主脉
地下——中粮保利·天府时区自身作为 TOD 交通枢纽的存在,接驳地铁 6号线、15 号线(规划)昌公堰站,临近1号线武汉路站,交通配套优势得天独厚,高效集约天府新区核心资源;
地上——主干通路,中粮保利·天府时区所处梓州大道与武汉路交汇处,整体交通格局为三纵四横,主要交通要道接驳都市生活(三纵:天府大道、梓州大道、蓉遵高速成都三大主要干线贯通南北),四横(武汉路、沈阳路、广州路及麓山大道连接东西)
万亩生态群落 围合天然栖境
地处天府新区五大公园天然绿肺环绕中,承载居住、文化、旅游、休闲功能——2445 亩天府中央公园、4500 亩鹿溪河生态带、600 亩红石公园、170 亩万安体育公园。同时,项目周边规划打造约 1.5 万方环岛式生态公园,让社区完美融入公园中。
国际鼎级商圈 优享摩天生活
3 公里范围内享世界级商业配套,15 万方天府大悦城、20 万方天府国际保税商业中心、24 万方言几又国际文创中心,加上自身配套有 6.2 万方“绿魔方”商业,形成站城一体消费场所,打造天府黄金商业极核,丰富的商业配套。
全龄菁英教育 启航卓越人生
项目周边拥有丰富的高品质教育资源,如天府八幼(在建)、天府第七小学/中学、天府新区元音幼儿园/小学、华阳中学香山校区、以及项目自身规划配建的幼儿园。
前沿高质医疗 护航健康生活
约 900 米万达国际医院,约 2km 的省二医院天府院区(在建) ,区域内更有华西医院天府院区、市七医院、安琪儿国际医院等国内外优质医疗资源聚集,保证全龄段的就近医疗服务。
都会文化舞台 蓉城精神内核
项目周围拥有多个艺术博览展馆,保利航空大世界——大型航空综合项目,西博城——成都会展经济的核心载体,广汇美术馆——对外交流和公共文化服务的综合性民营非营利文化艺术机构。

4C 漫生态主张
漫活随心是昌公堰 TOD 的主张和追求,市场上大批TOD项目仅仅只是打造了地铁上盖物业。中粮保利·天府时区经过三大品牌研究打磨,形成了完善的体系,兴建项目引流自成中心,为天府新区注入全新活力。
绿行生态链——高度链接的新场景
项目通过立体的交通路网串联周边居住区、医疗教育配套、会展公园等文娱设施,激活区域氛围,让整个区域链接成整体,让业主真正享受到站城一体化的大城生活。
(1)地块串联通路:整个项目有完善的道路网络,不同地块通过慢行道路无缝链接,形成了大城生活模式及快速通达的交通枢纽。
(2)社区出行动线:每个地块都精确的规划多条社区出行动线,最大程度给业主带来出行便利,同时实现了人车分流保证出行安全。
(3)地下立体连廊:轨道交通站点与社区商业之间打造地下连廊,地下地上交通配合使业主能体验真正的 TOD 高效交通
(4)6/15 号线优势:昌公堰 TOD 由 6 号线与 15 号线双线加持
6 号线,产业生命线——与其他轴线不同的是,地铁 6 号线之上,既有代表着发展多年、完全成熟的西南总部金融中心、天府软件园,也有代表着成都未来的新川、青岛路商务区和天府中央商务区,同时承接了成都过去的高度繁荣以及城市未来的能量巨变。这条重要的“超级产业带”,不仅承载着成都目前所有最顶尖、最前沿、最密集的新经济数字型产业,还有堪比世界 CBD 的天府中央商务区引擎驱动着“城市新中心”的方向。
15 号线,航空经济线——15 号线主要连接双流区和天府新区成都直管区,可以有效连接双流、西航港城区和成都直管区,横跨天府新区,解决双流机场横向交通受阻问题。

商服生态链——生活活力新烟火
(1)商业绿魔方:集合公园城市规划策略,将生态设计融入大型商业区,构建垂直复合空间,涵盖购物、文娱、休闲、展览等功能,打造区域消 费目的地;
(2)立体式 TOD 商街:集合地下立体连廊,串联地上地下商业空间及活动广场,营造归家路上的立体复合商街;

自然生态链——绿岛微气候全维景观
(1)环岛式森林公园:“以岛为岸、退距自然”打造环绕型城市公园绿化, 通过“廊道自然化、道路林荫化、街区公园化”营建环岛式森林公园,通过环绕绿道串联,实现一步一景、推窗见绿、下楼入园的自然盛景,打造全民参与,全民融入高参与度的舒适生活环境。
(2)绿魔方叠级绿化:高度贯彻城市公园理念,绿魔方商业的结合了空中花园、退台式露天景观、下沉式广场等诸多场景优势,为大家营造一种在自然中漫游的生活场景。
(3)街角口袋公园:以多个街区空间为原点,打造街区里的公园群落,公园与社区相互渗透,生态与生活共融,尊重原始地形地貌,结合区域地形特色打造适用于全龄段休闲空间。
(4)微气候森活社区:打造成都首个微气候社区,融合植物降温、雨水系统、热力测算、风力测算等技术,于自然之中营造更好的森活
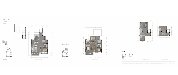
户型图


【中粮保利天府时区】售楼处热线:028-87788752 【营销中心】
预约咨询〢提前联系咨询售楼中心置业顾问〢进行预约登记来访!


【中粮保利天府时区】售楼处热线:028-87788752 【营销中心】
预约咨询〢提前联系咨询售楼中心置业顾问〢进行预约登记来访!


【中粮保利天府时区】售楼处热线:028-87788752 【营销中心】
预约咨询〢提前联系咨询售楼中心置业顾问〢进行预约登记来访!




智慧生态链——智能科技新人居
项目内部采用多种智能化的设计,提升人居新体验,打造无接触智能社区、人本化美学园林、室内智能科技空间。从户外到户内,全面提升居住体验。
----------------------------
【中粮保利天府时区】售楼处热线:028-87788752 【营销中心】
预约咨询〢提前联系咨询售楼中心置业顾问〢进行预约登记来访!
预约优惠〢售楼中心置业顾问为您买房保驾护航〢—匠心钜制恭迎品鉴 !