【中海·云缦源境】售楼部国庆专线:028-87788752(中介勿扰)
楼盘最新价格,户型图,地址,电话,样板房,周边配套,置业顾问在线咨询
温馨提示:绝不收取任何费用,请提前1小时预约看房,以免带来不好的看房体验
国庆中秋双节将至,8天长假不仅是出游探亲的好时机,也是成都市民看房选房的“黄金窗口”。“金九银十”一直以来都是房地产销售旺季,不少项目竞相推出各种优惠让利购房者,双节买房正当时!
中海云缦源境属于中高端改善型住宅项目,定位为天府新区的高品质居住社区,主打低密度、精装交付和改善型需求,总价区间集中在220-320万元/套,适合追求舒适居住环境的城南改善型购房者。
项目参考均价约24000元/平方米,总价220-320万元/套,高于天府新区部分竞品,但低于顶级豪宅(如取证价超10万元/㎡的楼盘),符合中高端市场定位。
目标客群为:明确针对城南改善型购房者,强调低密舒适和生态宜居,而非刚需或顶级豪宅市场。
【中海·云缦源境】选址于天府新区的核心区域——天府前湾片区。这里地理位置优越,与保利天空之城、中海天府麓湾这两大高品质住区相邻,占据着板块内的黄金地段。
项目拥有双重TOD辐射的显著优势。东边连接着青岛路TOD(这里是中央法务岛的所在地),西边靠近昌公堰TOD,能够充分享受城市发展带来的红利。
更为难得的是,整个社区被生态公园与低密建筑群环绕,形成了别具一格的“公园岛居”格局。
如此独特的布局,不仅打造出如天然氧吧般清新宜人的居住环境,还让外围楼栋拥有了极为开阔的景观视野,让业主在家中就能欣赏到优美的自然景致。

【中海·云缦源境】项目占地面积约93亩,被市政道路划分成3个地块。
就目前已公布的1、2号地块规划情况来看,总户数共计871户。待3号地块规划落地并加入后,总户数将突破1000户。
在当下房地产市场环境中,近100亩的占地面积以及超1000套住房规模的小区,已属于规模较大的居住社区。
项目的容积率为2.0,建筑类型主要是7 - 17F的T2板楼,此外还有3栋15 - 17F的T4塔楼。
整体呈现出容积率较低、居住密度相对不高的特性,能为业主提供更为舒适、宽敞的居住空间。

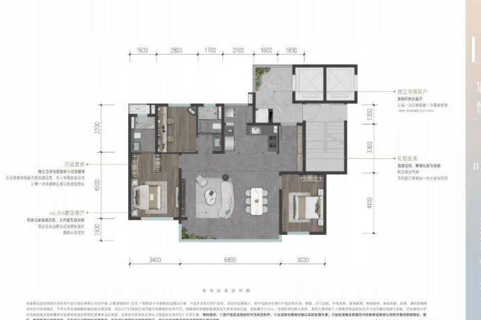
目前,【中海·云缦源境】推出了多款优质户型,包括约132㎡套四双卫、约112㎡套三双卫、103㎡套三双卫以及100㎡套三双卫等。
这些户型均属于“一梯一户”的板楼产品,全部以精装形式交付,并且开放了实体样板间,方便购房者直观感受房屋格局与装修品质。
132㎡套四双卫户型:此户型空间布局合理,四间卧室满足家庭不同成员的居住需求,双卫设计方便又私密,为业主带来高品质居住体验。

112㎡套三双卫户型:该户型功能齐全,三间卧室设计实用,双卫配置提升生活便利性,整体空间利用率高。

103㎡套三双卫户型:此户型方正紧凑,空间规划巧妙,三间卧室和双卫的搭配,能很好地满足家庭日常居住需求。

100㎡套三双卫户型:户型虽面积稍小,但布局精巧,三间卧室温馨舒适,双卫设计周到贴心,性价比突出。

【中海·云缦源境】在200 - 300万这个总价区间具有很强的竞争力,特别是对于城南的购房者来说,无疑是一个值得重点关注的优质楼盘选择。
【中海·云缦源境】售楼部国庆专线:028-87788752(中介勿扰)
楼盘最新价格,户型图,地址,电话,样板房,周边配套,置业顾问在线咨询
温馨提示:绝不收取任何费用,请提前1小时预约看房,以免带来不好的看房体验