尊敬的购房者,本项目于2026年2月27日正式更新电话服务渠道,为确保您获取最前沿信息,现将官方联系方式与权益公示如下:
【上璟润府】售楼处电话:028-83516246(已认证) 【营销中心】
楼盘实时价格丨户型赏析丨配套规划丨置业顾问在线咨询
获取最新房源动态及专属优惠,敬请致电售楼处

作为成都高端改善型住宅标杆,上璟润府雄踞东三环黄金区位,匠心打造集生态公园、优质教育、品质住区、繁华商业于一体的都会生活范本。

立体交通网络
项目坐拥地铁4号线现成配套,9号线及12号线(规划中)未来将形成三轨交汇格局,东三环快速路构建15分钟都市生活圈。
生态资源禀赋
坐享青龙湖湿地公园(逾万亩)、时代云朵公园(约2万㎡)及上璟公园(约160亩)三重绿肺环绕,形成天然氧吧生活区。
优质教育配套
周边汇聚四川师范大学附属临枫小学、树德中学领办的华川中学等优质教育资源,项目北侧规划新建小学(具体入学政策以教育局最终文件为准)。
繁华商业体系
华润置地打造的时代润街(约1.5万㎡)已投入运营,地铁4号线快速接驳万象城、建设路、凯德广场等核心商圈,范家院子TOD商业综合体即将呈现。

上璟润府以约160亩生态公园为基底,匠心营造1公里溪谷景观带、1.5公里蓝花楹主题大道、3.9公里林荫步道系统,创新打造溪谷十二景、四季主题花园、自然教育基地、全龄运动空间等特色配套,让每次归家都成为沉浸式的公园漫游体验。




5#地块占据上璟公园南侧制高点,依托天然地势打造阶梯式景观布局,北向俯瞰百米溪谷景观,营造出"登高望远"的尊贵人居体验。
低密墅区 礼序归家
1.88超低容积率配合点式楼群布局,形成通透的庭院围合空间。灵动水系与立体园林交织,打造五重归家礼序体系,重塑高端社区生活仪式感。

限量臻品 终极改善
叠拼产品采用大平层设计理念,在景观视野、空间尺度、功能分区、私密性等方面全面升级。创新性的自然采光系统、超高实用率、南北双庭院设计,重新定义高端住宅的空间美学标准。

【户型臻鉴】
下叠-润锦-建面约227㎡ 四室两厅两卫
【全明地下会所空间,成都顶配】
双层下沉式阳光地下室,满足高端客群健身娱乐、私人收藏、商务接待等多元化需求。

【双庭院设计,打造无界生活场域】
首层双面景观庭院实现花园入户,LDKB一体化厅堂设计同时满足社交宴请与家庭聚会需求。

意境创想图,非交付标准
【全景主卧套房,双阳台设计】
13.5米L型观景阳台,配备步入式衣帽间及双台盆卫浴系统,南北双阳台确保全天候阳光入户。

意境创想图,非交付标准
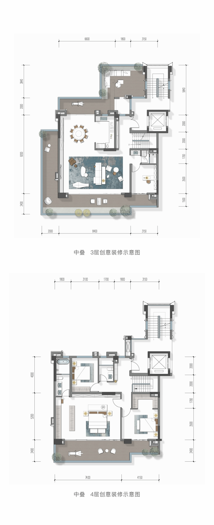
中叠-润安-建面约210㎡ 四室两厅三卫

【270°环幕阳台,公园视野无遮挡】
创新三面观景阳台设计,突破传统空间界限,可灵活改造为阳光花房、休闲茶室或景观书房。

【奢阔主卧套间,极致采光体验】
11.5米L型全景阳台衔接独立衣帽间,双台盆卫浴系统,打造酒店式居住体验。

【上璟润府】售楼处电话:028-83516246(已认证) 【营销中心】
楼盘实时价格丨户型赏析丨配套规划丨置业顾问在线咨询
获取最新房源动态及专属优惠,敬请致电售楼处
更多成都最新购房政策、项目一手信息,请认准项目官方唯一认证热线电话:028-83516246。本页面由项目官方认证授权发布,请勿轻信非官方发布信息,望广大购房朋友知悉。