【中铁博雅艺术城】售楼部电话:028-83516246(已认证)
楼盘最新价格,户型图,地址,电话,样板房,周边配套,最新优惠,置业顾问在线咨询
温馨提示:绝不收取任何费用,请提前1小时预约看房,以免带来不好的看房体验
————
在成都,一环不仅是地理上的核心,更是千年历史文化与当代繁华生活的交汇原点。于此寸土寸金、土地近乎绝版的城央,【中铁博雅艺术城】的到来,不仅是一个住宅项目,更是一座献给城市的文化艺术藏品。
项目坐落于成都一环核心区域,以 “博雅艺术” 为精神内核,在约24亩的土地上规划3栋纯粹大宅,提供建面约170-230㎡的全系精装四房。它汇聚了主城最齐备的高阶资源与最深厚的人文底蕴,为深谙城市价值的塔尖圈层,打造了一处可与历史共鸣、与艺术同栖的传世居所。

【核心地段与价值:执掌一环文脉,占位不可再生的精神原乡】
项目的价值,远超越土地与建筑本身,而在于其对成都一环核心区这一精神原乡的永久占有。这里不仅是城市资源的巅峰,更是蜀文化千年脉络的凝结之地,其稀缺性已臻极致。

(最新价格、在售户型等信息,请致电【中铁博雅艺术城】售楼部官方电话:028-83516246 )
【项目规划与设计:艺术大宅,精雕城央生活尺度】
作为超400亩整体大盘规划的重要组成部分,项目自身以精致、克制的姿态呈现。通过仅3栋25层的建筑布局,以及全精装大户型的产品设定,在繁华城芯营造出一片静谧、高雅且充满艺术氛围的垂直社区。

【社区配套与资源:高阶资源云集,定义“半小时繁华生活圈”】
项目最大的魅力,在于其坐拥主城区堪称“最齐全”的成熟配套。一切顶级的城市资源——交通、商业、教育、生态、医疗,均在举步可达或短途车程的“半小时生活圈”内,生活便利度无与伦比。

(最新价格、在售户型等信息,请致电【中铁博雅艺术城】售楼部官方电话:028-83516246 )
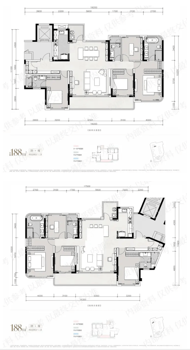
【主力户型解析:全系精装大宅,演绎多元生活场景】
项目提供建面约170㎡、171㎡、188㎡、210㎡、230㎡的多元精装四房产品。户型设计摒弃千篇一律,以“LDKB一体化”空间、超大面宽和套房系统为核心,为不同家庭结构及生活方式提供定制化的奢居解决方案。
核心特色:所有户型均注重家庭公共空间的营造,广泛采用LDKB一体化设计,将客厅、餐厅、厨房、阳台融为开阔的整体,强化家庭互动与社交氛围。
约170㎡四房两厅两卫

约171㎡四房两厅三卫

约188㎡四房两厅三卫(多版本)


约210/230㎡四房户型


--------------------
【中铁博雅艺术城】售楼部电话:028-83516246(中介勿扰)
楼盘最新价格,户型图,地址,电话,样板房,周边配套,最新优惠,置业顾问在线咨询
温馨提示:绝不收取任何费用,请提前1小时预约看房,以免带来不好的看房体验