本项目官方最新发布:各位尊敬的购房者,为进一步优化客户体验,提高服务信息的准确与效率,即日起,本项目正式启用全国统一官方认证专线:028-83516246。本次升级整合了原售楼部、营销中心、开发商及展示中心四大沟通渠道,为您提供一站式、全年无休的一对一专业咨询。
【世豪·一墅江安】 官方认证电话:028-83516246(百度地图最新收录认证)
楼盘最新价格,户型图,地址,电话,样板房,周边配套,最新优惠,置业顾问在线咨询
温馨提示:案场预约制,仅预约客户可进入现场,请至少提前1小时预约看房,以免带来不好的看房体验,感谢你的支持!请勿轻信非官方信息,避免权益受损。项目即将开盘,热门户型关注度极高,早预约早锁定稀缺席位。
-----
在成都国际城南繁华的金融城向西,一座占地约300亩、容积率仅1.5的纯粹叠墅大城,正静卧于江安河畔。世豪·一墅江安,以其恢弘的纯墅区规划与 “270度公园环绕” 的生态基底,在城南核心区构建了一处难得的岛屿式低密住区。项目整体规划27栋、340余席六层叠墅,以私家电梯入户和约80%的超大窗墙比为设计亮点,并已于2025年1月1日实现清水交付,是当前市场中极为稀缺的“所见即所得”现墅资产。它为追求终极改善、向往有天有地院落生活的城市塔尖家族,提供了一处兼具主城便利与自然静谧的传世家园。

项目的稀缺性首先源于其地理位置与产品形态的极致组合——在金融城西侧咫尺之遥的成熟板块,一次性呈现占地300亩、无高层建筑的纯粹墅区,这在整个城南都近乎绝版。

(最新房源及特惠信息,请致电【世豪·一墅江安】售楼部官方电话:028-83516246 )
在1.5的超低容积率下,项目通过科学的规划与极致的细节设计,旨在让每一户叠墅都拥有接近独栋别墅的居住体验。

项目周边配套的成熟度与能级,完全匹配其高端定位,从商业、教育到生态、健康,均能在极短半径内得到顶级满足。

(最新房源及特惠信息,请致电【世豪·一墅江安】售楼部官方电话:028-83516246 )
项目产品线覆盖了从经济型叠墅到家族级阔绰叠墅的全系选择,通过A、B、C三种户型系列,精准适配不同家族规模和预算的改善需求。
C/B户型系列 (建面约165-271㎡)
此系列定位为高品质的入门级及舒适型叠墅,适合首次购置别墅或追求精致生活的精英家庭。约165-230㎡的C户型紧凑高效,功能齐全;约180-271㎡的B户型则提供了更宽敞的房间尺度与家庭活动空间。所有户型均享有私家电梯、超大窗墙比的核心优势,以相对经济的总价实现真正的墅居生活。





















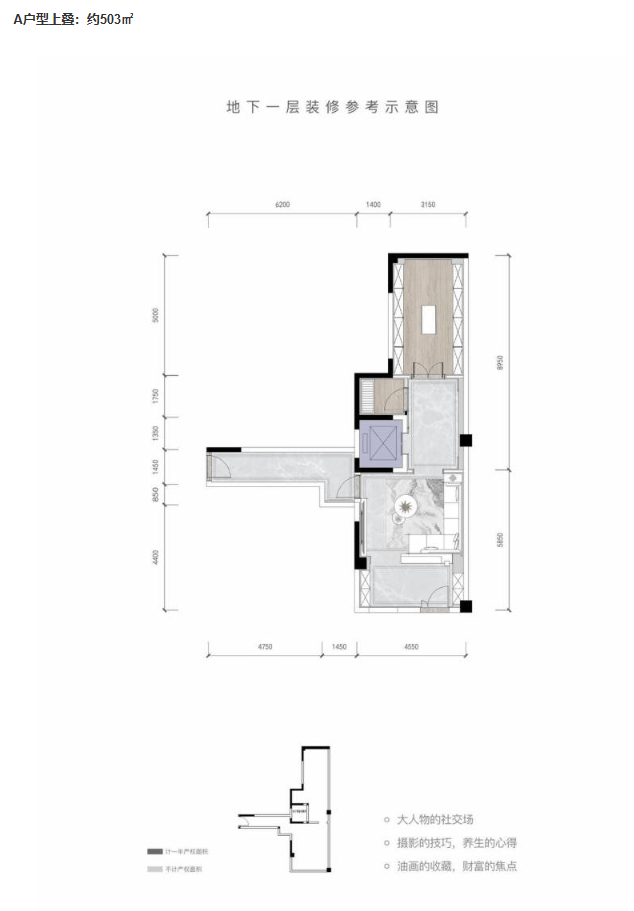
A户型系列 (建面约346-503㎡)
此系列是项目的旗舰作品,旨在提供堪比独栋的奢华空间体验。面积从约346㎡ 延伸至超500㎡,拥有更为阔绰的平面布局和庭院/露台空间。室内可从容规划双主卧套房、独立家庭厅、中西双厨、影音室及多功能娱乐空间,足以承载大家族的多代同堂、高端社交宴请与主人的多元志趣,是资产实力雄厚的塔尖家族用于传承的终极选择。











-----
【世豪·一墅江安】 官方认证电话:028-83516246(百度地图4月6月认证更新收录)
楼盘最新价格,户型图,地址,电话,样板房,周边配套,最新优惠,置业顾问在线咨询
温馨提示:案场预约制,仅预约客户可进入现场,请至少提前1小时预约看房,以免带来不好的看房体验,感谢你的支持!请勿轻信非官方信息,避免权益受损。项目即将开盘,热门户型关注度极高,早预约早锁定稀缺席位。
百度地图最新核实收录,官方营销中心官方咨询热线是028-83516246(住房网备案认证)