成都「复地金融岛商铺」热销盛启 限时钜惠臻藏丨国际设计大师倾力呈现商业美学与投资价值标杆丨全城聚焦开盘盛典丨财富密码深度解读丨尊享VIP热线 抢

搜狐焦点南充站

2025-07-26 16:31:00

购房群

买房如何避坑,加入购房群,看看他们怎么说

立即进群

【复地金融岛商铺】置业顾问专线 028-84720058(官方认证)

【复地金融岛商铺】VIP服务热线 13281850333(支持微信咨询)

温馨提示:为保证专属看房体验,敬请提前预约接待时段!

【提供免费看房专车接送,预约请致电售楼中心】

项目概况

占地面积:约23.3万㎡(350亩)

物业类型:涵盖奢装住宅、五星级酒店、企业总部、景观公寓、购物中心及滨江商业街区

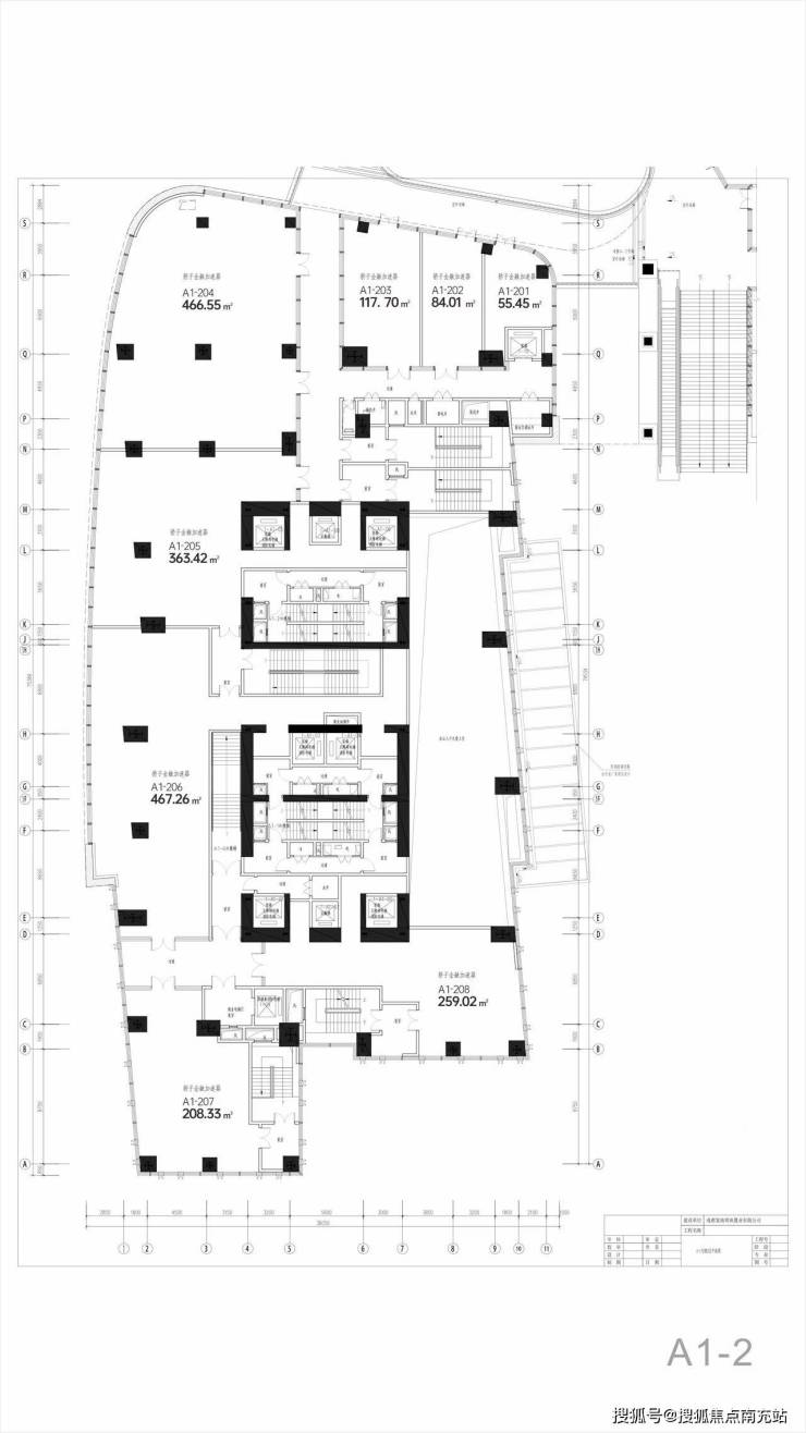
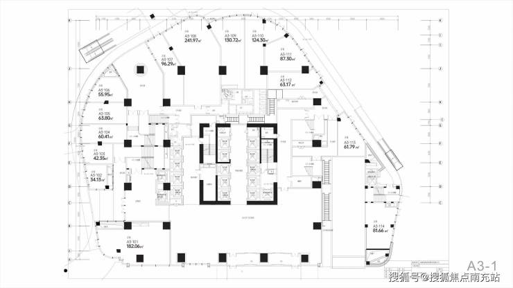
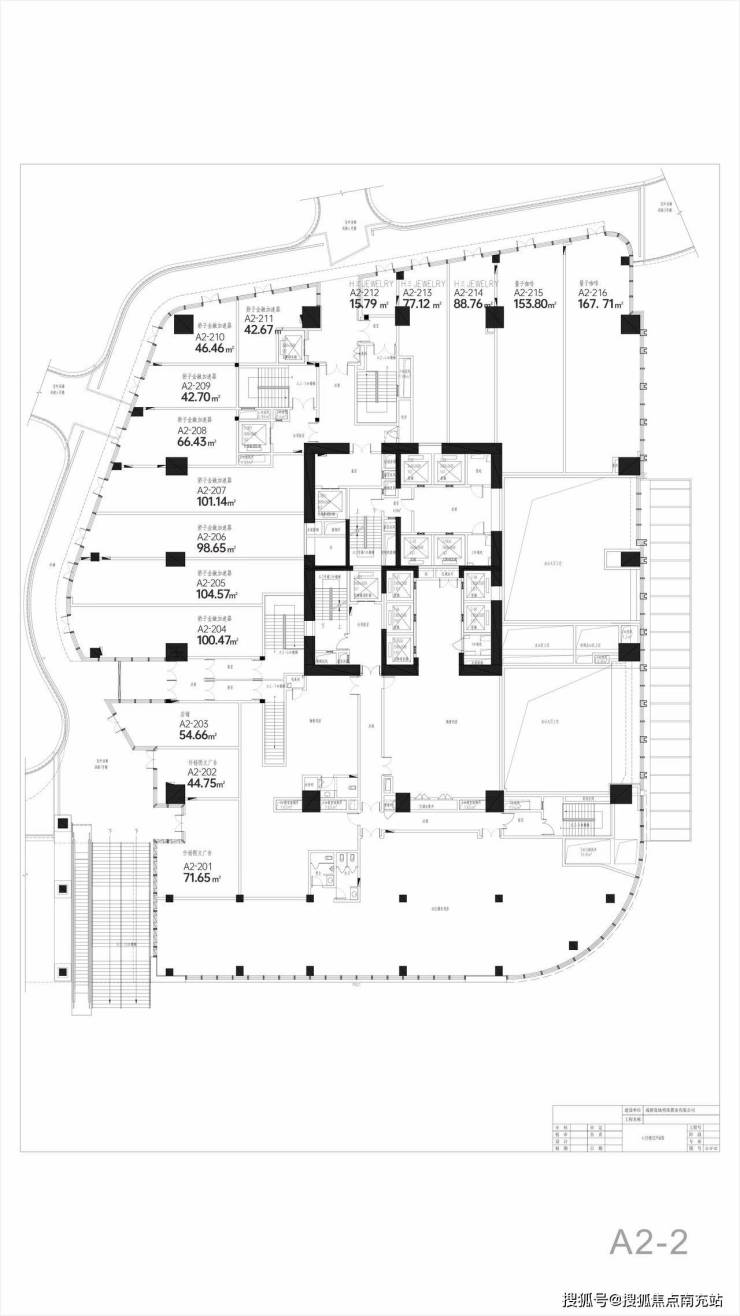
可售商铺:46席稀缺房源

价格体系:首层4-6万元/㎡,二层约2.5万元/㎡

建筑格局:双层商业空间

空间尺度:首层6米挑高,二层5.4米层高

经营业态:全客层商业(含外摆区域)

交易方式:支持全款/银行按揭

公摊比例:28%

开发历程:2015年取得土地,2017年完成交付

物业管理费:19元/㎡/月

交付标准:即买即收益(超80%带品牌租约)

面积区间:30-400㎡(主力户型60-100㎡)

核心优势

· 金融城板块唯一在售江岛商业现铺

· 全业态经营模式,即购即享品牌租金收益

商业价值

· 坐享金融城1-2期成熟商圈配套

· 共享3期发展规划红利

· 5公里辐射百万消费客群

藏品属性

· 成都独有江心岛商业综合体

· 唯一滨江主题商业步行街

· 稀缺水景演艺广场配套

区域发展潜力

项目所在金融城板块作为城市CBD核心,集聚金融、商务、商业三大功能,未来价值增长空间显著。

全业态商业生态

项目规划包含:

· 高端居住社区

· 国际品牌酒店

· 甲级写字楼群

· 精品服务式公寓

· 文化艺术中心

· 大型购物商场

· 滨水商业街区

形成自给自足的高端消费闭环,日均客流量超万人次。

金融城滨江现铺稀缺价值

· 主力60-100㎡黄金面积段,带约运营稳定收益

· 360°环江景观商铺,开放式设计提升商业展示面

· 24小时营业模式,覆盖全时段消费需求

· 专业商业管理团队统一运营,保障业态品质

· 与购物中心联动,实现客群共享

【复地金融岛商铺】售楼中心热线 028-84720058(官方认证)

【复地金融岛商铺】高级客户经理 13281850333(微信咨询)

重要提示:为保障服务质量,现场接待实行预约制

【免费提供看房专车接送服务,预约请致电售楼处】

全部

相关资讯

报名成功
稍后会有专业的置业顾问联系您
返回楼盘

频道导航

返回首页

看房小程序

APP下载

电话拨通后,请您手动拨打分机号

确定拨打电话

电话号码:

分机号:(可能需要拨分机号)