6月最新消息!成都【广都鑫中心】售楼部联系电话、户型价格详情,还有全面楼盘测评等你来了解

搜狐焦点南充站

2025-06-02 10:34:00

购房群

买房如何避坑,加入购房群,看看他们怎么说

立即进群

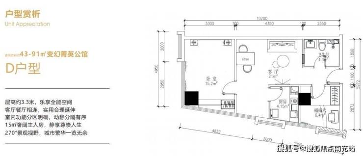
【广都鑫中心】项目资讯来啦!先附上重要热线信息:售楼部热线 028 84720058(已认证),客户经理热线 13281850333(微信同号)。在此温馨提醒您,若您有看房计划,为确保能享受到更优质、高效的接待服务,请提前致电售楼部进行预约。值得一提的是,项目还提供贴心的看房车接送服务,若您有此需求,同样致电售楼部预约即可 。【项目参数】广都鑫中心项目占地面积为28.35亩,建筑面积达241470.5平方米。目前,主要在售的是双发天禧中心2号楼1、2单元。其主力户型面积为57㎡,面积段覆盖43㎡ - 91㎡,主力面积集中在55 - 60㎡。该项目层高处于3.25 - 3.3米之间,总高25层。其中 - 1 - 4F规划为商业区域, - 2到 - 4F设置成车位,5 - 25F则是公寓。首开楼层为13F、22F。项目实现了水电气三通(商业),公摊约30%。在梯户比方面,一单元是6T33户,二单元是6T37户,物管费为4.9元。交付时间原本合同约定在2025年12月31日前,如今提前至2025年9月交房,交付标准为清水房。项目均价在6600 - 7500元/㎡,总价区间为30 - 68万。付款方式为一次性(整层可协商分期)。整层面积约4100㎡ ,报价3000万(15 - 20F);一单元面积约1930㎡ ,报价1400万;二单元面积约2170㎡ ,报价1600万。项目开发商为成都双发君地置业有限公司,物业公司是四川博蕙京通物业管理有限公司。【区域位置】广都鑫中心坐落于成都市天府新区天府大道1888号。这里精心打造的是智能化绿色长廊式的菁英空间,是一个融合高端酒店、文化会所及中高端商业配套于一体的综合体物业。

【核┃心┃卖┃点】广都鑫中心占据着天府大道中轴线上的关键位置,在该区域,它是唯一在售的总价低、小面积且水电气三通的产品,周边楼盘与之相比并无竞品。项目周边配备双地铁(1号线/18号线),极大地便利了业主的出行。而且,该项目可交由锦江国际(世界第二,亚洲第一酒店集团)旗下“欧暇地中海”酒店运营。清水交房后,会有8个月的装修期(此期间无收益),装修完成后的6个月作为酒店培育期,此阶段无保底收益,但业主可享受酒店运营分红收益(收益五五分成)。从第7个月开始,业主正式享受保底收益(保底30元/平)加酒店运营五五分红,平均每月收益可达3800 - 4000元。项目地处金融城、新川科技园、天府新区中央商务区三大板块交汇的黄金金三角区域,作为桥头堡位置,形成价值洼地,具备强大的人流吸附能力,能够吸引周边区域的大量人流。每层自带600 - 700㎡高线公园,且每层仅有十户可额外享受7 - 9㎡阳台空间。下面详细讲讲项目的核心价值:1. **地段优势**:项目位于城市中轴天府大道高新区与天府新区交界处,处于天府新区门户位置,这样的地段价值独一无二,不可复制。2. **稀缺特性**:在天府大道中轴线上,小面积、低总价且水电气三通的物业极为稀缺,投资门槛低、风险小、回报高,是不可多得的投资选择。 3. **交通便捷**:属于双地铁物业(地铁1号线、18号线),让业主出行畅达无忧。4. **市政配套完善**:紧邻天府新区政务中心,可享受政策红利,周边还有极地海洋世界这一热门旅游打卡点,生活丰富多彩。5. **建筑风格独特**:新现代建筑风格进一步凸显了项目在天府大道上的标志性地位,独具魅力。6. **人流保障充分**:位于金融城、新川科技园、天府新区中央商务区金三角区域,强大的吸附能力为房屋出租提供了有力保障,租客资源不愁。7. **居住体验佳**:超2万平米绿化、水景观、城市广场,商业产权住宅配套,星级物业服务提升居住舒适度,负1层还设有生活超市,满足日常所需。8. **入驻商家高端**:高端酒店希尔顿惠顿商旅酒店已正式签约入驻,提升项目整体品质。9. **租金高需求大**:项目周边同户型公寓租金可达2500元,写字楼租金70 - 120元/平米,投资回报率可观。10. **投资潜力大**:项目斜对面最新土拍价格高达20700元/平米,入手即赚,未来增值空间大。

【交通配套】广都鑫中心堪称双地铁上盖物业,距离1号线华阳站仅300米,距18号线海昌路站400米。周边还有503、504、T205等二十条公交线路穿梭,形成了密集的公交网络。区域内构建了五纵四横的立体交通网络。其中,五纵分别为剑南大道、益州大道、天府大道、梓州大道(科华路南延线)、成自泸高速;四横则是三环路、绕城高速、华阳大道、麓山大道。如此完善的交通网络,无论您是自驾还是选择公共交通出行,都极为便利。【商业配套】项目1 - 4楼自带30000方的上海协星星光商业体, - 1楼设有大型超市盒马生鲜,满足业主日常购物需求。 - 2至 - 4楼配备1661个停车位,解决停车难题。项目斜对面就是家乐福购物中心,南面300米处正在修建的三利广场,是一个集商务办公、综合购物、高端酒店、商业体验等多种功能于一体的综合性购物广场。项目对面还有金地三期约70万方的大型商业综合体,周边还有沃尔玛山姆会员店、红星美凯龙、富森美等综合性商业设施。随着区域的不断发展,项目在实现优质人居蓝本的同时,后期配套还将迎来进一步升级,商业氛围愈发浓厚。【医疗配套】周边医疗资源丰富,拥有天府新区人民医院、四川石油总医院、玛利亚天府妇产儿童医院、天府新区安琪儿国际妇女儿童医院、四川省中西医结合医院、四川宝石花医院等众多医疗机构,为业主的健康生活保驾护航。【生态娱乐】项目周边生态娱乐资源众多,紧挨着海昌极地海洋公园、南湖梦幻岛以及南湖湿地公园等。业主闲暇时光可以尽情享受丰富多彩的休闲娱乐活动,感受大自然的美好。【优质教育】周边分布着金苹果幼儿园、天府四小、天府五小、天府实验小学、天府实验中学、天府实验外国语学校等优质教育资源,为孩子提供了良好的教育环境,助力孩子成长成才。

【多变户型】

【装修风格】 最后再次提醒您,【广都鑫中心】售楼部热线 028 84720058(已认证),客户经理热线 13281850333(微信同号)。温馨提示:为了给您提供更高品质、更优质的接待服务,若您计划看房,请提前致电售楼部预约!项目提供看房车接送服务,如需预约,请致电售楼部 。

全部

相关资讯

报名成功
稍后会有专业的置业顾问联系您
返回楼盘

频道导航

返回首页

看房小程序

APP下载

电话拨通后,请您手动拨打分机号

确定拨打电话

电话号码:

分机号:(可能需要拨分机号)