成都蔚蓝卡地亚湖滨城售楼处电话丨户型解析丨价格走势丨十一黄金周特惠政策丨楼盘百科丨项目详情介绍

搜狐焦点南充站

2025-11-17 15:26:00

购房群

买房如何避坑,加入购房群,看看他们怎么说

立即进群

卡地亚湖滨城】售楼部电话:028 - 62444811(已认证)

【卡地亚湖滨城】销售经理电话:15388440405(微信同号)

温馨提示:为了提供更高更好的接待服务质量,看房请提前1小时致电预约!

坐落于成都市南部黄金地段,蔚蓝湖滨1号是一处备受向往的所在。这座高端住宅项目由新加坡国宝级设计大师曾仕乾亲自设计,汇集了全球顶尖的建筑理念,巧妙地融合了自然和艺术元素,熠熠生辉于城市中。

【项目参数】

占地:怡心湖占地1400亩 湖面占地500亩

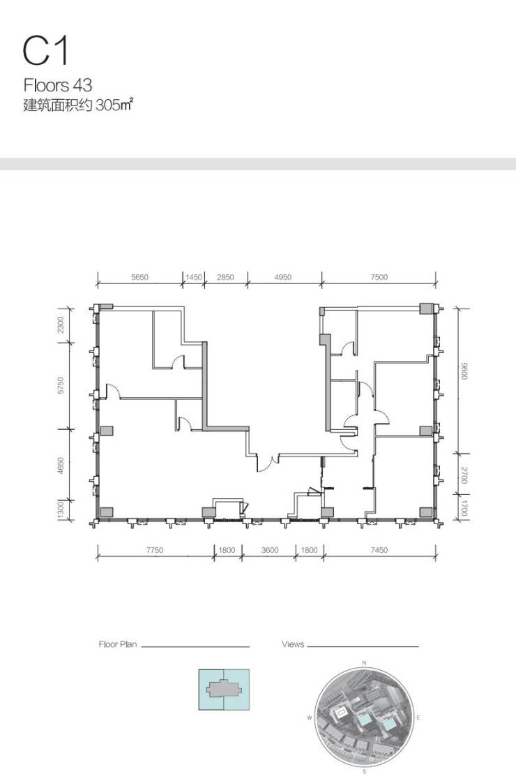
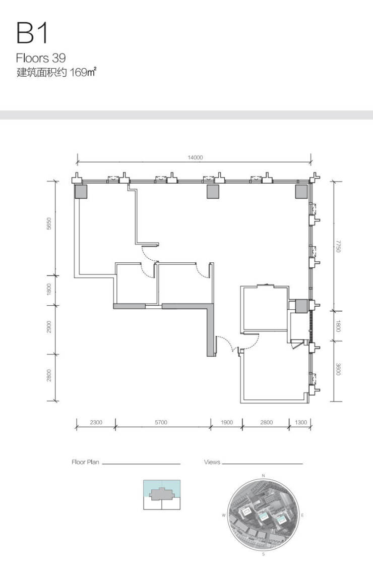
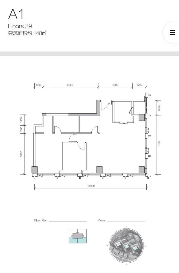
面积:148-169 平、305平

价格:2-3万 总价区间 350-420万

物管费:6元

公摊:26%

梯户比:3T4户

付款方式:按揭5成、全款

交付标准:精装

交房时间:2024年底

本次推出 A 区 2、3 栋产品,首批次仅剩余50套房源。2、3 栋都是 3 梯 4 户布局,每个户型均享受 270 度采光。

【产品价值】

由于整体规划亮点,每个组团的均好性非常强,各具优势。国际化生活方式的构建不仅要有优雅宜人的景观环境,还需营造出友善、健康的观念和社群意识。

首批次推出的湖滨 1 号,位于东区 A 区,楼下就是地铁 5 号线、19 号线站点,北侧 100米处是文化艺术中心,东北紧邻 6.5 万平米叠水公园,与公园湖景仅 200 米直线距离。是非常绝佳的位置。

「蔚蓝湖滨 1 号」可享受三重配套:

第一重:公共配套——怡心湖片区的交通、购物、酒店配套,以及驱车 10 分钟即可享受到高新区或天府总部商务区的购物、休闲、商务配套。

第二重:湖滨城市配套——下楼即可享受蔚蓝湖滨城打造的文化艺术中心、双五星级酒店、南岸商业和地铁商业,A 组团紧邻文化艺术中心,到达湖面北侧直线距离仅 200 米。东北侧紧邻跌水公园私享 6.5 万平米的城市绿洲;南侧紧邻地铁 5 号线、19 号线出口,与地铁无缝接驳。下楼即拥有公园、文化艺术、商业、地铁轨道交通等丰富配套。

第三重:专属配套——蔚蓝湖滨 1 号业主的专属配套:3 万平米中庭景观,长达 25 米独立泳池会所、极具仪式感的五星级入户大堂,并配以健身房、咖啡区、阅读空间等。

【户型图品鉴】

蔚蓝湖滨1号不仅是一座建筑,更是一种生活方式的体现。它以独特的艺术理念、卓越的建筑设计和完善的生活配套,成为了城市中的一道亮丽风景线。在这里,居住者可以尽情享受自然与艺术的双重滋养,感受生活的美好与惬意。

卡地亚湖滨城】售楼部电话:028 - 62444811(已认证)

【卡地亚湖滨城】销售经理电话:15388440405(微信同号)

温馨提示:为了提供更高更好的接待服务质量,看房请提前1小时致电预约!

全部
报名成功
稍后会有专业的置业顾问联系您
返回楼盘

频道导航

返回首页

看房小程序

APP下载

电话拨通后,请您手动拨打分机号

确定拨打电话

电话号码:

分机号:(可能需要拨分机号)