成都「爱家春和凤鸣」售楼部电话|项目详情|热销户型|一房一价查询|3月房价走势

搜狐焦点南充站

2026-03-03 15:33:00

购房群

买房如何避坑,加入购房群,看看他们怎么说

立即进群

爱家春和凤鸣】售楼部电话:028-62444811(已认证)

【爱家春和凤鸣】销售经理电话:15388440405(微信同号)

温馨提示:为了提供更高更好的接待服务质量,看房请提前1小时致电预约!

项目配套价值

1、地铁双线•下楼即至,步行友好的高效生活配套

步行即至的凤溪河地铁站,享受地铁4号线、19号线双线(距离300米)。

2、三轴一高快捷路网,高效出行•无界全城

邻凤溪大道,光华8线,光华大道,和成温邛高速联通,全城皆能快速直抵。

3、光华活力核芯•繁华俱揽,同频一线商业能级

让逛街购物也能成为下班途中的顺道之旅。楼下就是大润发,闲逛之间就已到家。

繁华近享新光天地,合生汇,伊藤洋华堂,永辉超市等,每天逛得不重样,生活时刻保鲜。

4、一河三公园自然滋养,静赏时光漫步

茶余饭后的散步间,即抵杨柳河生态走廊,清风拂面,静享怡然。周边光华公园,凤栖湖中央公园,温江公园环伺,让生活回归自然。

5、书香诗礼•优质学府领衔,让成长天生与众不同

川师温江附属学校,东一杨柳河小学,嘉祥外国语学校等,雄厚的师资配置,开启孩子们智慧的大门。西南财经大学,成都师范学院等大学高校,营造浓郁的诗书氛围,让孩子们更主动的去享受知识。

6、安心守护•健康陪伴,给予家人更好的医靠

温江区中医院,成都市第五人民医院等,为健康生活守护。

【基础信息】

项目占地:36亩

容积率:2.5

物业费:2.1元/㎡/月

车位比:1:1.44

交房时间:2026年12月

项目产品:纯三房产品,首开1号楼(2个单元68套)2T2小高层17F:116㎡

精粹传承•底蕴承载,塑造高标迎宾的归家仪式

以现代现代石材结合金属线条,约8.5米挑高星级门厅,营造气势恢宏的尊崇门礼,归家的第一道风景线。

镜面美学•城市封面,高端建筑质感

大面宽Low-E玻璃,构建公建化外立面,镜面美学与品质石材相得益彰,筑就高品质感的建筑美学。

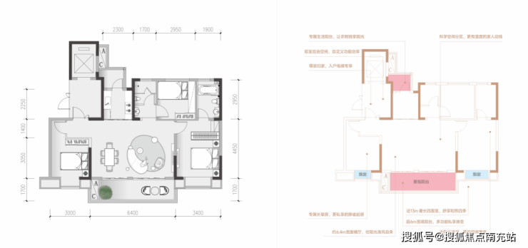
户型鉴赏

建面约107平套三

建面约116平套三

爱家春和凤鸣】售楼部电话:028-62444811(已认证)

【爱家春和凤鸣】销售经理电话:15388440405(微信同号)

温馨提示:为了提供更高更好的接待服务质量,看房请提前1小时致电预约!

全部

相关资讯

报名成功
稍后会有专业的置业顾问联系您
返回楼盘

频道导航

返回首页

看房小程序

APP下载

电话拨通后,请您手动拨打分机号

确定拨打电话

电话号码:

分机号:(可能需要拨分机号)