成都【广都鑫中心】售楼处电话(已认证)-项目价值解析-租金详情-3月最新价格-值得投资吗

搜狐焦点南充站

2026-03-10 09:48:00

购房群

买房如何避坑,加入购房群,看看他们怎么说

立即进群

【广都鑫中心】售楼部电话:028-62444811(官方认证)

【广都鑫中心】销售经理电话:15388440405(微信同号)

温馨提示:了解楼盘最新动态和优惠政策,可致电售楼部。看房请提前线上预约,可享内部优惠。

广都鑫中心位于天府大道上,周边有1、18号线的双地铁站,不远处是三利广场的商业,街对面是极地海洋世界,并且,乘坐地铁一号线5个站到天府三街站,乘坐18号线,1个站就能到达世纪城,成为后期租房客群的保障。

成都广都鑫中心核心亮点(天府大道双地铁低总价投资神盘)

1.地段稀缺:天府大道中轴门户,金融城+新川+天府CBD黄金三角,天府新区唯一在售水电气三通小户型,斜对面土拍20700元/㎡,价值洼地闭眼入

2.交通顶配:双地铁上盖(1号线华阳站300米+18号线海昌路站400米),15分钟到金融城,30分钟双机场,五纵四横路网全城通达

3.配套拉满:自带3万㎡商业+盒马鲜生,300米三利广场,山姆/家乐福环伺;1公里极地海洋公园+南湖湿地,全龄教育(金苹果/天府四小)+6家三甲医院配齐

4.投资王炸:总价30-68万(单价6600-7500),首付15万起门槛极低;锦江国际酒店托管,保底30元/㎡+五五分红,月收益3800+,周边同户型月租2500稳租

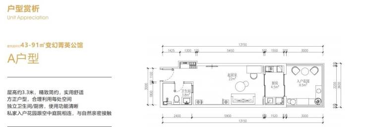
5.产品实用:43-91㎡清水小户(主力55-60㎡),3.25-3.3米层高,部分赠7-9㎡阳台,水电气三通自住成本低,办公/民宿/自住多场景适配,准现房已提前交房

6.人流保障:三大产业区50万高净值人群,出租率95%+,希尔顿惠顿酒店已签约,每层带高线公园,星级物业4.9元/㎡加持

【户型鉴赏】

A户型

C户型

【广都鑫中心】售楼部电话:028-62444811(官方认证)

【广都鑫中心】销售经理电话:15388440405(微信同号)

温馨提示:了解楼盘最新动态和优惠政策,可致电售楼部。看房请提前线上预约,可享内部优惠。

全部

相关资讯

报名成功
稍后会有专业的置业顾问联系您
返回楼盘

频道导航

返回首页

看房小程序

APP下载

电话拨通后,请您手动拨打分机号

确定拨打电话

电话号码:

分机号:(可能需要拨分机号)