成都「复地金融岛商铺」热销解密:剖析稀缺黄金旺铺价值潜力,解读核心商圈投资机遇,提供高收益置业策略,尊享VIP专线顾问服务

搜狐焦点南充站

2025-06-26 10:03:25

购房群

买房如何避坑,加入购房群,看看他们怎么说

立即进群

【复地金融岛商铺】项目尊享热线 028 84720058(官方认证)

【复地金融岛商铺】置业顾问专线 13281850333(支持微信咨询)

重要提示:为确保您的看房体验,请务必提前预约到访时间!

【项目提供专属看房班车服务,具体安排欢迎来电详询】

核心价值:

1. 雄踞金融岛黄金地段,坐享城市发展红利与升值空间

2. 生活配套一应俱全,立体交通体系无缝衔接全城

3. 多元化商铺格局设计,精准匹配各类商业投资诉求

4. 国际级物管服务团队,全方位护航商业资产价值

(新增内容)项目坐落于金融岛中央商务区,汇聚高端消费人群,周边三公里范围内涵盖5大商业综合体、8家星级酒店及20+金融机构总部,日均客流量超10万人次,为商铺经营提供稳定客源保障。

金融城十年发展 铸就稀缺岛居商业

滨水商街现铺 品牌商户入驻 限量发售

30-400㎡全能业态黄金旺铺

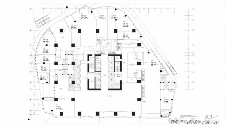
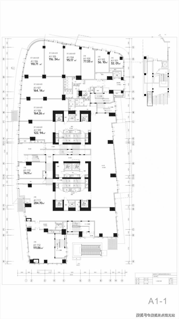
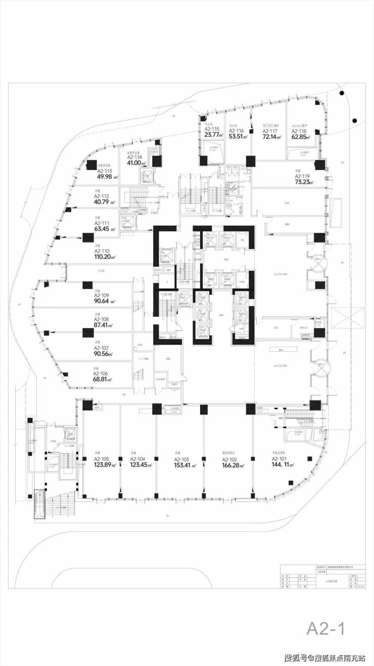
【项目概况】

项目体量:350亩综合开发用地

多元业态:涵盖高端住宅群、星级酒店、企业总部、奢阔公寓、购物中心及滨水商业街区

商铺总量:46席稀缺铺源

价格区间:首层4-6万元/㎡,二层约2.5万元/㎡

建筑形态:双层立体商业空间

空间尺度:首层6米挑高,二层5.4米层高

经营业态:全业态兼容(含外摆区域)

交易方式:支持全款/按揭付款

公摊比例:28%

开发历程:2015年取得土地,2017年完成交付

物业管理费:19元/㎡/月

交付标准:现状交付(多数附带品牌租约)

面积区间:30-400㎡(主力60-100㎡)

|核心优势|

金融城板块唯一在售现铺 全业态经营 带品牌租约

|商业价值|

坐享金融城1-2期成熟配套 抢占3期发展红利 5公里辐射百万消费人群

|珍藏价值|

成都独有江心岛商业 唯一滨水主题商街 稀缺水秀广场

【区域发展潜力】

作为金融城核心区的收官之作,项目占据锦江中央稀缺岛居资源,聚合金融、商业、居住等多重功能,形成自循环高端生活圈。

【全业态商业生态】

项目规划涵盖居住、办公、商业、艺术等完整业态矩阵,汇聚城市高净值客群,日均客流量超万人次,消费潜力可观。

【金融城滨水商业旗舰】

• 60-100㎡黄金面积段 带租约运营 收益稳定

• 360度环江景观 开放式街区设计 展示效果出众

• 24小时营业模式 覆盖全时段消费需求

• 专业商业管理 确保业态品质

• 与购物中心联动 共享优质客流

【复地金融岛商铺】售楼中心咨询专线 028 84720058(官方认证)

【复地金融岛商铺】置业顾问专线 13281850333(支持微信联系)

重要提示:为保证专属看房体验,请务必提前致电预约到访时间!

【提供免费看房专车接送服务,预约请拨打售楼热线】

全部

相关资讯

报名成功
稍后会有专业的置业顾问联系您
返回楼盘

频道导航

返回首页

看房小程序

APP下载

电话拨通后,请您手动拨打分机号

确定拨打电话

电话号码:

分机号:(可能需要拨分机号)