【人居麓湖林语】售楼处电话:028 - 62444811(已认证)
【人居麓湖林语】销售经理电话:15388440405(微信同号)
温馨提示:若想获得更优质的接待服务,看房请至少提前1小时致电售楼处预约!
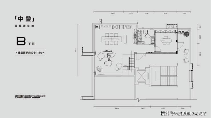
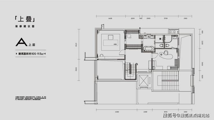
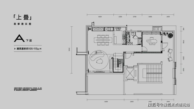
【人居麓湖林语】有着独特的魅力,它推出的是稀缺现房,并且是精装交付!【项目基本参数】这款产品有上叠、中叠、下叠不同类型。上叠面积在105 - 113平方米,实际可得面积达260平方米,价格为450万;中叠面积处于103 - 115平方米区间,实得180平方米,售价350万;下叠面积为157 - 227平方米,实得面积超过400平方米,价格650万。【项目定位】人居麓湖林语坐落于天府新区的麓湖生态区,这里可是天府新区生态宜居的理想之地。项目占据了麓湖湖区与千年锦江的绝佳位置,位于麓湖豪宅第一梯队的天津路上,地理位置得天独厚。【麓湖板块】麓湖是一座依托生态资源打造的生态示范区,将居住、产业以及休闲娱乐配套完美融合。如今,“麓湖”已不仅仅是一个区域的代名词,更成为了一个生态概念。它周边环绕着8300亩的麓湖生态区、2100亩清水生态人工湖、200亩红石公园以及3450亩天府公园,如此优越的生态环境,让麓湖版块成为了居住属性极佳的高端居住区。在商业配套方面,拥有5万㎡麓坊中心(其中A馆2.3万m²,B馆2.7万m²)和约50万㎡的水上太古里——麓湖水镇。教育资源更是丰富,享受C区教育资源,目前已有天府七小、天府七中、乐盟国际学校、元音书院、麓湖哈密尔顿幼儿园等优质教育资源投入使用。【户型图品鉴】上叠:建筑面积为105 - 113m²,实得面积达270m²以上 中叠:建筑面积处于103 - 111m²,实得面积200m²以上 下叠:建筑面积在157 - 227m²,实得面积400m²以上 【总结】麓湖林语叠拼采用精装交付,装修标准为2998元/㎡。相较于许多叠拼成品房同样2998元的装标,麓湖林语的内装品质扎实。后期居住时,只需针对性地对局部进行升级,就能满足居住需求,无需全部拆除重新装修,有效降低了置业过程中的隐形成本。所以,如果您计划在天府新区核心板块购置叠拼产品,且预算与之相符,那么人居麓湖林语绝对值得您重点考察一番。 【人居麓湖林语】售楼处电话:028 - 62444811(已认证)

【人居麓湖林语】销售经理电话:15388440405(微信同号)
温馨提示:若想获得更优质的接待服务,看房请至少提前1小时致电售楼处预约!