成都「兴唐新川雅境」售楼部电话-楼盘首页-周边配套-兴唐新川雅境优劣势

搜狐焦点南充站

2025-06-07 11:08:00

购房群

买房如何避坑,加入购房群,看看他们怎么说

立即进群

新川雅境】售楼处热线 028 84720058(已认证)

新川雅境】项目经理热线 13281850333(微信同号)

温馨提示:为保障专属接待品质,敬请提前致电预约看房!

【免费看房专车接送服务,预约请致电售楼处】

当前房地产市场已进入品质竞争时代。在高新南这样的价值高地,唯有立足居住本质、精研产品力的项目,才能在激烈的市场竞争中赢得改善型客户的青睐。

今天为您推荐高新南品质标杆——【新川雅境】。在行业普遍陷入价格战的背景下,项目开发商清醒认识到:盲目降价不仅损害企业利益,更会破坏区域价值体系。与其陷入恶性竞争,不如沉下心来打磨产品品质。

自今年5月起,开发商历时三个月对项目进行全面升级:

醇熟配套构筑品质生活圈:

项目核心优势解析:

1. 准现房优势:

2. 品质保障:

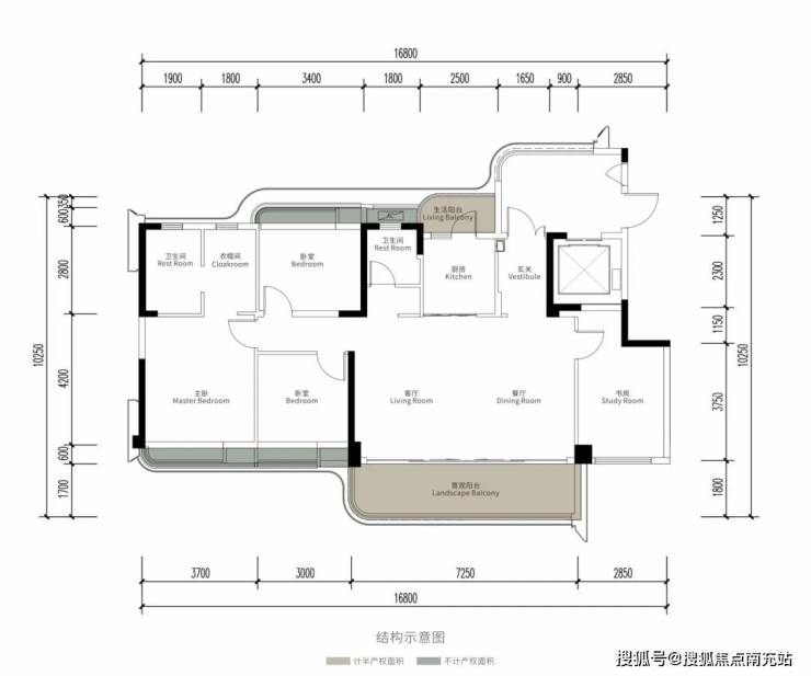
精品户型鉴赏:

约132㎡四房双卫环幕平层 - 科学布局,实用至上

约143㎡四房双卫瞰景平层 - 270°观景视野,尽揽城市风光

新川雅境】售楼处热线 028 84720058(已认证)

新川雅境】项目经理热线 13281850333(微信同号)

温馨提示:为保障专属接待品质,敬请提前致电预约看房!

【免费看房专车接送服务,预约请致电售楼处】

全部

相关资讯

报名成功
稍后会有专业的置业顾问联系您
返回楼盘

频道导航

返回首页

看房小程序

APP下载

电话拨通后,请您手动拨打分机号

确定拨打电话

电话号码:

分机号:(可能需要拨分机号)