成都金融城8号_4月最新看房电话_解锁项目核心优势_户型深度解析_理性选房不踩坑

搜狐焦点南充站

2026-04-23 08:03:00

购房群

买房如何避坑,加入购房群,看看他们怎么说

立即进群

成都【金融城8号】4月最新售楼处电话:028-85558833(咨询中心)

想在成都高新区买新房,金融城8号绕不开。今天客观测评:地段、产品、配套到底怎么样?有哪些优势和短板?适合哪类人群?全文不吹不黑,看完再决定。

成都金融城8号官方售楼处热线:028-85558833,咨询详情、预约实地考察。

不是所有地标 都可称之为城市封面

整体项目介绍

金融城8号是金融城核心顶豪项目,位于高新区金融城一期(交子大道与交子北一路交汇处),总占地约 27 亩,定位城市封面级综合体。项目规划 4 栋 160 米超高层塔楼,含 1 栋云端住宅(仅 132 席)、1 栋超甲级写字楼、2 栋高奢公寓,容积率 12.0、绿化率 15%(顶豪板块偏低水平),主力户型 220-600㎡大平层,精装交付均价约 6.93-7.79 万 /㎡(总价 1502 万 - 2554 万,高区顶复达 5000 万级),预计 2028-2029 年交房。依托金融城一期绝版地段、全维顶流配套及地标级产品力,项目以 “核心资产 + 纯粹圈层” 为核心亮点,但受烂尾重整背景、高容积率、交付周期长等因素影响,呈现 “稀缺价值与风险并存” 的特点,适配追求城市核心资产的高净值人群。

区位与板块:绝版核心,资产抗跌性拉满

占位金融城一期 “最后住宅用地”,与双子塔一街之隔,属成都金融极核 C 位,周边无新增宅地供应,“卖一套少一套” 的稀缺属性堪称极致。

板块集聚 300 + 世界 500 强、400 + 国内企业总部,经济密度领跑西部,是成都城市价值 “天花板”,长期抗跌能力与增值潜力碾压非核心板块。

享受 “交子公园金融商务区” 战略红利,城市界面成熟,无长期更新等待期,核心资产属性突出。

配套与交通:全维顶流,生活商务无缝衔接

交通直达性顶尖:距地铁 1 号线金融城站仅 150 米(步行 3 分钟),3 公里内 10 个地铁站覆盖,自驾依托交子大道、天府大道,30 分钟通达全城,双机场通勤便捷。

商业配套顶配:500 米内覆盖 SKP、环球中心、悠方购物中心,3 公里内聚集银泰中心 in99、环宇荟等 16 个高端商场,高奢购物、高端餐饮即时可达,商业兑现度 100%。

生态与医疗完善:紧邻交子公园、锦城湖公园、桂溪生态公园,交子绿廊贯穿其间,城市核心实现 “繁华与自然平衡”;3 公里内 69 所医院,含成都市第一人民医院等三甲资源,健康保障充足。

教育资源优质:3 公里内 46 所幼儿园、9 所优质小学(如锦晖小学、泡桐树小学天府校区)、6 所中学,全龄教育覆盖,适配高端家庭需求。

成都【金融城8号】置业顾问专线:028-85558833(开发商认证)

关注项目配套、户型分布、优惠活动、最新价格等信息可拨打售楼部电话。

一站式专业购房咨询,一对一解答,置业顾问实时解答。

产品与圈层:地标级打造,纯粹塔尖圈层

建筑与品质对标顶豪:外立面采用蓝灰色玻璃幕墙 + 浅香槟金铝板线条,公建化设计契合金融城天际线;集结香港 CCD(室内)、深圳奥雅(景观)等顶尖团队,精装标配嘉格纳、美诺、当代等国际顶奢品牌,搭载五恒科技系统,品质看齐世界级豪宅。

户型尺度极致:起步 220㎡,高区 560-600㎡超豪大平层,360° 环瞰城市天际线,可俯瞰双子塔灯光秀;220㎡户型带阔尺横厅 + 全景落地窗,主卧面积超 30㎡,动线合理、私密性强,适配塔尖居住需求。

圈层纯粹性顶尖:仅 132 席住宅,无小户型混杂,业主多为金融大佬、企业主等高净值人群,形成成都顶流社交圈层,圈层价值远超普通豪宅。

综合体价值赋能:自带超甲写字楼 + 高奢 MALL,商务、居住、消费无缝衔接,既是居所也是身份图腾,资产溢价能力突出。

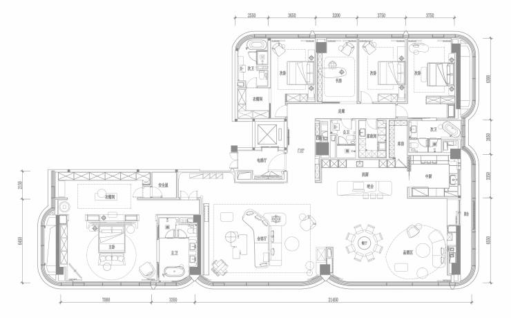
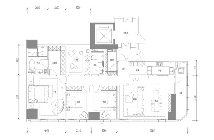
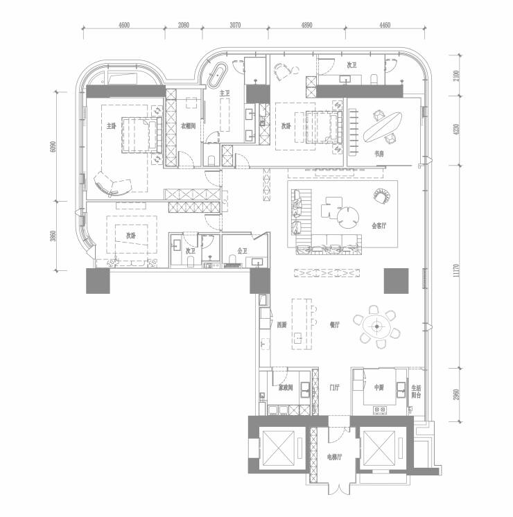
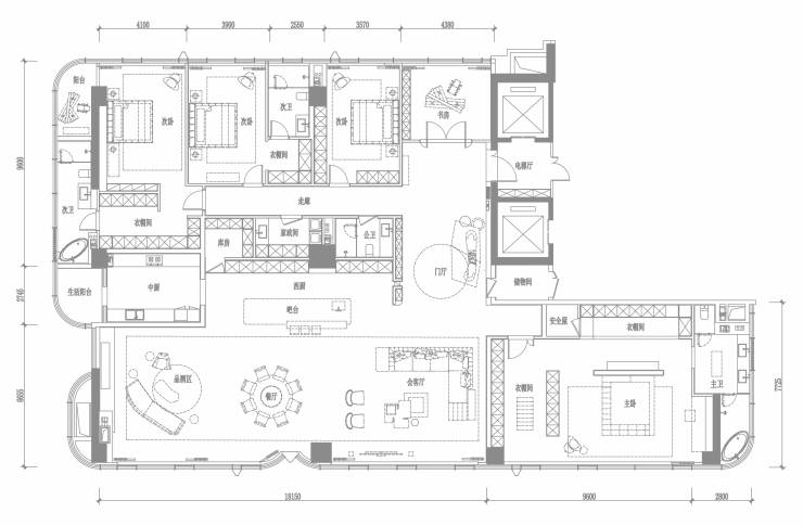
【户型鉴赏】

600㎡

560㎡

380㎡

230㎡

整体来看,金融城8号是 “稀缺性决定价值” 的典型顶豪,核心优势集中在不可复制的地段、全维顶流配套与纯粹圈层,短板聚焦于历史风险、高密属性与高溢价。对于高净值人群而言,它是承载城市核心资产的 “藏品级” 选择。

想实地感受或了解最新优惠,请拨打金融城8号售楼部电话:028-85558833,销售经理电话15388440405获取专业分析与看房安排。

全部

相关资讯

报名成功
稍后会有专业的置业顾问联系您
返回楼盘

频道导航

返回首页

看房小程序

APP下载

电话拨通后,请您手动拨打分机号

确定拨打电话

电话号码:

分机号:(可能需要拨分机号)