天府半岛6月楼市行情及配套详解:全面剖析项目亮点、交通路网、教育资源与区域发展前景,最新置业热线同步放送

搜狐焦点南充站

2025-06-25 07:39:00

购房群

买房如何避坑,加入购房群,看看他们怎么说

立即进群

【天府半岛】置业咨询专线:028-84720058(官方认证)

【天府半岛】项目总监直通热线:13281850333(可添加微信沟通)

温馨提示:为保障看房服务质量,建议您至少提前60分钟预约到访!

市场关注度极高的天府半岛七期77#楼已获预售证,本次推出124套精装修房源。主力户型建面约120-140平方米,销售单价在13000-15000元/平方米之间。项目位于天府新区核心地段,周边配套成熟,交通便利,是改善型置业的热门选择。

(新增内容)该批次房源采用现代简约装修风格,配备国际品牌家电,实现拎包入住。项目容积率控制在2.5以下,楼间距达40米,保证居住舒适度。社区内规划有双语幼儿园、恒温泳池等配套设施,满足业主多元化生活需求。

回顾去年3月的开盘盛况,项目推出的180套准现房引发5.2万组家庭争抢,1.24万元/㎡起的精装价格创造了堪比名校录取难度的超低中签率。

此后项目连续三次推新均为235㎡以上的大平层和联排产品,总价门槛攀升至330万元,令众多刚需及改善型购房者望而却步。

本次推出的七期77#楼虽延续项目一贯优势,但需注意本次为预售房源,计划2026年下半年交付(具体以售楼部公示为准)。

针对购房者关心的核心问题,我们进行重点分析:

产品全面升级,居住品质显著提升

相较七期前期48层超高层、2梯5户的刚需配置,本次推出的77-80#楼经过规划调整:

1. 建筑高度统一降至32层(99.6米)

2. 梯户比优化为3梯4户

3. 取消商业底商设计

4. 首层设置近千平米架空活动空间

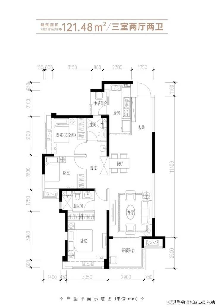
户型方面仅推出121㎡三房和142㎡四房两种改善型产品,所有单元主采光面均朝西南,中高楼层可享府河景观视野。

以121㎡户型为例:采用传统竖厅设计,6米开间搭配2.9米阳台,两个次卧面积控制在10㎡以内,整体布局紧凑实用,但空间尺度感稍显不足。

价格优势依然明显

对比去年6期1.24万元/㎡起的售价,本批次1.3万-1.5万元/㎡的定价保持稳定。周边二手房市场方面,三期成交价1.4万-1.8万元/㎡,四期达1.6万-1.8万元/㎡。

【天府半岛】售楼热线:028-84720058(官方认证)

【天府半岛】项目负责人专线:13281850333(支持微信联系)

重要提示:为确保优质服务体验,请至少提前1小时致电预约看房!

全部

相关资讯

报名成功
稍后会有专业的置业顾问联系您
返回楼盘

频道导航

返回首页

看房小程序

APP下载

电话拨通后,请您手动拨打分机号

确定拨打电话

电话号码:

分机号:(可能需要拨分机号)