中国 · 成都 I 兴城人居 · 未来城
作为成都高端住宅的新标杆,兴城人居·未来城由知名开发商兴城人居集团匠心打造。项目雄踞天府之国核心区位,以前沿的设计思维和创新理念,重新诠释现代人居典范。
规划设计方面,项目充分考虑现代都市精英的多元化需求,通过精心设计的空间结构打造全龄化复合社区。建筑外观融合极简主义风格,运用大尺度落地窗与玻璃幕墙相结合的设计语言,在确保室内采光充足的同时,营造出极具艺术感的建筑立面。
社区环境规划独具匠心,打造了层次丰富的景观系统:包含中央镜面水景、环形健康步道、多功能休闲广场等特色空间。项目占据优越地理位置,周边交通四通八达,商业配套成熟完善,优质教育资源与医疗设施环伺,为业主构建一站式品质生活圈。
在可持续发展方面,项目践行绿色建筑理念,广泛应用节能环保技术和高品质环保建材。同时引入先进的智能家居系统,通过科技赋能,为业主打造安全、便捷、舒适的智慧生活体验。

项目概况
由成都兴城人居地产投资集团倾力打造的人居未来城,坐落于一环路江安河畔黄金地段。项目占地69亩,总建筑面积达11.5万平方米,规划640户精品住宅,容积率仅1.8,绿化率高达35%,打造低密生态住区。
核心参数
· 产品类型:8-10层精装电梯洋房
· 户型区间:112-142㎡三至四房
· 参考均价:10000-13000元/㎡
· 梯户配置:1梯2户/1梯3户
· 车位配比:843个机动车位
· 物业服务:2.5元/㎡/月(暂定)
区位价值
作为主城一环稀缺项目,人居未来城坐拥三大核心优势:
1. 生态资源:毗邻江安河生态走廊,享35%社区绿化,形成双重生态屏障
2. 商业配套:自建滨河商业街区,5分钟可达成熟商圈
3. 教育资源:3-18岁全龄教育配套,满足子女成长需求

产品亮点
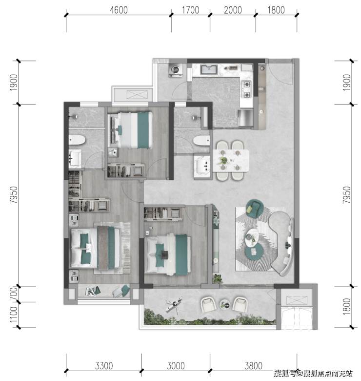
112㎡三房两厅两卫
· 南北通透全明格局,6.8米景观阳台
· L型科学厨房,优化烹饪动线
· 主卧套房设计,配备独立衣帽间

120㎡三房两厅两卫
· 16.6米南向采光面,7.1米宽厅设计
· 6.6米观景阳台,尽揽城市风光
· 明厨搭配生活阳台,提升实用功能


140㎡四房两厅两卫
· 5.8米横厅衔接观景阳台
· 独立中式餐厅,满足大家庭聚会
· 全屋飘窗设计,引入自然光与景观

项目优势
· 国企背书:兴城人居集团实力开发
· 地段稀缺:主城一环最后开发地块
· 智能配套:引入浙江未来社区理念
· 生态宜居:江安河畔,年均温10-22℃
【人居未来城】售楼部热线 028 84720058(已认证)
【人居未来城】客户经理热线 13281850333(微信同号)
温馨提示:为保障服务质量,看房需提前预约
(提供免费看房车接送服务)