成都「兴唐新川雅境」置业专线:解析臻稀户型设计优势+区域规划前景+实时价格趋势,资深顾问24小时一对一服务,助您抢占品质人居先机

搜狐焦点南充站

2025-07-08 19:17:13

购房群

买房如何避坑,加入购房群,看看他们怎么说

立即进群

新川雅境营销中心贵宾专线 028-84720058(官方认证)

新川雅境项目总监专属热线 13281850333(微信同号)

重要提示:为保障尊贵客户体验,样板间参观实行预约制,请提前来电登记!

【特别提供免费专车接送看房服务,具体预约方式详询营销中心】

在住宅产品全面升级的行业背景下,高新南区作为成都炙手可热的黄金板块,始终引领着高端改善型住宅的发展方向。当部分开发商陷入价格战时,真正经得起市场考验的,永远是那些回归居住本质、注重细节打磨的品质项目。

作为区域标杆之作,新川雅境开发商清醒认识到:恶性价格竞争不仅损害购房者利益,更会破坏区域价值生态。项目自2023年5月启动"品质跃升计划",历时三个月对四大核心板块进行系统升级:

· 重构社区景观体系,打造四季有景的生态住区

· 优化公共空间功能,提升业主社交体验

· 升级地下车库品质,注重实用性与美观度平衡

· 创新户型功能设计,实现空间价值最大化

全维生活配套图谱:

· 商业集群:3号邻里中心、时光里美食街、新川中心等多元商业体环绕

· 教育矩阵:涵盖蒙彼利埃小学、教科院附属学校、金苹果锦城一中等20余所名校

· 交通动脉:地铁6号线新通大道站举步可达

· 生态绿廊:坐拥双湿地系统,毗邻新怡公园与新川之心两大城市绿肺

准现房三大核心优势:

1. 时间价值:大幅缩短等待周期,实现快速入住,同步节省过渡期租房开支

2. 透明购房:实体呈现让购房者实地查验楼间距、采光通风等关键指标,告别"图纸买房"时代

3. 风险控制:兴唐地产首创"实景开放+延期开盘"模式,确保规划落地与产品兑现

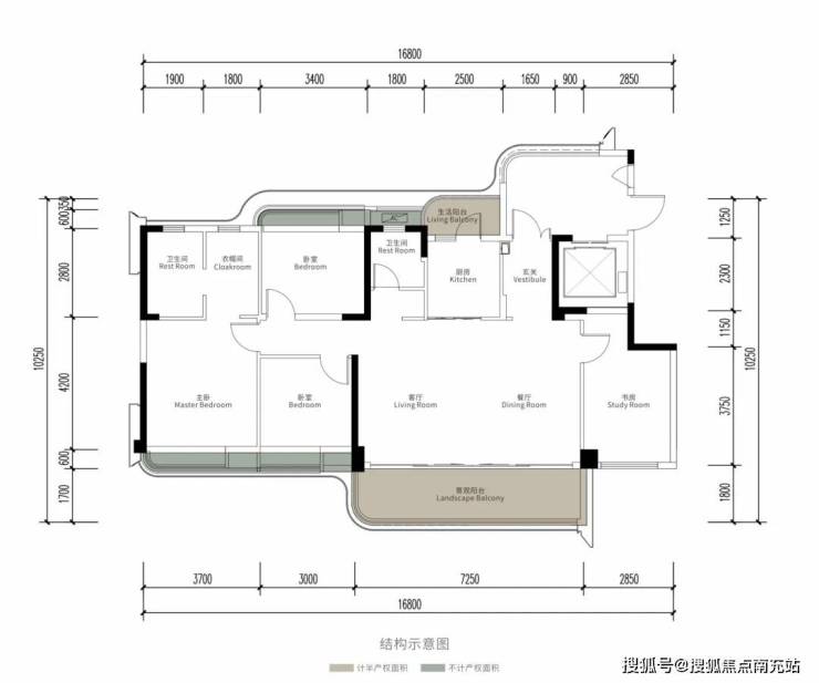
标杆户型深度解读:

132㎡四室两厅环幕平层:采用LDKB一体化设计理念,实现空间零浪费

143㎡四室两厅瞰景平层:创新270°全景视野,重塑人与自然共生关系

值得强调的是,新川雅境引入龙湖智创生活提供物业服务,以科技赋能社区管理。开发商兴唐地产虽非行业巨头,却以"慢工出细活"的开发理念,通过延长建设周期确保实景品质,从根本上保障业主权益。

新川雅境营销中心咨询热线 028-84720058(官方认证)

新川雅境项目总监专线 13281850333(微信同号)

温馨提示:为提供专属服务,样板间参观需提前预约!

【免费提供看房专车接送服务,预约细则请致电咨询】

全部

相关资讯

报名成功
稍后会有专业的置业顾问联系您
返回楼盘

频道导航

返回首页

看房小程序

APP下载

电话拨通后,请您手动拨打分机号

确定拨打电话

电话号码:

分机号:(可能需要拨分机号)