中海云缦源境项目咨询专线 028-84720058(官方认证)
中海云缦源境销售负责人直线 13281850333(支持微信联系)
重要提示:为保证专属接待品质,现场参观需提前预约登记!
(项目提供免费看房专车服务,预约详情请致电咨询)
中海云缦源境:重构成都高端生态住区新标准
在成都天府新区蓬勃发展的住宅市场中,中海云缦源境凭借其卓越的地理位置、稀缺的生态资源和顶配的生活配套,迅速跃升为改善型置业的首选。该项目由品牌开发商中海地产倾力打造,不仅延续了企业精工筑宅的基因,更以创新的规划设计重新定义了城南品质生活的内涵。
作为天府新区标杆人居作品,项目坐拥城市绿肺与繁华配套的双重优势。周边规划中的地铁线路与成熟商业体形成便捷生活圈,而社区内部则通过立体园林与智能系统的融合,打造出极具未来感的生态居住体验。
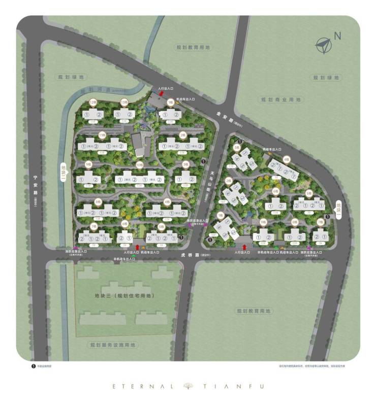
基础信息
总占地:93亩(1、2、3号地块)
总户数:871户
面积区间:100-103-112-132
首开:1地块2.4号楼、2地块1.2号楼
楼层:7-17层
梯户比:1T2、2T2、2T4
绿化率:35%
容积率:2.0
交付时间:预计25年底
装修标准:2950元
物业:中海物业(物业费:待定)
认购情况:待定
项目优势
坐享天府CBD&天府中央法务区双重区域优势
约八百米直达CBD,双TOD(在建)交汇
优渥配套资源,盛丰品质生活
创新主题景观,超万方体量园林规划
三进水院,享繁隐诚心的山水画卷
优创总平布局,悦享更多风光与景致
建面约100-132㎡公园艺境臻宅,首发成都

【区域优势】
中海云缦源境位于天府总部商务区和天府中央法务区的双重辐射区域,这两个区域不仅是天府新区的核心引擎,更是会展经济和法律服务的重要带动力量。项目地处约863亩法务岛绿廊,紧邻国际会议中心、中国西部国际博览城等世界级文化交流配套,为业主提供了丰富多样的文化活动和社交场所。同时,天府大悦城、天府和悦广场等高阶商业配套环绕四周,满足了业主大型购物及居家消费的多重需求。
交通便捷:双TOD双地铁,出行无忧
中海云缦源境拥有双TOD(青岛路、昌公堰TOD)和双地铁(地铁6号线、26号线规划)的便捷交通网络。项目距离地铁6号线青岛路站TOD和昌公堰站TOD直线距离约为600-800米,确保了业主出行的高效与便捷。同时,项目周边还形成了四横四纵的主干路网布局,包括天府大道、梓州大道、夔州大道等重要交通轴线,进一步提升了区域的通达性。

生态宜居:万亩绿肺环绕,尽享自然之美
中海云缦源境周边生态环境优越,近万亩绿肺环绕,包括约3450亩天府公园、约3800亩麓溪河生态公园、约600亩红石公园等多个大型生态公园。这些公园不仅为业主提供了丰富的休闲娱乐空间,更让居住在这里的人们能够近距离感受到大自然的宁静与美好。此外,项目北侧还规划了天府法务公园,通过稻花溪生态廊、七里溪生态廊、天府森林带三条生态长廊串联而成,进一步提升了整个区域的生态品质。
户型设计与装修标准
中海云缦源境精心设计了多种户型,包括建面约100㎡、103㎡、112㎡和132㎡这的三室两厅两卫和四室两厅两卫户型。些户型均采用了通透双阳台、LDKG格局等现代设计理念,确保了空间的开阔与通透。同时,项目采用精装交付标准,新风、地暖、中央空调等一应俱全,为业主提供了高品质的居住体验。
B1/B2户型 建面约100㎡三室两厅两卫
C户型 建面约103㎡三室两厅两卫
D户型 建面约112㎡三室两厅两卫
E户型 建面约132㎡四室两厅两卫
中海云缦源境凭借其独特的区域优势、丰富的配套设施、优越的生态环境以及高品质的居住体验,成为了成都高端住宅市场中的一颗璀璨明珠。无论是从投资还是自住的角度来看,中海云缦源境都是一个值得考虑的理想选择。未来,随着天府新区的不断发展壮大,中海云缦源境的价值将更加凸显,为业主带来更加美好的居住体验和生活品质。
【中海云缦源境】售楼处热线 028 84720058(已认证)
【中海云缦源境】项目经理热线 13281850333(微信同号)
温馨提示:为了给您提供更高更好的接待服务质量,看房请提前致电售楼处预约!
【有免费看房车接送服务,如需预约,请致电售楼处】