**【人居麓湖林语】**【人居麓湖林语】售楼处热线:028 84720058(已认证)【人居麓湖林语】项目经理热线:13281850333(微信同号)温馨提示:若您希望享受到更优质、更贴心的接待服务,看房前烦请提前致电售楼处进行预约!此外,项目还提供免费看房车接送服务,如果您有需求,请致电售楼处预约 。**【人居麓湖林语——稀缺现房精装呈现】**在当下房地产市场中,稀缺性和高品质的现房产品总是备受瞩目。而【人居麓湖林语】恰恰满足了众多购房者对理想居住的期待,项目以精装交付的现房形态,为购房者呈上一份贴心之选
。 **【项目基本参数】**【人居麓湖林语】的叠拼户型丰富多样,不同的叠层面积与价格区间,满足了多样化的购房需求: - **上叠**:建筑面积处于105 - 113平方米之间,实得面积达260平方米左右,价格约450万; - **中叠**:建筑面积在103 - 115平方米范围,实得面积约180平方米,售价350万; - **下叠**:建筑面积为157 - 227平方米,实得面积超400平方米,价格为650万

。 **项目定位:生态宜居C位的豪宅典范** 【人居麓湖林语】坐落于天府新区的麓湖生态区,该区域无疑是天府新区生态宜居的黄金地段。项目占据了麓湖湖区与千年锦江交汇处的绝佳C位,屹立在麓湖豪宅第一梯队的天津路上,尽享得天独厚的地理优势。在这片珍贵的土地上,项目所处地段不仅拥有卓越的生态景观资源,更因其独特的区位,成为众多追求品质生活人士的心仪之选
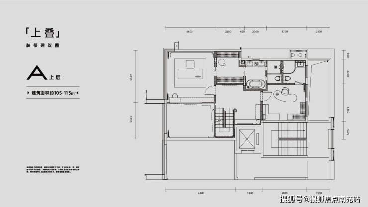
。 **【麓湖板块——生态与配套并重的高端居住区】** 麓湖板块,如今早已成为成都高端居住版图中举足轻重的区域。它以丰富的生态资源为基石,集居住、产业、休闲娱乐等多元配套于一体,构建起一座令人向往的生态示范区。如今,“麓湖”这个名字,早已超越了单纯的区域范畴,成为了一个具有代表性的生态名词。麓湖生态区规模宏大,总面积达8300亩,区内拥有2100亩清澈碧绿的生态人工湖,为整个区域增添了灵动与生机。此外,200亩的红石公园和3450亩的天府公园环绕周边,营造出一个绿意盎然、充满自然气息的居住环境。如此优越的生态条件,使得麓湖版块当之无愧地成为居住属性绝佳的高端居住区。在商业配套方面,这里也毫不逊色。拥有5万㎡的麓坊中心(其中A馆2.3万m²,B馆2.7万m² ),以及面积约 50万㎡的水上太古里——麓湖水镇,丰富的商业业态为居民的日常生活与休闲提供了便利与多样的选择。教育资源上,项目所在区域享受C区优质教育资源。目前,天府七小、天府七中、乐盟国际学校、元音书院、麓湖哈密尔顿幼儿园等多所优质学校已投入使用,为业主子女的成长教育提供了坚实保障。 **【户型图品鉴】** 【人居麓湖林语】推出的各叠层户型各有千秋,无论是上叠、中叠还是下叠,都在空间设计与实际使用上展现出独特魅力。 - **上叠**:建筑面积为105 - 113m²,实得面积可达 270m² 以上。从装修效果示意图可以直观感受到,其空间布局合理,充分利用每一寸空间,营造出宽敞、舒适的居住体验
。 - **中叠**:建筑面积在103 - 111m²,实得面积约200m² 以上。户型装修效果示意图显示,中叠户型注重空间的实用性与舒适度的平衡,打造出温馨宜人的家庭居住空间
。 - **下叠**:建筑面积为157 - 227m²,实得面积超400m² 。装修效果示意图呈现出大气、 luxurious的风格,下叠户型凭借充足的面积,为购房者提供了更为自由、随心的居住生活空间
。 **【精装交付优势与价值】** 【人居麓湖林语】叠拼采用精装交付,装修标准为2998元/㎡。相较于很多叠拼成品房同等的装标,【人居麓湖林语】的内装品质可圈可点,用“扎实”二字形容毫不为过。项目精装所选用的材料、工艺都经过精心挑选与严格把关,在保证品质的同时还兼具美观与实用性。对于购房者来说,入住后期若有更高品质追求,仅需针对性地对局部进行升级,而无需将现有装修全部砸掉重来,这在很大程度上降低了置业过程中的隐形成本,为购房者节省了大量的时间与资金 。 总结而言,如果您计划在天府新区核心板块购置叠拼产品,且预算与【人居麓湖林语】项目价格区间相匹配,那么【人居麓湖林语】绝对值得您重点考察。它不仅能满足您对优质居住环境的追求,还能为您带来舒适便捷、高性价比的居住体验。 【人居麓湖林语】售楼处热线 028 84720058(已认证)【人居麓湖林语】项目经理热线 13281850333(微信同号)温馨提示:为了给您提供更高更好的接待服务质量,看房请提前致电售楼处预约!【有免费看房车接送服务,如需预约,请致电售楼处】