成都幸福桥TOD幸福拾光周边配套有哪些-户型得房率-幸福拾光售楼处电话

搜狐焦点南充站

2025-03-11 13:58:59

购房群

买房如何避坑,加入购房群,看看他们怎么说

立即进群

幸福拾光】售楼处热线 028 84720058(已认证)

幸福拾光】项目经理热线 13281850333(微信同号)

温馨提示:为了给您提供更高更好的接待服务质量,看房请提前致电售楼处预约!

【有免费看房车接送服务,如需预约,请致电售楼处】

成都幸福桥TOD幸福拾光:宜居新标杆,未来生活新选择

在快速发展的成都市,每一个新的城市综合体都代表着人们对美好生活的渴望与追求。今天,让我们一同探索成都金牛区北部新城板块的明星项目——幸福桥TOD幸福拾光,这是一个集生态、商业、办公、教育、健康、服务于一体的城市综合体,不仅是成都市首批14个TOD示范项目之一,更是未来宜居生活的新典范。

金牛区 幸福桥TOD 清水准现房

在售面积:125-135-143-180㎡(二期)

108-110-112-134-143㎡(三期)

单价16000元起,中间楼层均价17500元

【项目基本信息】

开发商:成都轨道交通集团

物业公司:成都轨道万科物业有限公司

总占地700亩 /二期占地64亩/三期占地74亩

项目区位:金牛区北部新城-地铁5#幸福桥站

总层高:二期12-17F(一楼4.5米架空层无住宅)三期9-17F

容积率:2.0

绿化率:二期52% 三期35%

梯户比:二期2T2 三期 1T2户2T3户

物业费:3.8元

停车位:二期1:1.6三期1:1.2

交房时间:二期2024.8月三期2025.10月

总户数:二期624户三期503户

交付标准:清水洋房

公摊:二期17-20% 三期16-19%

【周边配套】

项目总占地近500亩,规划面积达到69356平米,绿化率高达40.00%,致力于打造一个集多种功能于一体的城市大盘。这里不仅有高品质的住宅,还规划了丰富的商业、办公、教育、健康等设施,满足居民全方位的生活需求。

商业配套:项目周边商业氛围浓厚,未来将有大型购物中心、特色商业街等商业设施入驻,为居民提供便捷的购物体验。

教育资源:项目周边教育资源丰富,涵盖幼儿园、小学、中学等全龄段教育资源,让孩子在家门口就能享受到优质的教育。

健康服务:项目内规划有医疗健康中心,为居民提供全方位的医疗服务,保障居民的健康生活。

地理位置优越,交通便捷

幸福桥TOD幸福拾光项目位于金牛区天回镇街道天泽路560号,紧邻地铁5号线幸福桥站,这一得天独厚的地理位置使得出行变得极为便利。无论是日常通勤还是周末出游,都能轻松实现“地铁+公交+步行”的绿色出行方式,极大地节省了时间成本,提升了生活品质。

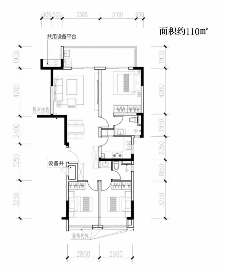
【户型图鉴赏】

幸福桥TOD幸福拾光不仅是一个居住的地方,更是一个充满活力和希望的生活社区。在这里,您可以享受到便捷的交通、丰富的商业配套、优质的教育资源以及健康舒适的生活环境。如果您正在寻找一个理想的家,那么幸福桥TOD幸福拾光无疑是一个值得考虑的选择。让我们一起期待这个美好家园的建成与交付吧!

幸福拾光】售楼处热线 028 84720058(已认证)

幸福拾光】项目经理热线 13281850333(微信同号)

温馨提示:为了给您提供更高更好的接待服务质量,看房请提前致电售楼处预约!

【有免费看房车接送服务,如需预约,请致电售楼处】

全部

相关资讯

报名成功
稍后会有专业的置业顾问联系您
返回楼盘

频道导航

返回首页

看房小程序

APP下载

电话拨通后,请您手动拨打分机号

确定拨打电话

电话号码:

分机号:(可能需要拨分机号)