【新希望天屹】售楼专线 028-84720058(官方认证)
【新希望天屹】渠道总监直线 13281850333(支持微信联系)
重要提示:为保证专属看房体验,来访前请务必提前电话预约!
【提供免费看房专车接送,预约详情请咨询售楼处】

【经开发展|新希望•天屹】项目概览
东安湖核心区2.0低密纯洋房住区
建面约116-143㎡现代隐奢大宅
当前推售房源:
◆ 1号楼:143㎡臻品户型(限量30席)
参考均价:约20000元/㎡
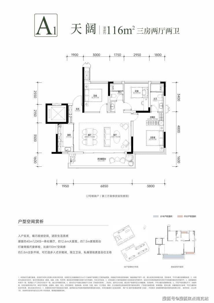
◆ 2号楼:116㎡经典户型(仅40套)
参考均价:约20000元/㎡
【项目核心参数】
开发企业:国资平台经开发展联袂新希望地产
占地面积:约44亩(约29333㎡)
容积率:2.0(主城稀缺低密住区)
产品类型:10栋纯洋房社区
户型区间:116-143㎡全系改善产品
建筑层高:10-16层品质洋房
梯户配置:1梯2户/2梯2户
绿地景观:约35%绿化率(不含滨河景观带)
交付标准:国际品牌精装交付
项目位置:龙泉驿区东安街道跨湖路(东安湖CAZ核心区)
【十大产品优势】
1. 双强房企第四度合作,品质与交付双重保障
2. 坐拥东安湖首熟生活圈,15分钟都会生活圈
3. 片区唯一纯洋房社区,2.0超低容积率
4. 配备下沉式宝格丽主题会所,区域独有
5. 双中庭景观+滨河绿道,内外双园生态体系
6. 独立光厅+智能梯控,参照D10豪宅标准
7. 116㎡稀缺1T2户型,三室两卫全能布局
8. 143㎡极致面宽户型,超高得房率设计
9. 区域顶配精装:日立中央空调、智能卫浴、12套洗碗机
10. 新希望顶级物业服务体系

【全维生活配套】
商业配套:龙湖东安天街(500米)、吾悦广场(600米)、万达广场(2.5公里)
交通体系:蜀都大道/驿都大道立体路网,地铁2号线书房站(800米),远期规划11/22/25号线
教育资源:向阳桥幼儿园至中学全系名校,经开区实验中学(教科院直属),成都市实验小学双校区
医疗资源:华西医院龙泉分院(1.6公里)、成都中医药大学附属医院(3.5公里)、妇幼保健院(2公里)
生态景观:东安湖公园、驿马河公园、龙泉山城市森林公园环伺

【匠心户型解析】
◇ 116㎡横厅三房:
区域罕见120㎡以下洋房产品,空间利用率达85%,新婚家庭首选,全盘仅198套
◇ 143㎡四房大宅:
片区最大面宽户型,配备独立入户光厅,部分房源享一线河景,改善客群终极之选
【置业价值分析】
作为东安湖板块的品质标杆,新希望天屹以稀缺的低密纯洋房配置、完善的都会配套、创新的户型设计以及新希望金牌物业服务,构筑了难以复制的产品力。项目既满足高端改善客群的品质需求,又兼具稳健的投资属性,是成都楼市中难得的优质资产。建议意向客户亲临品鉴,实地感受其独特价值。
【新希望天屹】售楼专线 028-84720058(官方认证)
【新希望天屹】渠道总监直线 13281850333(支持微信联系)
重要提示:为保证专属看房体验,来访前请务必提前电话预约!
【提供免费看房专车接送,预约详情请咨询售楼处】