成都【广都鑫中心】6月购房宝典:实时房价走势、热销户型深度解析、独家优惠速递,含专业测评与置业顾问24小时热线

搜狐焦点南充站

2025-06-06 11:34:00

购房群

买房如何避坑,加入购房群,看看他们怎么说

立即进群

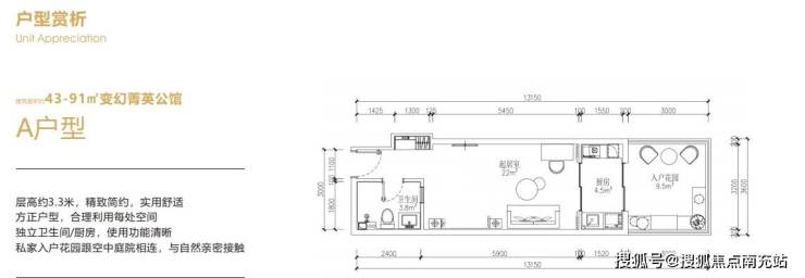
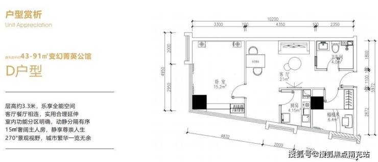
【广都鑫中心】最新动态速递!为您奉上关键联络方式:售楼处专线 028 84720058(官方认证),置业顾问专线 13281850333(支持微信联系)。特别提示:为保障看房体验,建议提前预约以便享受专属接待服务。项目特别配备免费看房专车,如需接送服务,请提前致电预约。【项目详情】这座由成都双发君地置业开发、四川博蕙京通物业管理的综合型物业,占地28.35亩,总建面24.15万方。当前主推双发天禧中心2号楼1、2单元,主打57㎡精致户型,面积区间43-91㎡,主力户型55-60㎡。建筑层高3.25-3.3米,25层高层设计,规划明晰:-1至4层为商业空间,-2至-4层规划停车位,5-25层为精品公寓。首批推出13F、22F房源。项目实现商业性质水电气全通,公摊比例约30%,梯户配置为一单元6梯33户、二单元6梯37户,物业管理费4.9元/㎡。原定2025年底交付,现提前至同年9月,交付标准为毛坯房。当前均价6600-7500元/㎡,总价30-68万,支持全款支付(整层购买可协商分期)。整层约4100㎡报价3000万(15-20F);一单元约1930㎡报价1400万;二单元约2170㎡报价1600万。【区位优势】项目雄踞天府新区核心地段——天府大道1888号,打造集智能生态、高端商务、文化休闲于一体的城市综合体。

【项┃目┃亮┃点】作为天府大道中轴线上稀缺的小户型、低总价、全配套物业,广都鑫中心具备独特竞争优势:1. 黄金区位:坐镇金融城、新川科技园、天府CBD金三角核心区,占据城市发展前沿阵地2. 交通动脉:双地铁覆盖(1号线华阳站300米/18号线海昌路站400米),20余条公交线路环绕3. 投资价值:可委托锦江国际旗下"欧暇地中海"酒店运营,享"6+8"收益模式(8个月装修期+6个月培育期后,即可获得30元/㎡保底收益+50%经营分红)4. 稀缺属性:区域内唯一在售的小面积全配套公寓产品5. 商业氛围:自建3万方星光商业体,周边聚集家乐福、三利广场等大型商业6. 生态配套:每层配备600-700㎡空中花园,部分户型享有7-9㎡专属阳台【价值解析】1. 地段价值:占据天府大道城市中轴门户位置,坐享新区发展红利2. 产品优势:3.3米层高设计,星级物管服务,-1层配套生活超市3. 租赁保障:希尔顿惠顿商旅酒店已签约入驻,周边同类型公寓月租达2500元4. 增值潜力:项目对面地块最新楼面价已达20700元/㎡5. 市政配套:毗邻天府新区政务中心,尽享政策倾斜优势

【立体交通】项目构建五纵四横交通网:五纵:剑南大道/益州大道/天府大道/梓州大道/成自泸高速四横:三环路/绕城高速/华阳大道/麓山大道地铁1号线/18号线双轨交汇,20条公交线路无缝接驳【商业配套】- 自建3万方协星星光商业体- 盒马鲜生入驻-1层- 1661个地下停车位- 周边聚集家乐福/三利广场/金地商业体等- 沃尔玛山姆店/红星美凯龙等商圈环伺【医疗资源】3公里范围内汇集:- 天府新区人民医院- 四川石油总医院- 玛利亚妇产儿童医院- 安琪儿国际妇儿医院- 省中西医结合医院【生态休闲】项目毗邻:- 海昌极地海洋公园- 南湖梦幻岛- 南湖湿地公园【教育资源】周边名校环抱:- 金苹果幼儿园- 天府四小/五小- 天府实验小学- 天府实验中学- 天府实验外国语学校

【户型展示】

温馨提示:【广都鑫中心】售楼专线 028 84720058(官方认证),置业顾问 13281850333(微信同号)。为提供更优质服务,看房请提前预约!项目提供专属看房车接送服务,预约请致电售楼处。

全部

相关资讯

报名成功
稍后会有专业的置业顾问联系您
返回楼盘

频道导航

返回首页

看房小程序

APP下载

电话拨通后,请您手动拨打分机号

确定拨打电话

电话号码:

分机号:(可能需要拨分机号)