成都【复地金融岛商铺】售楼处电话-投资价值-楼盘最新动态-12月价格查询

搜狐焦点南充站

2025-12-20 06:10:00

购房群

买房如何避坑,加入购房群,看看他们怎么说

立即进群

复地金融岛商铺】售楼部电话:028-62444811(已认证)

【复地金融岛商铺】销售经理电话:15388440405(微信同号)

温馨提示:了解更多楼盘信息,请致电售楼部,看房请提前线上预约,可享内部优惠。

滨江商业街 品牌租约现铺限量发售

30-400㎡全业态吸金铺

【金融城唯一滨江在售现铺】

主力面积60-100㎡,带租约、高收益、易转手

360°环江街区旺铺,开放式布局拥有超强昭示性

24h经营,满足全时段消费人群

统一运营管理,避免业态失控

背靠购物中心,自带客流,便于引流

【基础信息】

占地面积:350亩

业态涵盖:高端住宅、酒店、总部办公、大平层公寓、购物中心、滨江商业街

总套数:46间

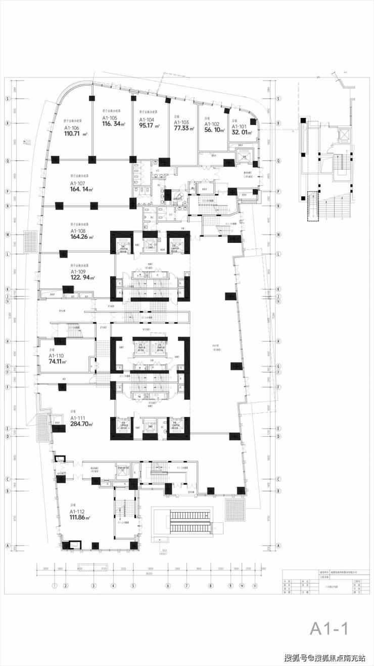
价格:一楼 4-6 万,二楼 2.5 左右

总层数:2层

层高:1F 6米、2F 5.4米

业态:全业态(带外摆)

付款方式:全款/按揭

公摊: 28%

拿地时间:2015 年

交房时间:2017 年

物业费:19 元/m²

交房标准:现状交付(大部分带租约)

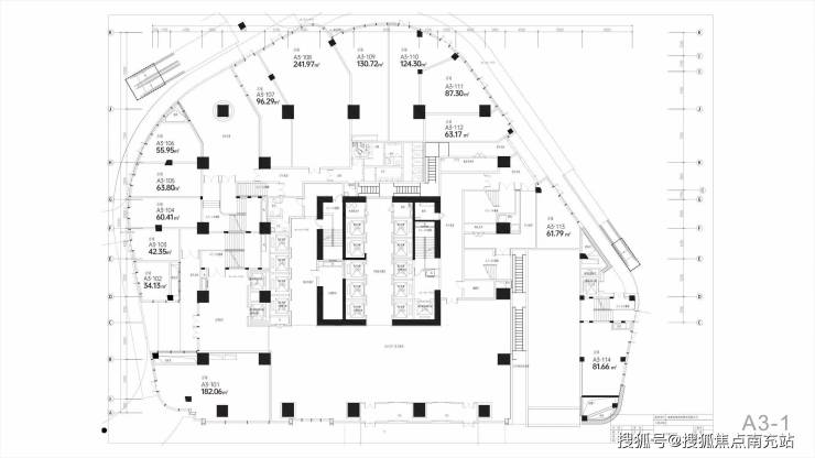
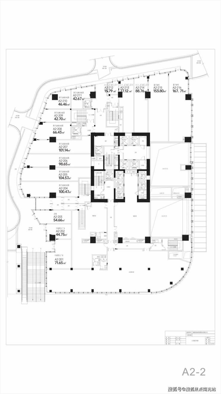
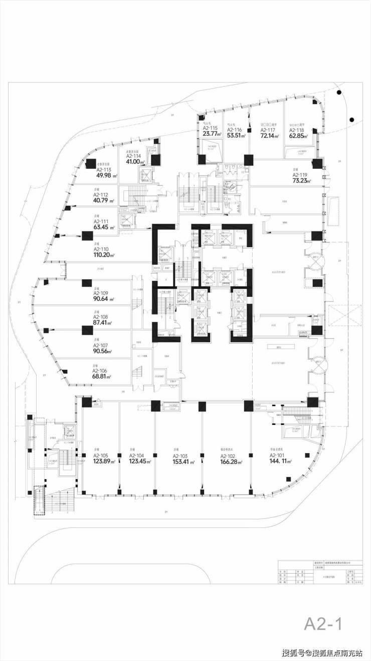
销售面积30-400㎡,主力面积区间60-100㎡

【岛上业态完善】

住宅、酒店、写字楼、公寓、艺术中心、购物中心、商业街

岛上自带高净值人群,具有很强消费力

CBD业态布局,带来百万级别的人口吸附力

【户型鉴赏】

复地金融岛商铺】售楼部电话:028 - 62444811(已认证)

【复地金融岛商铺】销售经理电话:15388440405(微信同号)

温馨提示:了解更多楼盘信息,请致电售楼部,看房请提前线上预约,可享内部优惠。

全部

相关资讯

报名成功
稍后会有专业的置业顾问联系您
返回楼盘

频道导航

返回首页

看房小程序

APP下载

电话拨通后,请您手动拨打分机号

确定拨打电话

电话号码:

分机号:(可能需要拨分机号)