在成都的豪宅版图中,【点将台79号】无疑是一颗璀璨的明星。其售楼处电话为:028 - 84720058(已认证),项目渠道经理电话:13281850333(微信同号)。在此温馨提醒各位购房者,为了能享受到更高品质、更优质的接待服务,若您有看房计划,请至少提前1小时致电售楼处进行预约!同时,项目还贴心地提供免费看房车接送服务,若您有此需求,同样致电售楼处即可预约。

【点将台79号】坐落于成都市区一环内,这一地段可谓得天独厚。它紧邻太古里,直线距离约3公里范围内,兰桂坊、九眼桥等城市地标星罗棋布。值得一提的是,该区域还是第一张纸币“交子”的诞生地,深厚的历史底蕴犹如陈酿的美酒,散发着迷人的气息。纵观世界级顶豪产品,不难发现一个有趣的规律:名字往往与街道紧密相连,这背后彰显的是区位的重要性。像中央公园西大道15号、纽约翠贝卡108 Leonard公寓等皆是如此。而【点将台79号】这一项目,以“点将台79号”为名,仿佛承载着成都迈向世界舞台的壮志雄心。相传此地曾是诸葛亮的御用点将台,故而得名“点将台街”,它将千年前的历史文化沉淀,巧妙地凝聚于这一个名字之中。

【点将台79号】的价值亮点众多,堪称豪宅市场中的稀缺终极产品。项目打造了面积达3700㎡的都市漫游实景示范区,宛如一座生活的艺术殿堂。这里还有酒店式的奢谧超级会馆,为业主提供极致的尊崇体验。超高层塔楼搭配玻璃幕墙立面,不仅展现出时尚现代的建筑风格,更彰显出项目的高端品质。商业合院与天际平层相得益彰,户型产品更是根据景观资源精心定制。此外,“金钥匙中国”服务示范为业主提供全方位、高品质的服务保障。
卓越·点将台79号凭借其稀缺的地标产品属性,精准地击中了成都顶豪客群的需求痛点。顶豪客群向来追求城市核心资源,渴望与众不同的高级感,对稀缺、终极的产品更是情有独钟。而【点将台79号】占据难以取代的城中心位置,全面汇集城市优质资源;汇聚设计大师阵容,精心雕琢出不可复制的地标产品。其产品类型丰富,涵盖商业合院及平层。商业合院建面约235 - 706㎡,平层建面约128 - 1100㎡,满足了不同客户的多样化需求。在成都豪宅市场中,这样的顶豪产品十分稀缺,【点将台79号】的出现,无疑恰到好处地填补了这一市场空白。

在产品打造上,卓越·点将台79项目充分汲取了当地的区位文化底蕴,致力于打造川西与现代风格完美融合的街区式商业、住宅产品。本次首开示范区域景观面积约3700㎡,独特的双层标高体系,为业主带来别具一格的空间体验。
在设计方面,line+全面数字化的Rhino - Revit工作平台发挥了巨大作用。借助这一平台,设计团队能够高效灵活地攻克超高层塔楼玻璃幕墙的墙身节点等复杂难题。在提高设计灵活度的同时,精细化把控方案全阶段的设计表达和颗粒度,确保项目高品质地落地实施。

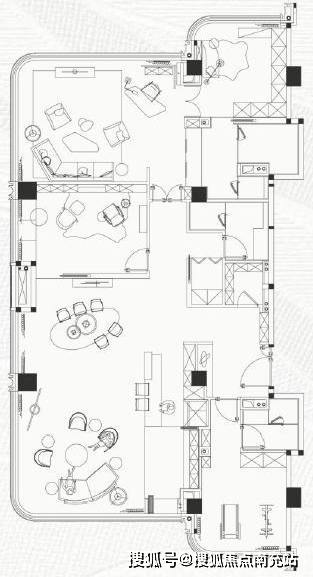
【点将台79号】的产品类型丰富多样,主要包括商业合院和服务式平层。户型建面方面,商业合院约235 - 706㎡,平层约128 - 1100㎡。其塔楼户型设计独具匠心,是根据外向视野和建筑高度来精心设置的。中低区每层分为8户,从16m架空以上开始布局。这部分户型既能近距离欣赏地面景观,又能以相对较低的总价享受到奢级服务配套。中区户型位于16层到22层,面积段提升至234㎡至280㎡。23层及以上为高区户型,面积提升到约540㎡,业主在此可拥有睥睨整个成都市中心的无敌视野。

项目的主力户型也各具特色。云峯户型建面约130㎡,为一房两厅的布局,空间设计紧凑而精致;云筑户型建面约140㎡,两房两厅的设计,更适合追求舒适居住体验的客户。此外,还有升级产品云樾,建面约280㎡,进一步满足了客户对高品质居住空间的需求。

卓越地产还为【点将台79号】配备了卓品商务服务。该服务已成功服务多家世界500强企业,并多次荣获“金钥匙中国”服务示范企业的殊荣。这无疑是【点将台79号】的又一稀缺软实力,为业主提供了更加优质、专业的服务保障。【img9】最后,再次提醒大家,【点将台79号】售楼处电话:028 - 84720058(已认证),项目渠道经理电话:13281850333(微信同号)。若您想亲身体验这一顶级豪宅项目的魅力,记得提前1小时致电售楼处预约看房,同时还可预约免费看房车接送服务哦!