成都幸福桥TOD幸福拾光6月钜惠盛启!限时购房礼遇全曝光,含金牌户型详解、实景样板间测评及专属置业热线

搜狐焦点南充站

2025-06-04 12:52:00

购房群

买房如何避坑,加入购房群,看看他们怎么说

立即进群

在成都这座飞速发展的城市中,每一处崭新的城市综合体,都承载着人们对美好生活的向往与追求。今天,我们将一同走进位于成都金牛区北部新城板块的明星楼盘——幸福桥TOD幸福拾光。它作为成都市首批14个TOD示范项目之一,是一个融合了生态、商业、办公、教育、健康、服务等多元功能的城市综合体,无疑是未来宜居生活的全新典范。【幸福拾光】售楼处热线 028 84720058(已认证)【幸福拾光】项目经理热线 13281850333(微信同号)温馨提示:为确保为您提供更优质、高效的接待服务,若您有看房计划,请提前致电售楼处进行预约!同时,项目还提供免费看房车接送服务,如有需求,欢迎致电售楼处预约 。【项目基本信息】幸福桥TOD幸福拾光的开发商是成都轨道交通集团,由成都轨道万科物业有限公司负责物业服务。项目总占地达700亩,其中二期占地64亩,三期占地74亩。其地理位置优越,位于金牛区北部新城 - 地铁5#幸福桥站附近。从建筑规划来看,二期总层高为12 - 17F(一楼设有4.5米架空层,无住宅),三期为9 - 17F 。整体容积率为2.0 ,绿化率方面,二期高达52%,三期为35%。梯户比设置上,二期是2T2 ,三期为1T2户、2T3户。物业费为3.8元 。停车位配比二期为1:1.6,三期为1:1.2 。交房时间上,二期预计在2024年8月交付,三期则是2025年10月。总户数二期为624户,三期为503户。交付标准为清水洋房,公摊二期在17 - 20% ,三期在16 - 19% 。

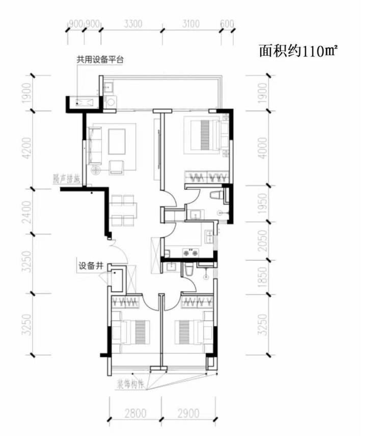
【在售情况】目前,幸福桥TOD幸福拾光项目有丰富的房源可供选择。二期在售面积为125 - 135 - 143 - 180㎡ ,三期在售面积为108 - 110 - 112 - 134 - 143㎡ 。单价16000元起,中间楼层均价17500元。

【周边配套】该项目总占地近500亩,规划面积达69356平米,绿化率高达40.00%,着力打造功能完备的城市大盘。商业配套方面,周边商业氛围浓郁,未来将有大型购物中心、特色商业街等商业设施陆续入驻,能为居民带来便捷的购物体验,满足日常生活所需。教育资源十分丰富,涵盖了幼儿园、小学、中学等全龄段教育资源,让孩子在家门口就能享受到优质教育,为孩子的成长提供有力保障。健康服务设施也规划完善,项目内设有医疗健康中心,能够为居民提供全方位的医疗服务,为居民的健康生活保驾护航。

【交通优势】幸福桥TOD幸福拾光坐落于金牛区天回镇街道天泽路560号,紧邻地铁5号线幸福桥站。如此得天独厚的地理位置,让居民出行极为便捷。不管是日常上班通勤,还是周末外出游玩,都能轻松实现“地铁 + 公交 + 步行”的绿色出行模式,大大节省了时间成本,显著提升了生活品质。

【户型图鉴赏】

幸福桥TOD幸福拾光不仅是一处居住之所,更是一个充满生机与希望的生活社区。在这里,您能够享受到便捷的交通、完善的商业配套、优质的教育资源以及健康舒适的生活环境。倘若您正在寻觅理想家园,幸福桥TOD幸福拾光绝对是值得考虑的优质之选。让我们共同期待这个美好家园的圆满建成与交付! 【幸福拾光】售楼处热线 028 84720058(已认证)【幸福拾光】项目经理热线 13281850333(微信同号)温馨提示:为了给您提供更高更好的接待服务质量,看房请提前致电售楼处预约!【有免费看房车接送服务,如需预约,请致电售楼处】

全部

相关资讯

报名成功
稍后会有专业的置业顾问联系您
返回楼盘

频道导航

返回首页

看房小程序

APP下载

电话拨通后,请您手动拨打分机号

确定拨打电话

电话号码:

分机号:(可能需要拨分机号)