成都【广都鑫中心】6月置业指南:揭秘热销户型空间布局玄机,品鉴双地铁TOD奢宅的匠心工艺与投资价值,尊享VIP看房专线

搜狐焦点南充站

2025-07-02 09:03:00

购房群

买房如何避坑,加入购房群,看看他们怎么说

立即进群

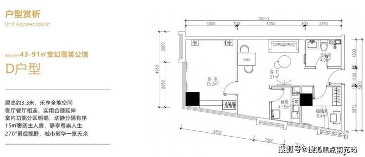
【广都鑫中心】项目咨询专线:028-84720058(官方认证)【广都鑫中心】专属顾问热线:13281850333(支持微信联系)重要提示:为提供更专业、舒适的看房体验,建议您提前通过电话预约参观时间。项目特别配备专属看房班车,如需接送服务请提前与售楼处联系预约。【项目详情】广都鑫中心总占地28.35亩,总建筑面积达241470.5平方米。当前主力销售房源为双发天禧中心2号楼的1、2单元。项目提供多样化户型选择,主力户型57㎡,整体面积区间43-91㎡,其中55-60㎡户型占比最高。建筑层高3.25-3.3米,共25层,规划布局如下:- 地下1层至4层:商业配套- 地下2-4层:停车场- 5-25层:精品公寓首批推出13层和22层房源。项目配套完善,实现商业用水电气全通,公摊比例约30%。电梯配置方面,一单元为6梯33户,二单元为6梯37户,物业管理费4.9元/㎡。原定2025年底的交房时间现已提前至同年9月,交付标准为毛坯房。【价格信息】均价区间6600-7500元/㎡,总价30-68万元。支持全款支付(整层购买可协商分期方案)。具体报价:- 整层(15-20层)约4100㎡:3000万元- 一单元约1930㎡:1400万元- 二单元约2170㎡:1600万元【项目资质】开发单位:成都双发君地置业有限公司物业服务:四川博蕙京通物业管理有限公司【区位优势】项目位于成都市天府新区核心地段天府大道1888号,打造智能化生态商务空间,汇聚高端酒店、文化会所及品质商业配套,形成多功能城市综合体。

?【核┃心┃卖┃点】广都鑫中心占据天府大道中轴线上的重要位置,是该区域唯一在售的总价低、小面积且水电气三通的产品,周边楼盘与之相比并无竞品。项目周边拥有双地铁(1号线/18号线),为业主出行提供了极大的便捷。不仅如此,该项目还可交由锦江国际(世界第二,亚洲第一酒店集团)旗下“欧暇地中海”酒店运营。清水交房后有8个月的装修期(此期间无收益),装修完成后的6个月作为酒店培育期,无保底收益,不过可享受酒店运营分红收益(收益五五分成)。从第7个月开始,业主正式享受保底收益(保底30元/平)加酒店运营五五分红,平均每月收益可达3800 - 4000元。项目地处金融城、新川科技园、天府新区中央商务区三大板块交汇的黄金金三角区域,作为桥头堡位置,形成价值洼地,能够大量吸附周边区域的人流。每层自带600 - 700㎡高线公园,且每层仅有十户可额外享受7 - 9㎡阳台空间。‼‼核心价值:1. **地段优势**:项目位于城市中轴天府大道高新区与天府新区交界处,处于天府新区门户位置,地段价值不可复制。2. **稀缺特性**:在天府大道中轴线上,小面积、低总价且水电气三通的物业十分稀缺,投资门槛低、风险小、回报高。 3. **交通便捷**:属于双地铁物业(地铁1号线、18号线)。 4. **市政配套完善**:紧邻天府新区政务中心,可享受政策红利,周边还有极地海洋世界这一热门旅游打卡点。 5. **建筑风格独特**:新现代建筑风格进一步凸显了项目在天府大道上的标志性地位。 6. **人流保障充分**:位于金融城、新川科技园、天府新区中央商务区金三角区域,强大的吸附能力为房屋出租提供了有力保障。 7. **居住体验佳**:超2万平米绿化、水景观、城市广场,商业产权住宅配套,星级物业服务提升居住舒适度,负1层还设有生活超市。 8. **入驻商家高端**:高端酒店希尔顿惠顿商旅酒店已正式签约入驻。 9. **租金高需求大**:项目周边同户型公寓租金可达2500元,写字楼租金70 - 120元/平米。10. **投资潜力大**:项目斜对面最新土拍价格高达20700元/平米,入手即赚。

【交通配套】广都鑫中心堪称双地铁上盖物业,距离1号线华阳站仅300米,距18号线海昌路站400米。周边还有503、504、T205等二十条公交线路穿梭。区域内形成了五纵四横的立体交通网络。其中,五纵分别为剑南大道、益州大道、天府大道、梓州大道(科华路南延线)、成自泸高速;四横则是三环路、绕城高速、华阳大道、麓山大道。【商业配套】项目1 - 4楼自带30000方的上海协星星光商业体, - 1楼设有大型超市盒马生鲜, - 2至 - 4楼配备1661个停车位。项目斜对面就是家乐福购物中心,南面300米处正在修建的三利广场,是一个集商务办公、综合购物、高端酒店、商业体验等多种功能于一体的综合性购物广场。项目对面还有金地三期约70万方的大型商业综合体,周边还有沃尔玛山姆会员店、红星美凯龙、富森美等综合性商业设施。随着发展,项目在实现优质人居蓝本的同时,后期配套还将迎来进一步升级。【医疗配套】周边医疗资源丰富,拥有天府新区人民医院、四川石油总医院、玛利亚天府妇产儿童医院、天府新区安琪儿国际妇女儿童医院、四川省中西医结合医院、四川宝石花医院等众多医疗机构。【生态娱乐】项目周边生态娱乐资源众多,紧挨着海昌极地海洋公园、南湖梦幻岛以及南湖湿地公园等。【优质教育】周边分布着金苹果幼儿园、天府四小、天府五小、天府实验小学、天府实验中学、天府实验外国语学校等优质教育资源。✅【多变户型】

✅【装修风格】

【广都鑫中心】售楼部热线 028 84720058(已认证)【广都鑫中心】客户经理热线 13281850333(微信同号)温馨提示:为了给您提供更高更好的接待服务质量,看房请提前致电售楼部预约!【有看房车接送服务,如需预约,请致电售楼部】

全部

相关资讯

报名成功
稍后会有专业的置业顾问联系您
返回楼盘

频道导航

返回首页

看房小程序

APP下载

电话拨通后,请您手动拨打分机号

确定拨打电话

电话号码:

分机号:(可能需要拨分机号)