在活力四射的成都市,天府新区宛如一颗璀璨耀眼的明星,散发着独特魅力,呈现出锐不可当的发展态势,吸引着无数人的目光。而川发天府上城凭借卓越品质与优越地理位置,成功塑造了品质生活的全新范本。【川发天府上城】售楼处热线 028 - 84720058(已认证)【川发天府上城】项目渠道经理热线 13281850333(微信同号)温馨提示:为确保能为您提供更周到、高效的接待服务,前往看房前,请提前致电售楼处预约!【提供免费看房车接送服务,如有需求,请致电售楼处预约】川发天府上城坐落于天府新区,是一座占地约 350 亩的人文大城。这座巨擘之城将独特的城市风貌展现得淋漓尽致。项目推出的精装实景现房,以最真实的姿态呈现在购房者眼前,真正实现了购买即可交付的便捷模式。如此一来,您无需漫长等待,马上就能开启朝思暮想的理想生活。
### 项目基本情况目前该项目的销售范围具体如下:A 区与 C 区均已完成交付,当下正在售卖的是 B 区。B 区内不同楼栋的户型面积各有不同。其中,9 栋、11 栋、13 栋提供的户型面积为 136㎡与 159㎡;14 栋、15 栋的户型面积则是 141㎡和 142㎡。整体来看,该项目的户型面积涵盖了 136㎡、141㎡、142㎡以及 159㎡这几种。价格方面,预计每平方米售价在 2.2 万至 2.4 万元之间。在小区规划指标上,其容积率为 3.9,这意味着小区居住密度处于一定水平;绿化率达到 35%,能够为业主营造相对舒适的绿化环境。梯户比设计为 2 梯 3 户,总层高为 18 层,这样的配置能够较好地满足居民日常出行需求。公摊面积占比在 16%至 19%之间,物业费收取标准为每平方米 3.5 元。交付标准为精装修,且精装配备“三大件”,装修标准每平方米为 2998 元。而交付时间更为优越,项目为现房,购房者无需漫长等待即可入住。

**|区位价值| 成都向南·豪门新贵之地**川发天府上城位于成都天府新区牧华路三段与瑞祥路交汇处,此地作为天府新区的“首熟区”,占据着锦江生态带的核心位置,战略意义重大。从交通方面来看,项目周边构建起了四纵三横双地铁的交通网络,极大地提升了出行的便捷性。其中,地铁5号线南湖立交站距离项目仅772米,步行即可轻松抵达;正在建设中的地铁19号线牧华路站也近在眼前。如此优越的交通条件,无论是满足人们日常的工作通勤需求,还是方便周末外出游玩,都能够应对自如,为居民的生活提供了坚实的交通保障 。

|地段价值|天府新区“首熟区”,汇聚众多品牌房企
川发·天府上城坐落于天府新区的“首熟区”,占据着锦江生态带的核心地段。在天府新区蓬勃发展的进程中,锦江生态带实现了显著“蜕变”,已然发展成为天府新区极为稀缺的成熟纯粹居住区域。这里承接了主城外溢的高知高智产业人才以及追求居住品质改善的人群。目前,众多品牌房企纷纷在此布局。绿城、华润置地、中国铁建、建发、中海、万科、德商等知名企业均已入驻该区域。它们打造了多个高品质的改善型项目,这些项目不仅提升了区域的居住品质,更成为推动区域发展成熟、优化区域城市形象的关键力量 。

|现房|
川发·天府上城呈现实景现房。早在2023年8月,项目就已完成交付。这里的精工品质并非空谈,而是实实在在看得见、摸得着。实景现房意味着无需漫长等待,业主能即刻开启美好的生活篇章。(交付组团实景拍摄)

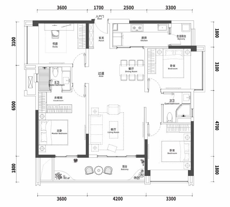
**「户型鉴赏」(户型装修示意图,实际情况以实际交付为准)** K1户型,建筑面积约136㎡,为四室两厅两卫的布局 。
建面约 141㎡的 H2户型,为四室两厅两卫格局
建面约142㎡户型:四室两厅两卫
K2项目推出建面约159㎡的户型,为四室两厅两卫的设计格局
在众多楼盘中,成都川发天府上城凭借一系列突出优势,荣升为品质生活的全新标杆。其地理位置得天独厚,周边生态环境宜人,教育资源丰富多样,医疗配套完善齐全,住宅品质卓越,生活商圈便利。如此全方位的优势,使得川发天府上城无论是对于渴望自住的购房者,还是着眼于投资的人士而言,均是难得一遇的理想之选。倘若你正寻觅一处堪称完美的居住之所,那么川发天府上城绝对是你的不二之选。【
川发天府上城
】售楼处热线 028 - 84720058(已认证)【
川发天府上城
】项目渠道经理热线 13281850333(微信同号)在此温馨提醒各位:为确保能为您提供更为优质、贴心的接待服务,若您计划前往看房,请提前致电售楼处进行预约!此外,项目还提供免费看房车接送服务。若您有此需求,请致电售楼处进行预约 。