成都「复地金融岛商铺」售楼中心电话丨项目资料详情丨最新户型解析丨十一月实时报价丨楼盘动态信息

搜狐焦点南充站

2025-11-12 06:06:00

购房群

买房如何避坑,加入购房群,看看他们怎么说

立即进群

复地金融岛商铺】售楼部电话:028-62444811(已认证)

【复地金融岛商铺】销售经理电话:15388440405(微信同号)

温馨提示:为了提供更高更好的接待服务质量,看房请提前1小时致电预约!

滨江商业街 品牌租约现铺限量发售

30-400㎡全业态吸金铺

【金融城唯一滨江在售现铺】

主力面积60-100㎡,带租约、高收益、易转手

360°环江街区旺铺,开放式布局拥有超强昭示性

24h经营,满足全时段消费人群

统一运营管理,避免业态失控

背靠购物中心,自带客流,便于引流

【基础信息】

占地面积:350亩

业态涵盖:高端住宅、酒店、总部办公、大平层公寓、购物中心、滨江商业街

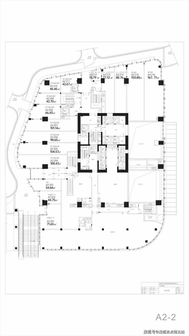
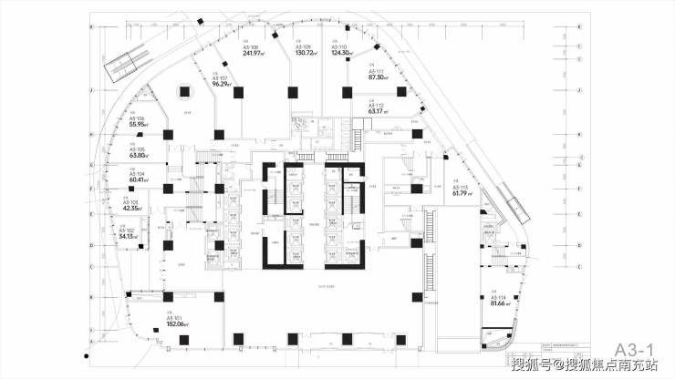
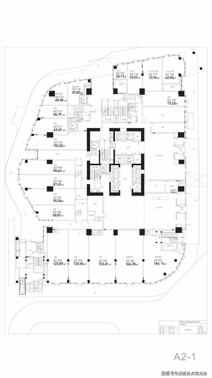
总套数:46间

价格:一楼 4-6 万,二楼 2.5 左右

总层数:2层

层高:1F 6米、2F 5.4米

业态:全业态(带外摆)

付款方式:全款/按揭

公摊: 28%

拿地时间:2015 年

交房时间:2017 年

物业费:19 元/m²

交房标准:现状交付(大部分带租约)

销售面积30-400㎡,主力面积区间60-100㎡

【岛上业态完善】

住宅、酒店、写字楼、公寓、艺术中心、购物中心、商业街

岛上自带高净值人群,具有很强消费力

CBD业态布局,带来百万级别的人口吸附力

【户型鉴赏】

复地金融岛商铺】售楼部电话:028 - 62444811(已认证)

【复地金融岛商铺】销售经理电话:15388440405(微信同号)

温馨提示:为了提供更高更好的接待服务质量,看房请提前1小时致电预约!

全部

相关资讯

报名成功
稍后会有专业的置业顾问联系您
返回楼盘

频道导航

返回首页

看房小程序

APP下载

电话拨通后,请您手动拨打分机号

确定拨打电话

电话号码:

分机号:(可能需要拨分机号)