成都「空港云璟林著」置业专线:全景解析楼盘优势|深度解读臻选户型设计|6月限时钜惠政策及独家购房折扣详询

搜狐焦点南充站

2025-06-15 13:16:00

购房群

买房如何避坑,加入购房群,看看他们怎么说

立即进群

【空港云璟林著】售楼部热线 028 84720058(已认证)【空港云璟林著】项目经理热线 13281850333(微信同号)温馨提示:为确保能享受到优质的接待服务,强烈建议您提前致电预约看房!此外,项目还提供免费看房车接送服务,若您有需求,预约请致电售楼处。# 空港云璟林著:四大核心竞争力深度剖析在房地产行业的发展进程步入从规模竞争迈向产品力比拼的崭新时代,唯有深度回归产品的本质特性,才能够在激烈的市场角逐中斩获胜利。而空港云璟林著,作为空港发展于怡心湖板块精心打造的标杆项目,凭借四大核心竞争优势,成功吸引了众多目光,成为区域瞩目的焦点。## 创新园林式建筑规划:低密宜居的理想之选在当前土地资源日益紧张,特别是 A 区多以 50 亩左右地块供应的大环境下,云璟林著的规模与容积率优势愈发凸显。该项目占地约 83 亩,容积率仅 2.0。在此基础上,项目仅规划 21 栋 11 - 17 层的纯板式花园洋房,将超过 60%的土地慷慨地用于园林景观的雕琢。

在建筑布局上,云璟林著大胆突破传统模式,采用“点式围合 + 公园化”的创新设计理念。167 米的超大楼间距,不仅为每一户提供了充足的采光与良好的通风条件,更巧妙地营造出多个景观中庭,真正达成了户户皆可观景的美好居住愿景。

## 双公园环绕的度假式生活:诗意栖居的典范云璟林著地理位置得天独厚,距离怡心湖公园仅 900 米。同时,项目自身定位为“城市公园微度假社区”,这两大因素叠加,为业主打造出别具一格的居住体验。

项目西侧规划有 190 亩的云熙公园(规划中),该公园精心规划了四大主题花园,将为居民带来丰富多彩的视觉享受与休闲体验。东侧则是 452 亩的 26°活力绿心公园(规划中),其巧妙保留原始地貌,并打造了树阵广场、运动场地等多元场景,满足不同年龄段业主的休闲运动需求。此外,社区内部构建了“一环三轴多园”的景观体系,与外部公园相互呼应,形成内外联动的公园生活圈。业主在享受社区内部精致景观的同时,还能便捷地融入周边自然生态环境,仿佛置身于度假胜地。

## 彰显品质的建筑美学:现代简约的优雅之姿云璟林著在建筑设计上独具匠心,采用公建化立面设计,大面积运用 LOW - E 玻璃搭配米白色真石漆,线条简洁明快,尽显现代简约风格。酒店式入户大堂更是一大亮点,配以奢石照壁,为业主营造出尊崇的归家仪式感,每一次回家都成为一场温馨而庄重的旅程。

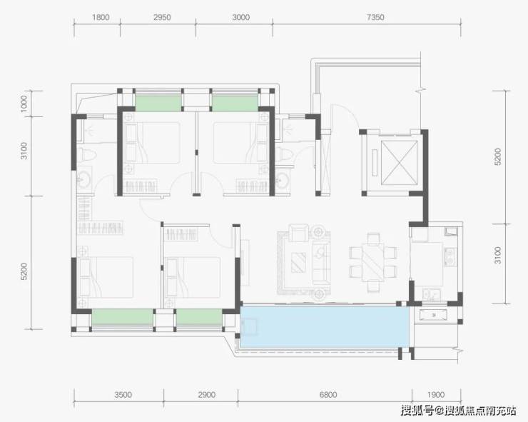
## 超越同级的改善户型:空间与品质的完美融合项目推出建面约 113 - 182㎡全系 T2 板式结构户型,户型设计亮点频现。其中 143㎡户型创新性地采用 270°环幕端厅设计,7 米转角阳台搭配 4.2 米进深,形成约 13 米采光面,让阳光尽情洒满室内空间。U 型厨房与 50㎡端厅完美结合,空间布局合理,宽敞舒适,其空间感足以媲美 200㎡以上的高端产品。

134㎡户型同样表现出色,拥有 15.1 米超大面宽,6.8 米横厅搭配景观阳台,LDK 厅面积近 40㎡,开阔的空间格局为家庭活动提供了充足的场地。主卧套房设计并配备步入式衣帽间,充分彰显改善型住宅的品质与格调。

目前,云璟林著项目已取得预售许可证,首批推出 100 套 125.68 - 142.67㎡四房产品,清水单价 18796 元/㎡起,总价 240 万起,即可让您入驻怡心湖核心区域,享受高品质的居住生活。

【空港云璟林著】售楼部热线 028 84720058(已认证)【空港云璟林著】项目经理热线 13281850333(微信同号)温馨提示:为保障接待品质,敬请提前致电预约看房!【免费看房车接送服务,预约请致电售楼处】

全部

相关资讯

报名成功
稍后会有专业的置业顾问联系您
返回楼盘

频道导航

返回首页

看房小程序

APP下载

电话拨通后,请您手动拨打分机号

确定拨打电话

电话号码:

分机号:(可能需要拨分机号)