成都「天府半岛」购房热线:6月限时特惠政策解析及交通路网/商业配套/优质教育资源全维度评测

搜狐焦点南充站

2025-06-15 07:39:00

购房群

买房如何避坑,加入购房群,看看他们怎么说

立即进群

【天府半岛】项目咨询热线:028 - 84720058(官方认证)【天府半岛】销售负责人专线:13281850333(支持微信联系)在此温馨提醒大家:若想拥有优质的看房体验,务必至少提前一小时致电售楼中心,预约看房时间。备受关注的天府半岛项目,在历经一年的沉寂后,终于有新动作——高层住宅新品即将入市!据最新消息,天府半岛七期77号楼已正式拿到预售许可。此次推出的是精装修房源,共计124套,户型面积处于120 - 140平方米之间,单价区间为1.3万 - 1.5万元/平方米。

回顾去年3月那次盛大的开盘场景,当时180套准现房以1.24万元/平方米起的精装价格面向市场,这一消息瞬间吸引了超过5.2万组购房者参与摇号,其激烈程度,中签难度简直如同考取顶尖高校一般。在那之后,该项目连续三次加推。不过,加推的产品均是235平方米以上的大平层以及联排别墅,这使得总价门槛一下子攀升到330万元,如此高的价格,让众多刚需以及改善型购房者只能望而却步。此次推出的房源,与前期产品定位相近。不过在交付方式上有所改变,由以往的现房或准现房改为期房销售,预计会在2026年下半年完成交付(具体交付时间以售楼部公示为准)。

针对购房者普遍关心的核心问题,我们展开了深入剖析。项目周边配套情况,大家可以参考往期报道:恒大天府半岛新批次取证!总价114万起,1124套房源供应!下面来看看此次产品的升级之处:此次是32层住宅,采用3梯4户配置。熟悉该项目的购房者都清楚,七期此前大多是48层的超高层建筑,在电梯配置上,采用的是2梯5户或3梯6户设计,面积段在90 - 120平方米,主要面向刚需购房者。而此次推出的77 - 80号楼作为七期的收官之作,在产品力方面有了显著提升。

根据天府新区官网公示的规划调整方案,这四栋楼统一降低至32层,建筑高度控制在99.6米,电梯配置升级为3梯4户。如此一来,居住的舒适度大幅提升。同时,底层商业规划被取消,首层架空层的公共活动空间扩展至993平方米,相较于原方案,扩容明显。

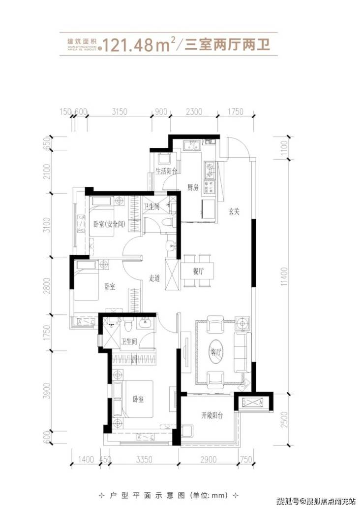
在户型方面,此次仅推出121平方米三房两卫和142平方米四房两卫这两种选择,如此精准的客群定位,让社区的纯粹性更高。尤其值得一提的是,所有户型的主要采光面均朝向西南方向,处于中高楼层的住户可以将府河景观尽收眼底,视野条件十分优越。下面来看实景视角展示:不过天气因素可能会对拍摄效果产生影响。

户型设计延续了项目一贯的风格。就以121平方米户型为例,它采用的是传统竖厅布局,进深超过10米,然而开间仅有6米多一点,阳台长度约2.9米;两间次卧面积都不足10平方米,虽然空间利用率较高,但舒适度只能说是中规中矩。

价格方面,与去年6期1.24万元/平方米起的精装价格相比,本批次1.3万 - 1.5万元/平方米的定价保持平稳。

参考周边二手房市场情况,相邻的三期项目今年的成交价在1.4万 - 1.8万元/平方米这个区间,四期价格稍高一些,达到1.6万 - 1.8万元/平方米。【天府半岛】项目咨询热线:028 - 84720058(官方认证)【天府半岛】销售负责人专线:13281850333(支持微信联系)重要提示:为确保您获得优质的看房体验,请至少提前一小时致电售楼中心预约看房时间!

全部

相关资讯

报名成功
稍后会有专业的置业顾问联系您
返回楼盘

频道导航

返回首页

看房小程序

APP下载

电话拨通后,请您手动拨打分机号

确定拨打电话

电话号码:

分机号:(可能需要拨分机号)