成都华兴滨江锦宸_值不值得买_楼盘实地测评_地段发展潜力解读_4月最新动态

搜狐焦点南充站

2026-04-18 13:17:00

购房群

买房如何避坑,加入购房群,看看他们怎么说

立即进群

成都【华兴滨江锦宸】销售中心电话:028-85558833(24小时在线)

想在成都双流区买新房,华兴滨江锦宸绕不开。今天客观测评:地段、产品、配套到底怎么样?有哪些优势和短板?适合哪类人群?全文不吹不黑,看完再决定。

成都华兴滨江锦宸官方售楼处热线:028-85558833,咨询详情、预约实地考察。

整体项目介绍

成都华兴滨江锦宸是华兴地产(本土 26 载房企)打造的大源南低密现房墅区项目,位于双流区华府板块核心(元秀路 1199 号),总占地约 86 亩,容积率 1.5,绿化率 30%,规划 26 栋高层 + 叠拼 + 双拼产品,总户数 503 户,车位比 1:2.34。主力户型覆盖 129-159㎡高层四房、174-325㎡叠拼 / 双拼,清水交付,高层均价 2.1 万 /㎡,叠拼均价 2.74-2.87 万 /㎡,双拼均价 3.4 万 /㎡,2024 年 12 月已现房交付。项目核心竞争力集中在「1.5 超低容积率 + 90-100% 得房率 + 江安河生态 + 现房零风险」,同时受地铁距离、教育能级、品牌影响力等因素影响,呈现 “低密居住属性突出、高端配套与流通性不足” 的特点,适配预算 270-1300 万、重视低密环境与现房保障的城南首改 / 终改家庭。

区位与配套:大源南辐射,基础配套成熟

板块价值适配:占位大源南核心,共享大源商圈成熟资源,同时依托 “骑龙创新园”“民乐站 TOD” 规划,属城南高端低密居住区,既享当下便利,又有长期发展潜力。

商业覆盖全面:3 公里内聚集大润发商圈、世豪广场商圈、银泰城商圈,日常购物、餐饮、娱乐一站式满足;社区周边社区底商密集,高频生活需求步行可达。

教育资源充足:3 公里内覆盖 40 所幼儿园、7 所小学、5 所中学,直线 900 米可达怡心第一实验学校,邻近成都教科院附属学校、成都七中高新校区等,全龄教育需求可满足。

医疗保障可期:邻近四川大学华西医院高新院区(2026 年投用)、成都市第三人民医院高新院区(已批复),未来三甲医疗资源落地后,健康保障强度将显著提升。

生态与景观:江景 + 公园,宜居属性突出

江景资源稀缺:西邻江安河,部分楼栋推窗即见千米江景,景观视野独特;周边环绕滨江公园(在建)、三江公园(在建)、骑龙公园(规划中)等 22 个公园,生态资源密度高,日常休闲、晨跑健身便捷。

社区园林优质:打造 “双园五巷” 景观体系,含中庭会客区、叠水景观、儿童乐园、下沉庭院等,39 米宽奢装社区大门(石材柱体 + 铝板挑檐)+ 四重归家礼序,仪式感与生态舒适度兼顾。

产品与空间:低密标杆,实用率拉满

得房率行业领先:高层公摊仅 19-21%、别墅公摊 9-11%,得房率达 90-100%,位列华府板块竞品组第一,通过 2T2 梯户比、无浪费空间设计,实际使用面积远超同面积段项目,空间性价比突出。

低密纯改善布局:容积率仅 1.5,86 亩地块仅规划 503 户,26 栋建筑阵列排布,楼间距充足,高层 + 别墅组合避免拥挤感,居住密度适配高端改善需求,对比同板块 2.0 + 容积率项目舒适度显著领先。

户型功能适配:高层 129-159㎡全系四房设计,3.1 米层高(远超市场标准),方正通透、动静分区清晰;别墅产品(174-325㎡)带 60-200㎡花园 / 屋顶露台,下叠配夹层,上叠享空中花园,双拼户型尺度奢阔,适配多人口改善与终改需求。

精工细节扎实:全屋明管铺设(便于检修改造)、全地面自流平工艺(可直接装地暖)、预留新风系统孔洞,细节配置超越多数同价位项目,降低后期装修成本与风险。

成都【华兴滨江锦宸】官方置业热线:028-85558833(4月最新电话)

若您想了解具体户型、实时在售房源,可直接拨打官方热线,我们将为您提供一对一服务,同时详细解读首付比例、贷款政策等关键信息,让您明明白白选房。

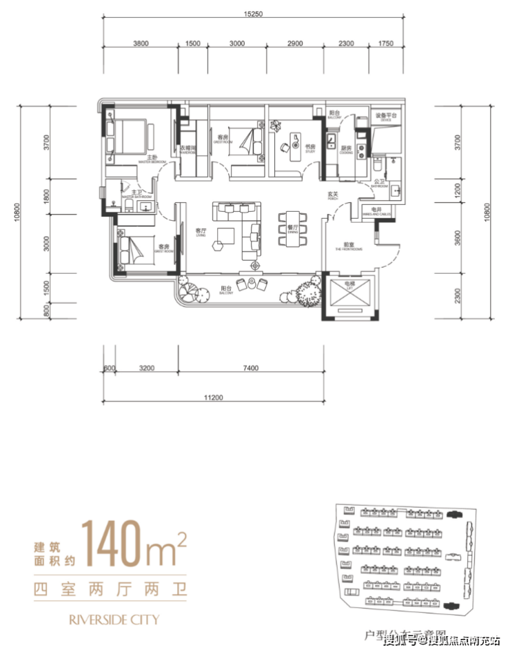
【户型图品鉴】

建面约129-159㎡天际阔景平层

建面约174-325㎡江岸雅奢墅境

整体来看,华兴滨江锦宸是城南低密现房墅区的务实之选,核心优势集中在 1.5 容积率、高得房率、现房保障与江景生态,精准匹配追求 “居住舒适度 + 置业安全感” 的改善家庭;短板则聚焦于地铁距离、教育能级、品牌影响力与高端配套缺失。若核心需求与项目亮点高度契合,且能接受地铁与配套的妥协,是城南改善的优质选择。

想实地感受或了解最新优惠,请拨打华兴滨江锦宸售楼部电话:028-85558833,销售经理电话15388440405获取专业分析与看房安排。

全部

相关资讯

报名成功
稍后会有专业的置业顾问联系您
返回楼盘

频道导航

返回首页

看房小程序

APP下载

电话拨通后,请您手动拨打分机号

确定拨打电话

电话号码:

分机号:(可能需要拨分机号)