成都「兴唐新川雅境」贵宾专线:匠造精工品质华宅,都市繁华与自然谧境和谐共生,臻稀席位恭迎品鉴

搜狐焦点南充站

2025-07-26 10:08:00

购房群

买房如何避坑,加入购房群,看看他们怎么说

立即进群

新川雅境】售楼处热线 028 84720058(已认证)

新川雅境】项目经理热线 13281850333(微信同号)

温馨提示:为提升服务品质,请提前预约看房!

【提供免费看房专车接送服务,预约请致电售楼处】

当前房地产市场已进入全面竞争时代,各大楼盘在户型设计、园林景观、建筑外立面和精装标准等方面展开全方位比拼。作为高新南区的品质标杆,新川雅境深谙改善型客户的核心需求,坚持以产品力制胜,拒绝陷入价格战的恶性循环。

开发商兴唐地产独具匠心,自今年5月起启动为期三个月的品质升级计划。通过对业主建议的充分吸纳,项目对大区景观、公共区域、地下空间及户型布局等进行全方位优化,致力于打造区域品质新标杆。

醇熟配套 悦享生活

项目坐拥3号邻里中心、时光里美食街及新川中心等成熟商业配套;周边汇聚蒙彼利埃小学、教科院附属学校、金苹果锦城一中等优质教育资源;地铁6号线新通大道站近在咫尺;更享双滨河湿地与新川之心公园双重生态景观。

准现房优势显著

作为准现房项目,新川雅境具有三大核心优势:一是交房周期短,可快速入住;二是实景呈现,购房者可直观考察社区环境、楼间距及户型细节;三是规避期房交付风险,真正做到所见即所得。

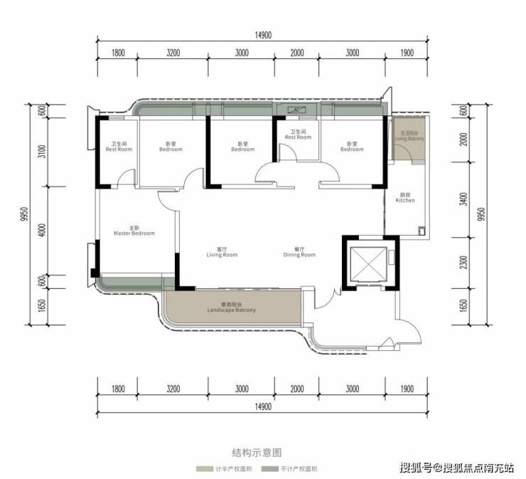
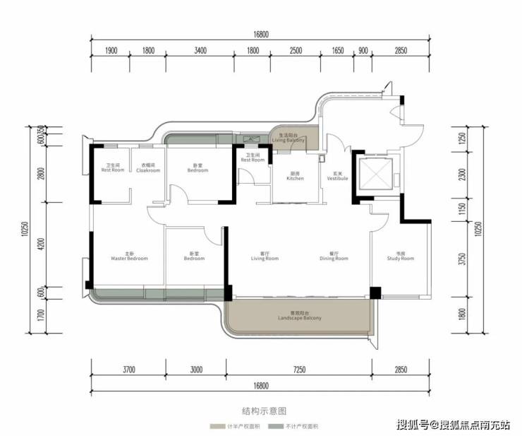
匠心户型 舒居典范

132㎡四房双卫:科学布局,功能完备;143㎡四房双卫:视野开阔,空间通透。

项目携手龙湖智创生活提供高品质物业服务。开发商创新采用"实景开放+品质升级"的营销策略,通过延长开盘周期确保产品兑现力,为购房者提供更安心的置业选择。

新川雅境】售楼处热线 028 84720058(已认证)

新川雅境】项目经理热线 13281850333(微信同号)

温馨提示:为保障服务质量,看房请提前预约!

【免费看房专车接送服务,预约请致电售楼处】

全部

相关资讯

报名成功
稍后会有专业的置业顾问联系您
返回楼盘

频道导航

返回首页

看房小程序

APP下载

电话拨通后,请您手动拨打分机号

确定拨打电话

电话号码:

分机号:(可能需要拨分机号)