蔚蓝卡地亚花园城6月置业指南:板块行情动态研判,核心商圈/名校资源/医疗配套全景透析,新政利好与限时钜惠权威解读(尊享VIP专线)

搜狐焦点南充站

2025-07-07 07:34:00

购房群

买房如何避坑,加入购房群,看看他们怎么说

立即进群

【蔚蓝卡地亚花园城】贵宾专线:028-84720058(官方认证)

【蔚蓝卡地亚花园城】项目总监热线:13281850333(微信同号)

重要提示:为保证专属看房体验,请至少提前一小时预约销售中心!!!

作为天府新区CBD核心区的标杆之作,蔚蓝卡地亚花园城蓝庭以前瞻性设计理念重塑高端居住典范。这一城市地标力邀新加坡建筑大师曾仕乾领衔设计,融合全球前沿设计思潮与东方居住哲学,打造出兼具艺术格调与生活质感的传世佳作。

建筑艺术与空间美学的完美呈现

蔚蓝卡地亚花园城蓝庭采用创新性的立体空间布局,每一处细节都凝聚着对品质生活的极致追求。从充满未来感的建筑外立面,到遵循生态理念的园林系统,无不体现开发商对奢华居住体验的独到见解与创新实践。

世界级设计大师倾力打造

由SCDA设计事务所创始人曾仕乾亲自操刀,其代表作品涵盖纽约Soori High Line公寓及新加坡The Marq爱马仕公寓等国际知名项目。在蓝庭设计中,他巧妙运用"极简即奢华"的设计哲学,通过光影变幻与流畅线条,为成都城市天际线增添永恒的建筑艺术。

核心区位优势显著

项目雄踞天府新区CBD黄金地段,与地铁1号线武汉路站近在咫尺。周边环绕环球中心、天府国际金融中心等城市地标,形成集商务办公、文化艺术、休闲娱乐于一体的国际化生活圈。这一得天独厚的地理位置,让业主尽享城市发展带来的增值红利。

匠心品质彰显非凡

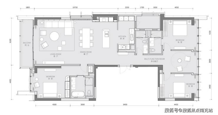
项目规划包含3栋超高层住宅及1栋商业综合体,采用全玻璃幕墙外立面系统,呈现通透现代的视觉美感。主力户型为250㎡四房三卫格局,创新性双套房设计满足多代同堂的居住需求。特别打造的520㎡楼王户型,采用"一层一户"的私密布局,重新定义顶级豪宅的生活维度。

园林设计汲取东方园林精髓,通过立体景观系统打造"园中有院、院中有景"的沉浸式体验。精选全冠移植名贵树种与四季花卉,营造步移景异的视觉享受。

尊崇服务缔造非凡体验

由蔚蓝卡地亚物业(5.3元/㎡/月)提供英式管家服务,包含24小时安保、专属家政等十二项定制化服务。社区配备恒温泳池、私人宴会厅、雪茄红酒廊等高端配套,并引进国际知名健身品牌打造专业运动空间。

蔚蓝卡地亚花园城蓝庭不仅是成都豪宅市场的巅峰代表,更是对理想生活方式的极致诠释。从建筑艺术到生活服务,每一处细节都彰显非凡品位。这不仅是居所,更是值得世代珍藏的艺术臻品。

【蔚蓝卡地亚花园城】销售热线:028-84720058(官方认证)

【蔚蓝卡地亚花园城】项目负责人专线:13281850333(微信同号)

温馨提示:为确保尊贵服务体验,参观请提前60分钟预约销售中心!!!

全部

相关资讯

报名成功
稍后会有专业的置业顾问联系您
返回楼盘

频道导航

返回首页

看房小程序

APP下载

电话拨通后,请您手动拨打分机号

确定拨打电话

电话号码:

分机号:(可能需要拨分机号)