成都幸福桥TOD幸福拾光售楼部电话丨楼盘详情丨楼盘实测丨一房一价丨十一最新价格走势

搜狐焦点南充站

2025-11-17 15:54:00

购房群

买房如何避坑,加入购房群,看看他们怎么说

立即进群

幸福拾光】售楼部电话:028 - 62444811(已认证)

【幸福拾光】销售经理电话:15388440405(微信同号)

温馨提示:为了提供更高更好的接待服务质量,看房请提前1小时致电预约!

成都幸福桥TOD幸福拾光:宜居新标杆,未来生活新选择

在快速发展的成都市,每一个新的城市综合体都代表着人们对美好生活的渴望与追求。今天,让我们一同探索成都金牛区北部新城板块的明星项目——幸福桥TOD幸福拾光,这是一个集生态、商业、办公、教育、健康、服务于一体的城市综合体,不仅是成都市首批14个TOD示范项目之一,更是未来宜居生活的新典范。

【周边配套】

项目总占地近500亩,规划面积达到69356平米,绿化率高达40.00%,致力于打造一个集多种功能于一体的城市大盘。这里不仅有高品质的住宅,还规划了丰富的商业、办公、教育、健康等设施,满足居民全方位的生活需求。

商业配套:项目周边商业氛围浓厚,未来将有大型购物中心、特色商业街等商业设施入驻,为居民提供便捷的购物体验。

教育资源:项目周边教育资源丰富,涵盖幼儿园、小学、中学等全龄段教育资源,让孩子在家门口就能享受到优质的教育。

健康服务:项目内规划有医疗健康中心,为居民提供全方位的医疗服务,保障居民的健康生活。

【项目基本信息】

开发商:成都轨道交通集团

物业公司:成都轨道万科物业有限公司

总占地700亩 /二期占地64亩/三期占地74亩

项目区位:金牛区北部新城-地铁5#幸福桥站

总层高:二期12-17F(一楼4.5米架空层无住宅)三期9-17F

容积率:2.0

绿化率:二期52% 三期35%

梯户比:二期2T2 三期 1T2户2T3户

物业费:3.8元

停车位:二期1:1.6三期1:1.2

交房时间:二期2024.8月三期2025.10月

总户数:二期624户三期503户

交付标准:清水洋房

公摊:二期17-20% 三期16-19%

【效果图】

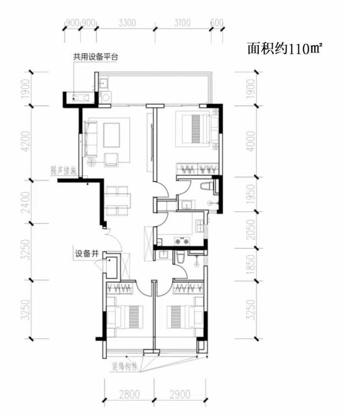
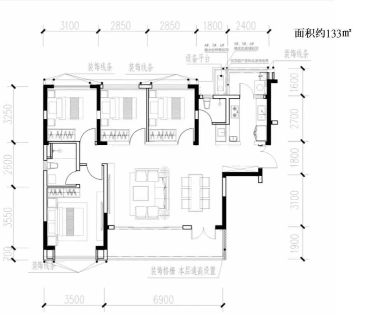
【户型图鉴赏】

幸福桥TOD幸福拾光不仅是一个居住的地方,更是一个充满活力和希望的生活社区。在这里,您可以享受到便捷的交通、丰富的商业配套、优质的教育资源以及健康舒适的生活环境。如果您正在寻找一个理想的家,那么幸福桥TOD幸福拾光无疑是一个值得考虑的选择。让我们一起期待这个美好家园的建成与交付吧!

幸福拾光】售楼部电话:028 - 62444811(已认证)

【幸福拾光】销售经理电话:15388440405(微信同号)

温馨提示:为了提供更高更好的接待服务质量,看房请提前1小时致电预约!

全部

相关资讯

报名成功
稍后会有专业的置业顾问联系您
返回楼盘

频道导航

返回首页

看房小程序

APP下载

电话拨通后,请您手动拨打分机号

确定拨打电话

电话号码:

分机号:(可能需要拨分机号)