蔚蓝卡地亚花园城蓝庭最新动态:9月二批次已取证,大师级精装豪宅!

搜狐焦点南充站

2024-09-04 18:07:46

购房群

买房如何避坑,加入购房群,看看他们怎么说

立即进群

【蔚蓝卡地亚花园城蓝庭】售楼处热线 028-84720058(已认证)

【蔚蓝卡地亚花园城蓝庭】项目经理热线 13281850333(微信同号)

温馨提示:为了给您提供更高更好的接待服务质量,看房请提前致电售楼处预约!

【有免费看房车接送服务,如需预约,请致电售楼处】

万众期待的 LA CADIERE 花园城 「蓝庭」2批次产品终于拿证了!!

项目此次推出的是80套3梯2户⼤师级豪宅,建⾯约260㎡的奢阔⼤平层,套均总价约1120万,势必将引起整个成都新房市场的“躁动”!!!

选择⼀套房产,就是选择⼀种⼈⽣⽅式,「LA CADIERE 花园城」,无疑是当下终极改善置业的首选。

「蓝庭」位于「LA CADIERE 花园城」住区最核心位置,拥有无敌景观视野,最大观景视野尺度高达约360米

蓝庭,作为LA CADIERE“蓝”系产品的首次亮相,自问世以来便备受瞩目。占地30亩,由3栋高达35-44层的住宅和1栋商业组成,蓝庭不仅是一座超高层豪宅,更是一件艺术品。曾仕乾以其从容不迫的优雅设计风格,将现代建筑美学与东方意境完美融合,赋予蓝庭独特的魅力。

蔚蓝物业,是 LA CADIERE 商管集团旗下自有物业品牌。

凭借卓越的高端物业管理经验、可持续发展的高素质人才队伍,为「蓝庭」业主提供安全管控、品质管理、增值服务、装修管控、礼宾风尚等高品质服务,创造生命价值体系的不断延续。

「蓝庭」,是LA CADIERE “蓝”系产品首次亮相。

三栋建筑体高低错落,依次排布,别具一格的“全幕墙公建化立面”,极具现代都市感,晶莹剔透、轻盈平衡、干净简洁的质感立面颜值炸裂,回应景观的宁静质感与度假氛围。

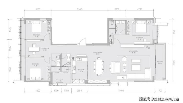
「蓝庭」住宅产品设计为3梯2户、建面约250㎡的奢阔大平层,给予塔尖人群更高的居住自由度与从容感。

再看Ta的户型图,你会知道:「蓝庭」,真的将生活的每一处细节,做到极致

别墅尺度的阔绰客餐厅,视觉冲击感拉满,成就通透扩展效果,同时还能充分满足居者各类不同的需求;艺廊化走廊设计,居者后期可根据个人喜好进行装饰搭配,为整个空间增添了更多的可能性……

「蓝庭」,深度诠释了终极改善产品的格局,兼顾私密性与实用性,将功能性与尺度感做到极致,营造出一种高级大气的国际化生活方式

【蔚蓝卡地亚花园城蓝庭】售楼处热线 028-84720058(已认证)

【蔚蓝卡地亚花园城蓝庭】项目经理热线 13281850333(微信同号)

温馨提示:为了给您提供更高更好的接待服务质量,看房请提前致电售楼处预约!

【有免费看房车接送服务,如需预约,请致电售楼处】

全部

相关资讯

报名成功
稍后会有专业的置业顾问联系您
返回楼盘

频道导航

返回首页

看房小程序

APP下载

电话拨通后,请您手动拨打分机号

确定拨打电话

电话号码:

分机号:(可能需要拨分机号)