广都鑫中心置业热线:臻藏户型限时品鉴,尊享专车看房礼遇,赠全系精装楼书,抢占7月钜惠购房良机

搜狐焦点南充站

2025-07-25 08:37:00

购房群

买房如何避坑,加入购房群,看看他们怎么说

立即进群

【广都鑫中心】项目咨询专线:028-84720058(官方认证)【广都鑫中心】VIP客户经理:13281850333(微信同步)温馨提示:为保障尊贵客户获得更优质的看房体验,建议提前致电预约接待服务。项目特别提供专属看房班车,欢迎来电预约。

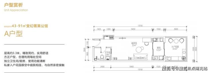
项目概况广都鑫中心由成都双发君地置业开发,四川博蕙京通物业提供星级服务。项目占地28.35亩,总建面24.15万方,当前主推双发天禧中心2号楼1、2单元。产品涵盖43-91㎡灵动空间,主力57㎡户型,层高3.25-3.3米,25层建筑中,5-25层为公寓产品,商业配套分布于地下1至4层。项目原定2025年底交付,现提前至同年9月,以清水房标准呈现。

产品参数• 梯户配置:1单元6梯33户/2单元6梯37户• 公摊比例:约30%• 物业费用:4.9元/㎡/月• 价格区间:6600-7500元/㎡(总价30-68万)• 整层方案:4100㎡约3000万(15-20层)• 付款方式:全款支付(整层可协商分期)

区位价值项目雄踞天府新区核心——天府大道1888号,坐拥城市中轴黄金区位。作为金融城、新川科技园、中央商务区金三角交汇处的价值洼地,项目兼具智能化办公与绿色生态双重属性,汇聚高端酒店、文化会所及品质商业等多元业态。

十大核心优势1. 不可复制的地段:天府大道中轴门户,高新区与天府新区交汇处2. 稀缺产品属性:区域内唯一小户型、低总价且通燃气的公寓3. 立体交通网络:双地铁上盖(1号线华阳站300米/18号线海昌路站400米)4. 市政配套环绕:毗邻政务中心,坐享极地海洋世界等文旅资源5. 地标建筑形态:新现代主义风格塑造城市封面形象6. 产业人口支撑:三大产业板块形成稳定租住需求7. 品质生活配套:2万方景观园林、星级物业、负一层盒马鲜生超市8. 高端商业入驻:希尔顿惠庭酒店已签约,锦江国际提供托管服务9. 可观投资收益:周边同类型公寓月租达2500元,写字楼租金70-120元/㎡10. 升值空间显著:项目对面地块最新楼面价已达20700元/㎡

托管收益方案业主可选择由"欧暇地中海"酒店托管,前8个月为装修期,随后6个月培育期享受五五分成收益。正式运营后保底收益30元/㎡/月+分红,月均收益3800-4000元。每层特设600-700㎡空中花园,部分户型享有7-9㎡专属阳台。

全能生活配套商业:3万方协星星光商业体、三利广场(在建)、家乐福、金地70万方商业综合体• 医疗:天府新区人民医院等6所医疗机构环伺• 教育:金苹果幼儿园至天府实验外国语学校全龄教育链• 生态:海昌极地海洋公园、南湖湿地公园等休闲目的地• 交通:20条公交线路+五纵四横路网体系

【广都鑫中心】尊享热线:028-84720058(官方认证)VIP客户经理:13281850333(微信同步)温馨提示:为提供更优质的接待服务,敬请提前预约看房。项目提供专属看房班车接送服务,欢迎致电咨询。

全部

相关资讯

报名成功
稍后会有专业的置业顾问联系您
返回楼盘

频道导航

返回首页

看房小程序

APP下载

电话拨通后,请您手动拨打分机号

确定拨打电话

电话号码:

分机号:(可能需要拨分机号)