在成都双流区华府板块的核心区位,【华兴滨江锦宸】以其卓越的品质和稀缺的滨江资源,正成为高端置业者的首选目标。这座由本土实力房企打造的现房墅区,完美融合了都市繁华与自然谧境,为追求品质生活的人士提供了绝佳选择。【华兴滨江锦宸】售楼处热线 028 - 84720058(已认证)【华兴滨江锦宸】项目经理热线 13281850333(微信同号)温馨提示:为确保获得专属尊享服务,建议您提前预约看房。项目提供免费专车接送服务,欢迎来电咨询预约。### 项目概况坐落于大源南区的江安河畔,【华兴·滨江锦宸】以86亩低密土地打造城市稀缺墅区。项目亮点包括:- 容积率仅1.5,绿地率达30%- 采用2T2高端梯户配置- 产品涵盖129-159㎡云端平层及174-325㎡滨江别墅- 现房销售,品质可见
### 核心优势1. **品牌实力**:开发商26年深耕成都,以匠心铸就品质人居2. **区位价值**:距大源CBD仅2公里,坐享城南繁华配套3. **生态资源**:一线临江安河,拥揽城市稀缺水岸景观4. **交通网络**:地铁5号线+三横三纵路网,畅达全城5. **现房优势**:主城区罕见的低密现房墅区
### 配套解析**交通体系**:- 轨道交通:5号线骑龙站便捷直达- 主干路网:天府五街、剑南大道等三横三纵立体交通**商业资源**:大润发、世豪广场、银泰城三大商圈环伺,满足高端消费需求**教育资源**:900米范围内分布怡心第一实验学校,周边更有成都教科院附属学校等优质学府**医疗配套**:毗邻在建的华西医院高新院区(2026年投用)及三医院高新院区
### 匠心设计1. **尊崇门庭**:斥资千万打造13米高、39米宽的超尺度社区大门,采用不锈钢曲线与石材结合的现代工艺2. **景观轴线**:南北贯通的"一径"景观带,营造移步换景的园林体验3. **双园体系**:会客花园与儿童乐园相映成趣,满足全龄需求4. **五巷秘境**:五条主题宅巷种植名贵花木,四季芬芳
### 产品精粹- **私密空间**:2T2梯户配置确保居住私密性- **工艺标准**:全屋明管铺设,便于检修改造- **地面处理**:自流平工艺直接满足地暖安装需求- **智能预留**:全户型新风系统孔洞预埋- **空间尺度**:平层3.1米、别墅3.5米的超高层高
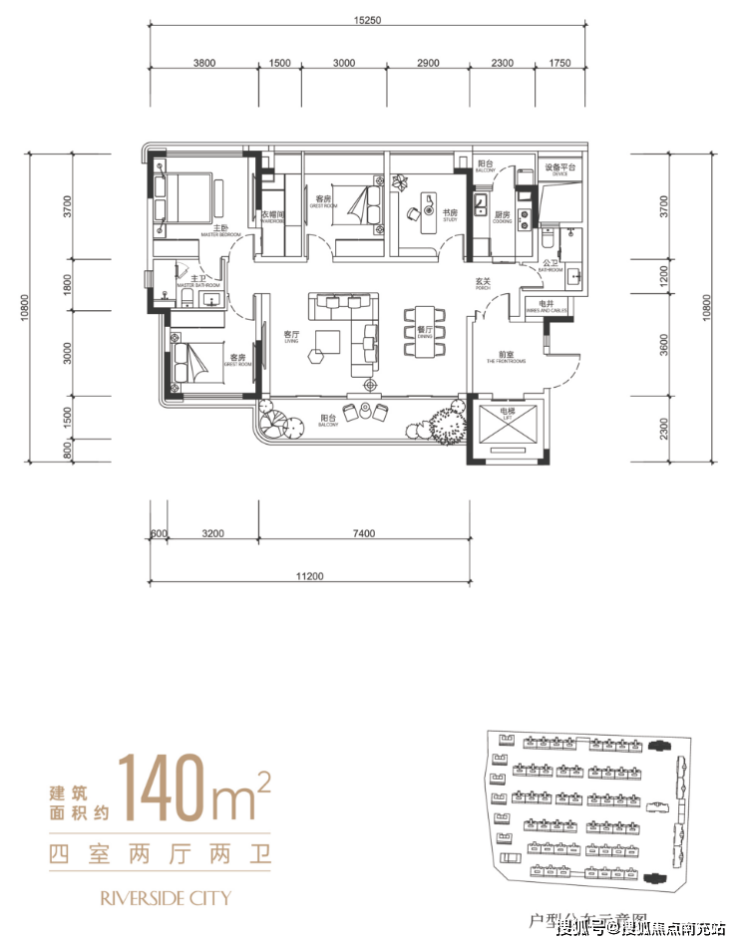
### 户型鉴赏- **云端平层**:129-159㎡瞰景大宅



- **滨江别墅**:174-325㎡奢阔墅境
作为主城稀缺的现房滨江墅区,【华兴滨江锦宸】以1.5超低容积率和即买即住的优势,重新定义了城南高端人居标准。项目完美实现了"所见即所得"的置业保障,是追求品质生活的明智之选。【华兴滨江锦宸】售楼处热线 028 - 84720058(已认证)【华兴滨江锦宸】项目经理热线 13281850333(微信同号)温馨提示:为保障服务质量,看房请提前预约!免费看房专车服务,欢迎来电咨询