成都【广都鑫中心】置业热线/全景测评:匠心户型亮点解析与新春特惠政策详解

搜狐焦点南充站

2025-06-14 09:47:00

购房群

买房如何避坑,加入购房群,看看他们怎么说

立即进群

如果您对【广都鑫中心】感兴趣,其售楼部热线是 028 84720058(已认证),客户经理热线为 13281850333(微信同号)。在此温馨提醒,若您有看房的打算,为确保能享受到更周全、高效的接待服务,建议提前致电售楼部进行预约。值得一提的是,该项目还贴心提供看房车接送服务,若您有此需求,只需致电售楼部预约即可。【项目参数】广都鑫中心项目占地面积达 28.35 亩,总建筑面积为 241470.5 平方米。当前主要在售的是双发天禧中心 2 号楼 1、2 单元。主力户型面积为 57㎡,面积段涵盖 43㎡ - 91㎡,主力面积集中在 55 - 60㎡之间。项目层高处于 3.25 - 3.3 米范围,建筑总高 25 层。其中, - 1 - 4F 规划为商业区域, - 2 到 - 4F 设置为车位,5 - 25F 为公寓。首开楼层为 13F、22F。该项目实现了水电气三通(商业),公摊约 30%。梯户比方面,一单元是 6T33 户,二单元是 6T37 户,物管费为 4.9 元。原本合同约定的交付时间在 2025 年 12 月 31 日前,现提前至 2025 年 9 月交房,交付标准为清水房。项目均价处于 6600 - 7500 元/㎡,总价区间为 30 - 68 万。付款方式为一次性(整层可协商分期)。整层面积约 4100㎡ ,报价 3000 万(15 - 20F);一单元面积约 1930㎡ ,报价 1400 万;二单元面积约 2170㎡ ,报价 1600 万。该项目的开发商是成都双发君地置业有限公司,物业公司为四川博蕙京通物业管理有限公司。【区域位置】广都鑫中心坐落于成都市天府新区天府大道 1888 号,这里打造了智能化绿色长廊式的菁英空间,是一个集高端酒店、文化会所及中高端商业配套于一身的综合体物业。

【核┃心┃卖┃点】广都鑫中心占据天府大道中轴线上的关键地段,是该区域目前唯一在售的总价低、小面积且水电气三通的产品,周边楼盘与之相比不存在竞品。项目周边配备双地铁(1 号线/18 号线),极大地方便了业主出行。而且,该项目还可交由锦江国际(世界第二,亚洲第一酒店集团)旗下“欧暇地中海”酒店运营。清水交房后有 8 个月的装修期(此期间无收益),装修完成后的 6 个月作为酒店培育期,无保底收益,但可享受酒店运营分红收益(收益五五分成)。从第 7 个月开始,业主正式享受保底收益(保底 30 元/平)加酒店运营五五分红,平均每月收益可达 3800 - 4000 元。项目地处金融城、新川科技园、天府新区中央商务区三大板块交汇的黄金金三角区域,作为桥头堡位置,形成价值洼地,能够大量吸引周边区域的人流。每层自带 600 - 700㎡高线公园,且每层仅有十户可额外享受 7 - 9㎡阳台空间。其核心价值体现在多个维度:1. **地段优势**:项目位于城市中轴天府大道高新区与天府新区交界处,处于天府新区门户位置,地段价值独特且难以复制。2. **稀缺特性**:在天府大道中轴线上,小面积、低总价且水电气三通的物业极为稀少,投资门槛低、风险小、回报高。 3. **交通便捷**:属于双地铁物业(地铁 1 号线、18 号线),出行极为便利。 4. **市政配套完善**:紧邻天府新区政务中心,可享受政策红利,周边还有极地海洋世界这一热门旅游打卡点,增添生活乐趣。 5. **建筑风格独特**:新现代建筑风格进一步凸显了项目在天府大道上的标志性地位,独具特色。 6. **人流保障充分**:位于金融城、新川科技园、天府新区中央商务区金三角区域,强大的吸附能力为房屋出租提供了坚实保障。 7. **居住体验佳**:超 2 万平米绿化、水景观、城市广场,商业产权住宅配套,星级物业服务提升居住舒适度,负 1 层还设有生活超市,满足日常生活所需。 8. **入驻商家高端**:高端酒店希尔顿惠顿商旅酒店已正式签约入驻,提升项目品质。 9. **租金高需求大**:项目周边同户型公寓租金可达 2500 元,写字楼租金 70 - 120 元/平米,投资前景乐观。10. **投资潜力大**:项目斜对面最新土拍价格高达 20700 元/平米,入手即赚,投资潜力巨大。

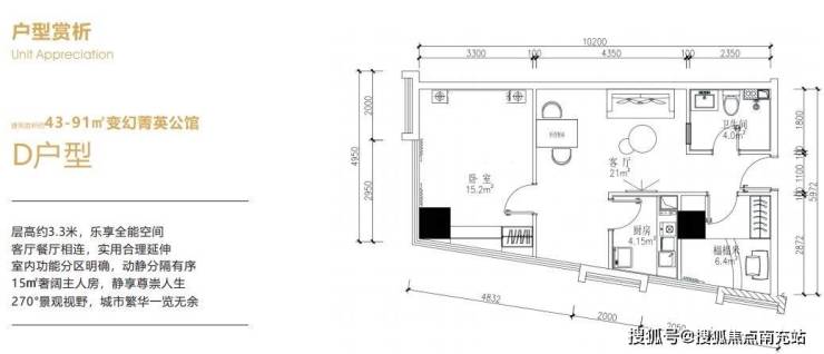
【交通配套】广都鑫中心是双地铁上盖物业,地理位置极为优越。它距离 1 号线华阳站仅 300 米,距 18 号线海昌路站 400 米。周边还有 503、504、T205 等二十条公交线路穿梭,区域内形成了五纵四横的立体交通网络。其中,五纵分别为剑南大道、益州大道、天府大道、梓州大道(科华路南延线)、成自泸高速;四横则是三环路、绕城高速、华阳大道、麓山大道,全方位保障出行。【商业配套】项目 1 - 4 楼自带 30000 方的上海协星星光商业体, - 1 楼设有大型超市盒马生鲜,满足日常生活购物需求。 - 2 至 - 4 楼配备 1661 个停车位,解决停车难题。项目斜对面就是家乐福购物中心,南面 300 米处正在修建的三利广场,是一个集商务办公、综合购物、高端酒店、商业体验等多种功能于一体的综合性购物广场。项目对面还有金地三期约 70 万方的大型商业综合体,周边还有沃尔玛山姆会员店、红星美凯龙、富森美等综合性商业设施。随着发展,项目在实现优质人居蓝本的同时,后期配套还将迎来进一步升级,未来生活更加便捷。【医疗配套】周边医疗资源丰富,拥有天府新区人民医院、四川石油总医院、玛利亚天府妇产儿童医院、天府新区安琪儿国际妇女儿童医院、四川省中西医结合医院、四川宝石花医院等众多医疗机构,为居民的健康保驾护航。【生态娱乐】项目周边生态娱乐资源丰富,紧挨着海昌极地海洋公园、南湖梦幻岛以及南湖湿地公园等,为居民提供了丰富的休闲娱乐选择。【优质教育】周边分布着金苹果幼儿园、天府四小、天府五小、天府实验小学、天府实验中学、天府实验外国语学校等优质教育资源,为孩子的成长提供良好的教育环境。【多变户型】

【装修风格】

【广都鑫中心】售楼部热线 028 84720058(已认证),【广都鑫中心】客户经理热线 13281850333(微信同号)。温馨提示:若您有看房计划,为给您提供更优质的接待服务,请提前致电售楼部预约!项目提供看房车接送服务,如需预约,请致电售楼部 。

全部

相关资讯

报名成功
稍后会有专业的置业顾问联系您
返回楼盘

频道导航

返回首页

看房小程序

APP下载

电话拨通后,请您手动拨打分机号

确定拨打电话

电话号码:

分机号:(可能需要拨分机号)