全面剖析成都「俊屹中心」6月楼市行情:在售户型价格详览,揭秘限时特惠政策,速拨置业热线享独家购房礼遇

搜狐焦点南充站

2025-06-28 12:53:00

购房群

买房如何避坑,加入购房群,看看他们怎么说

立即进群

俊屹中心置业顾问专线 028-84720058(官方认证)

俊屹中心渠道总监直线 13281850333(支持微信咨询)

尊贵提示:为确保您享受专属VIP看房体验,敬请提前预约到访

【项目提供免费专车接送服务,预约请拨打售楼热线】

成都俊屹中心:缔造城市核心区的臻品生活范本

坐落于成都核心商圈的俊屹中心,以其卓越的区位优势和前瞻性的规划设计,重新定义了城市综合体标准。这座融合高端商务、精品商业与品质住宅的标杆项目,不仅坐拥成熟的城市配套资源,更以匠心打造的建筑品质和人性化的空间设计,持续引领着成都高端物业的市场风向,成为 discerning investors 竞相追捧的价值高地。

【项目基本参数】

公寓参数:

总体量:7.4万方

建筑面积:14.22万方

产权性质:商办

占地:25亩

在售楼栋:2#2单元

物业公司:四川景佑物业

物业费用:4.5元/㎡

停车位:机动车位798个,非机动车位996个

2号楼:

面积:37--67㎡

总层高:35层

在售楼层:24楼

层高:3.2米

装修:清水交付

梯户比:5T20户

公摊:34%

交房:2024年4月30日交房

均价:11000-12000元/㎡

是否通气:不通气,带烟道

建筑设计独特,居住品质卓越

俊屹中心由三栋高层商办产品组成,总建筑面积约14万平方米,占地面积约25亩。整个建筑的外立面采用深咖啡色铝板和玻璃幕墙,现代而典雅。项目内部采用写字楼的硬件配置,配备锋速电梯和5.9米挑高大堂,营造出高端、舒适的商务氛围。高层部分则主打精品商业办公和公寓产品,拥有270°转角风景和21米环幕天际视野,让居住者尽享城市美景。

在户型设计上,俊屹中心提供了多种选择,满足不同家庭的需求。无论是25平方米的一室一厅,还是36-66平方米的两室一厅,亦或是9-291平方米的公寓,都注重空间的合理利用和居住体验的提升。项目还配备了全套智能家居及智能安防系统,为业主打造安全、便捷的生活环境。

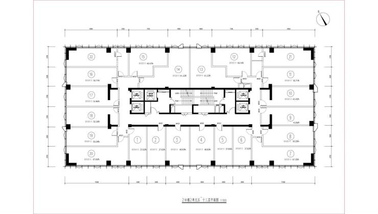
公寓楼层平面图:

2号楼:

投资价值凸显,未来可期

作为成都市中心的综合性地标建筑,俊屹中心不仅具备优越的地理位置和完善的配套设施,还拥有巨大的投资潜力。随着周边商业氛围的不断浓厚和知名企业的入驻,项目的商业价值将进一步提升。此外,项目周边还规划有多个文创项目和高端酒店集群,未来将成为成都新的文化创意产业高地和商务休闲中心。

俊屹中心】售楼处热线 028-84720058(已认证)

俊屹中心】项目渠道经理热线 13281850333(微信同号)

温馨提示:为了给您提供更高更好的接待服务质量,看房请提前致电售楼处预约!

【有免费看房车接送服务,如需预约,请致电售楼处】

全部

相关资讯

报名成功
稍后会有专业的置业顾问联系您
返回楼盘

频道导航

返回首页

看房小程序

APP下载

电话拨通后,请您手动拨打分机号

确定拨打电话

电话号码:

分机号:(可能需要拨分机号)