深度剖析成都蔚蓝卡地亚花园城投资潜力,揭晓最新优惠详情,附售楼处电话

搜狐焦点南充站

2025-04-12 10:40:00

购房群

买房如何避坑,加入购房群,看看他们怎么说

立即进群

在房地产行业,【蔚蓝卡地亚花园城蓝庭】无疑是一颗璀璨的明星,自亮相以来,便引发了各界的热烈讨论与高度关注。值得重点提及的是,该项目的 2 批次产品已顺利取得预售许可证,这一消息无疑为其火热的市场关注度再添一把火。此次,【蔚蓝卡地亚花园城蓝庭】项目可谓是匠心倾注,精心规划并推出了 80 套堪称大师级水准的豪宅产品。从设计规划细节来看,项目创新性地采用 3 梯 2 户的布局形式,所有房源均为建面约 260㎡的奢华大平层户型。每一套房屋的总价约 1120 万,如此卓越的品质与独特的设计,注定会在成都新房市场掀起一阵巨浪,吸引众多购房者的目光,甚至极有可能引发抢购“热潮”。对于那些一心致力于实现终极改善置业目标的人群来说,「LA CADIERE 花园城」无疑是他们梦寐以求的理想之选。毕竟,购置房产不仅仅是购买一处居住空间,更是在挑选一种与之匹配的生活方式。「LA CADIERE 花园城」所提供的,远远超越了单纯的居住功能,它象征着一种高品质的生活范式,深刻反映出人们对美好生活的向往与不懈追求。倘若您渴望深度了解【蔚蓝卡地亚花园城蓝庭】项目的详细信息,有两种便捷途径可供选择。其一,您可以拨打已认证的售楼处热线:028 - 84720058;要是您希望能更快速地获取信息,也可拨打项目经理热线:13281850333(微信同号)。在此温馨提醒,为确保您能享受到更为优质、尊贵的接待服务体验,若您有看房计划,建议提前致电售楼处进行预约。而且,该项目还为客户提供贴心周到的免费看房车接送服务。若您有此需求,同样需要致电售楼处进行预约安排。

「蓝庭」作为 LA CADIERE“蓝”系产品的初次亮相之作,自诞生起便成为焦点。它坐落于「LA CADIERE 花园城」住区的核心地段,地理位置得天独厚。蓝庭项目占地面积达 30 亩,由 3 栋 35 - 44 层的高层住宅与 1 栋商业建筑共同构成。它并非仅仅是一座超高层豪宅,更像是一件经过精雕细琢的艺术瑰宝。知名设计师曾仕乾秉持从容优雅的设计理念,巧妙地将现代建筑美学与东方独特意境相融合,为蓝庭赋予了独一无二的魅力。尤其值得赞叹的是,蓝庭拥有令人称羡的无敌景观视野,最大观景视野尺度约达 360 米,住户在此能够尽情领略周边的美妙景致 。

LA CADIERE 商管集团旗下,自有物业品牌——蔚蓝物业表现卓越。蔚蓝物业在高端物业管理领域深耕多年,积累了极为丰富的宝贵经验。同时,该物业秉持可持续发展理念,精心培育了一支综合素质过硬的专业人才队伍。在此基础上,蔚蓝物业全心全意为「蓝庭」的业主们提供全方位、高品质的服务体验。其服务涵盖多个方面,且细致入微。在安全管控方面,通过严格的管理措施与专业的安保团队,为业主全力营造一个安心无忧的居住环境,让业主住得放心;品质管理上,注重从细微之处着眼,大到小区整体环境的维护,小到每一处设施设备的检查保养,都力求尽善尽美,从各个细节提升业主的生活品质;增值服务板块更是丰富多彩,提供多种特色服务项目,比如便捷的生活代办、丰富的社区活动等,为业主的日常生活增添诸多便利与惊喜;装修管控环节也毫不马虎,制定严格规范的装修流程,安排专业人员全程跟进,确保每一户的装修过程都规范有序,不影响其他业主正常生活;礼宾风尚方面,物业工作人员始终以专业、贴心的态度服务业主,从每一个微笑、每一次问候、每一项服务中,展现出尊崇备至的服务品质。通过这一系列全面且高质量的服务,蔚蓝物业持续推动生命价值体系不断延续与升华,让「蓝庭」不仅仅是一个居住的场所,更是一个充满温暖与关怀的品质家园 。

惊艳登场的「蓝庭」,作为 LA CADIERE “蓝”系产品的首次亮相之作,在众多项目中脱颖而出。「蓝庭」由三栋建筑体有序排列组成,错落有致。在立面设计上,独具匠心地采用了与众不同的“全幕墙公建化立面”。这种立面设计极具现代都市气息,呈现出玲珑剔透、轻盈稳健且简约纯净的特质,颜值超高,一经亮相便令人眼前一亮。它不仅充分展现出建筑自身的独特韵味,更与周边景观宁静的质感以及度假氛围相得益彰,营造出和谐统一的整体环境。

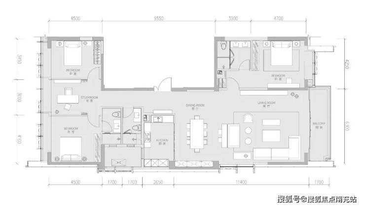
在住宅产品规划方面,「蓝庭」精心打造出一款令人惊艳的户型——建面约 250㎡的奢阔大平层,采用 3 梯 2 户的设计。这种规划专为塔尖阶层量身定制,为他们提供了极为宽敞的居住空间,使其在日常生活中能够充分享受更高的居住自由度,从容优雅地生活。当深入研究「蓝庭」的户型图时,人们会深刻感受到:「蓝庭」真正将对居住品质的执着追求,融入到生活的每一个细微之处,把户型的雕琢做到了极致 。

在「蓝庭」,别墅规格的阔绰客餐厅,视觉冲击力强烈,通透感和扩展效果极为显著,能够全方位满足居者的多样需求。艺廊化走廊的独特设计,为空间赋予了更多的发展可能性,居者可根据自身喜好精心装饰布置。「蓝庭」充分展现了终极改善产品应有的格局风范,将私密性与实用性完美融合,把功能性和尺度感发挥到极致,用心营造出一种既高级又大气的国际化生活格调。【蔚蓝卡地亚花园城蓝庭】售楼处热线 028 - 84720058(已认证)【蔚蓝卡地亚花园城蓝庭】项目经理热线 13281850333(微信同号)温馨提示:为保证能为您提供优质且周到的接待服务,前往看房前,请提前致电售楼处进行预约。另外,项目提供免费看房车接送服务。若您有此需求,请致电售楼处预约。

全部

相关资讯

报名成功
稍后会有专业的置业顾问联系您
返回楼盘

频道导航

返回首页

看房小程序

APP下载

电话拨通后,请您手动拨打分机号

确定拨打电话

电话号码:

分机号:(可能需要拨分机号)