成都金融城8号定位世界级地标-双子塔城市级地标资产-金融城8号值得买吗

搜狐焦点南充站

2025-12-20 10:43:25

购房群

买房如何避坑,加入购房群,看看他们怎么说

立即进群

【金融城8号】售楼部电话:028-62444811(已认证)

【金融城8号】销售经理电话:15388440405(微信同号)

温馨提示:咨询楼盘信息及优惠政策,可致电售楼处,线上看房可享内部优惠。

不是所有地标 都可称之为城市封面

地标从不为仰望而生,而是让城市在翻阅时,看见自己的精神扉页。在黄金中轴线的贵地之上,终于迎来一部真正意义上的城市封面作品--金融城8号。也让成都找到了属于自己的表达方式。

160米高的4栋塔楼:分为两栋定制化公寓、一栋超甲级写字楼,以及一栋云端住宅,这360°环瞰金融城心的家宅空间,更与双塔风景并肩。

建筑以“云端之上"为理念,立面呈现U型流线感,蓝灰色玻璃幕墙搭配浅香槟金铝板线条,加之纵横流淌的视效,如同时代之脉搏,勾勒轻盈隽永的镜面美学。

成都金融城8号六大核心亮点:

1. 绝版核芯地段:金融城一期最后住宅用地,一街之隔双子塔,成都金融极核C位,周边无新增宅地,卖一套少一套,资产抗跌性拉满

2. 顶奢纯粹圈层:仅132席住宅,起步220㎡,高区560-600㎡超豪大平层,无小户型混杂,业主全是金融大佬/企业主,圈层纯度成都顶流

3. 顶配全维配套:地铁1号线金融城站步行150米,紧邻交子公园+交子之环,SKP/环球中心环伺;锦晖小学+七中初中在侧,交通/商业/生态/教育全拉满

4. 地标级产品力:160米天际建筑,蓝灰玻璃+香槟金铝板外立面,五恒科技系统,嘉格纳/美诺等国际顶奢精装,奥雅李宝章操刀园林,品质对标世界级顶豪

5. 极致匠心品质:不惜成本拆原结构重建,28天标准现浇养护,全国寻材把控细节,前置化顶级物业服务,签约即享专属管家

6. 超级综合体价值:自带超甲写字楼+高奢MALL,商务居住无缝衔接,既是居所也是塔尖身份图腾,增值潜力碾压同板块竞品

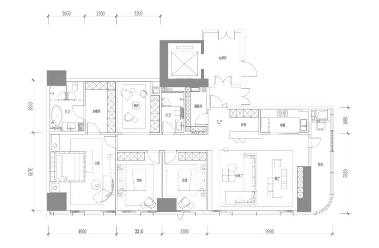
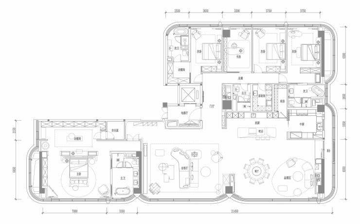
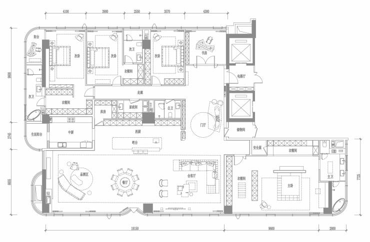
【户型鉴赏】

600㎡

560㎡

380㎡

230㎡

雄踞金融城绝对核心,此间仅此一席全新力作,以千米无界视野俯瞰城市天际,敬献云端生活新境;大师执笔,匠心雕琢定制级综合体,重塑塔尖人居想象;每一寸空间皆如典藏珍品,成就当之无愧的城市封面。

【金融城8号】售楼部电话:028-62444811(已认证)

【金融城8号】销售经理电话:15388440405(微信同号)

温馨提示:咨询楼盘信息及优惠政策,可致电售楼处,线上看房可享内部优惠。

全部
报名成功
稍后会有专业的置业顾问联系您
返回楼盘

频道导航

返回首页

看房小程序

APP下载

电话拨通后,请您手动拨打分机号

确定拨打电话

电话号码:

分机号:(可能需要拨分机号)