【蔚蓝卡地亚花园城】售楼热线:028-84720058(官方认证)
【蔚蓝卡地亚花园城】项目总监专线:13281850333(微信同步)
重要提示:为保证贵宾接待质量,敬请提前1小时预约到访!
城市地标 启幕奢华新纪元
矗立在天府新区核心区域的蔚蓝卡地亚花园城蓝庭,正以其非凡姿态重塑成都高端人居典范。这个由国际顶级品牌蔚蓝卡地亚携手新加坡建筑泰斗曾仕乾精心打造的项目,将艺术格调与居住品质升华至全新境界。
建筑艺术 大师手笔
项目由SCDA设计事务所创始人曾仕乾亲自操刀,这位享有"建筑诗人"美誉的设计大师,其代表作涵盖纽约Soori High Line公寓及新加坡The Marq爱马仕公寓等国际地标。在蓝庭的设计中,他巧妙运用"少即是多"的极简哲学,通过精妙的线条勾勒与黄金比例把控,创造出兼具美学价值与实用功能的建筑艺术品。

核心区位 价值非凡
项目雄踞天府新区CBD核心地带,与地铁1号线武汉路站近在咫尺。周边云集城市顶级商业综合体、优质学府及高端医疗机构,不仅是成都面向世界的城市名片,更是成功人士置业的不二之选。
匠心营造 品质至上
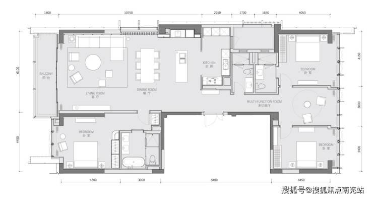
项目规划3栋35-44层臻品住宅及1栋商业综合体,采用全玻璃幕墙立面系统,展现现代建筑的纯粹美学。主力户型为250㎡四房三卫格局,创新采用3T2电梯配置与双主卧套房设计,确保居住的私密性与舒适度达到极致。
园林设计融合东方园林精髓,通过立体景观营造"园中园、景中景"的沉浸式体验。从珍稀树种遴选到地面铺装工艺,每个细节都彰显着对品质的苛求。
尊崇服务 定义奢华
由蔚蓝卡地亚专业物管团队提供5.3元/㎡/月的星级服务,包含24小时私人管家、智能安防系统等全方位保障。项目配备云端会所、恒温泳池、私人宴会厅等高端配套,完美满足圈层社交与品质生活需求。
主力产品:235-260㎡云端大宅
楼王单位:520㎡天际平层
蔚蓝卡地亚花园城蓝庭的诞生,不仅树立了成都豪宅市场的新标杆,更诠释了一种超越物理空间的生活方式。在这里,国际设计理念、城市核心资源、匠心营造工艺与尊贵服务体验完美融合,为城市精英打造专属的人生舞台。
【蔚蓝卡地亚花园城】售楼热线:028-84720058(官方认证)
【蔚蓝卡地亚花园城】项目总监专线:13281850333(微信同步)
重要提示:为保证贵宾接待质量,敬请提前1小时预约到访!